Thiết kế cải tạo biệt thự liền kề đẹp 2 mặt tiền kết hợp kinh doanh

Thiết kế biệt thự lô phố tân cổ điển với mẫu nhà 2 mặt tiền 7 tầng độc đáo, sang trọng. Thiết kế nội thất biệt thự liền kề hiện đại, tiện nghi giúp tiết kiệm chi phí, không gian, nội thất cao cấp, phong phú. Biệt thự liền kề tân cổ điển đẹp tại Bồ Đề, Long Biên vừa ở kết hợp không gian kinh doanh mang đến sự khoa học tiện nghi đến nhu cầu sống đày đủ và có thêm lợi nhuận cho thuê hoặc kinh doanh từ vị trí đắc địa.

Tổng quan
Chủ đầu tư
Chị Ly
Địa điểm
Bồ Đề, Long Biên, Hà Nội
Số tầng
7
Diện tích đất
668m2
Đơn vị thực hiện
Huytrandesign
Năm thi công
2023
Ưu điểm Thiết kế cải tạo biệt thự liền kề đẹp 2 mặt tiền kết hợp kinh doanh

Thiết kế ngoại thất biệt thự liền kề đẹp 2 mặt tiền tân cổ điển đơn giản, tinh tế

Thiết kế kiến trúc mặt trước biệt thự liền kề

Biệt thự liền kề đẹp vẫn đi theo lối kiến trúc tân cổ điển lãng mạn mà sang trọng nhưng với cá tính nổi trội của gia chủ lần này, Huytrandesign lựa chọn những đường nét nhấn nhá đơn giản khỏe khoắn đan xen nhau giữa các mảng kiến trúc từ cột, cổng đến phào chỉ tường tạo nên một sự cuốn hút mang tính chiều sâu cho thiết kế mặt tiền nhà biệt thự lô phố tân cổ điển này. Thiết kế nhà biệt thự phố mặt tiền 8m phù hợp với những mảnh đất có diện tích 7x10m, 7x11m,7x12m, 8x10m, 8x11m, 8x12m, 9x10m, 9x11m, 9x12m,...

Thiết kế ngoại thất biệt thự đơn giản
Thiết kế kiến trúc ngoại thất tân cổ điển đẹp với họa tiết hoa văn, phào chỉ đơn giản, khỏe khoắn

Sử dụng gam màu trắng làm chủ đạo kết hợp nhấn nhá màu xanh nhà biệt thự lô phố tân cổ điển của chị Ly toát ra một nét quyến rũ êm ái, thơ mộng lại hoàn toàn không hề mềm yếu. Mẫu mặt tiền nhà phố mang phong cách tân cổ điển không phô trương, phù phiếm mà vẫn tự nhiên hấp dẫn ánh nhìn.

Sử dụng màu sắc hài hòa tinh tế mang đến sự sang trọng, đẳng cấp

 Phần lớn nhà phố hiện nay với diện tích không quá lớn và tầm nhìn trên phố không đủ rộng rãi thường tránh lối trang trí tỉ mỉ, chi tiết. Có rất nhiều chủ nhà say đắm trường phái kiến trúc tân cổ điển nhưng chỉ dừng lại ở những điểm xuyết thanh mảnh, những nhấn nhá tối giản. Kiến trúc sư của Huytrandeisgn chính là chuyên gia, những người làm nghệ thuật kiến trúc chân chính. Mọi sự tính toán về tầm nhìn đã được chúng tôi tỉ mỉ cân nhắc ngay từ khi lựa chọn từng họa tiết, đảm bảo đáp ứng những tiêu chuẩn khắt khe nhất của lối kiến trúc tân cổ điển.

Thiết kế kiến trúc biệt thự
Thiết kế ngoại thất biệt thự liền kề tân cổ điển mặt tiền 8m

Thiết kế kiến trúc mặt sau biệt thự

Lấy đơn giản làm tiêu chí thiết kế, sử dụng ánh sáng tự nhiên làm điểm nhấn thẩm mĩ và coi trọng tính ứng dụng là những tiêu chí cao nhất trong xu hướng thiết kế biệt thự liền kề đẹp tân cổ điển 2 mặt tiền mà Huytrandesign luôn tâm niệm và nỗ lực đạt được. Hãy để chúng tôi đồng hành cùng bạn kiến tạo nên ngôi nhà bắt mắt, sáng tạo, đầy tính nghệ thuật và tính ứng dụng ở mức độ cao nhất.

Thiết kế kiến trúc ngoại thất mặt sau biệt thự
Thiết kế hệ thống cửa kính lấy sáng thông thoáng kết hợp ban công nhỏ có lan can nghệ thuật tinh tế

Cổ điển mà lịch lãm, sang trọng mà vẫn tiện nghi thích ứng với nhu cầu sinh hoạt của cuộc sống hiện đại, không những hấp dẫn ánh nhìn mà còn khẳng định dấu ấn, phong cách riêng của chủ nhà. Hãy để Huytrandesign giúp bạn đem tình yêu, ước mơ và cá tính gửi gắm vào những mẫu thiết kế nhà đẹp nhất. 

Thiết kế kiến trúc ngoại thất mặt sau biệt thự
Trang trí ngoại thất với một chút cây xanh tươi mới

Những nét phá cách trong kết cấu mái bằng, mái kính lấy sáng kết hợp với ban công đơn giản, rộng thoáng và nhiều khoảng trống trong tổng thể kiến trúc mặt tiền ngôi nhà vừa phục vụ tối ưu cho nhu cầu sinh hoạt thường ngày, đảm bảo chất lượng sống vừa tạo điểm nhấn ấn tượng, rất khác biệt. 

Thiết kế ngoại thất mặt sau biệt thự
Thiết kế mái bắng đơn giản có lan can xi măng tân cổ điển

Thiết kế mặt bằng và công năng cho biệt thự liền kề 7 tầng kết hợp không gian kinh doanh tại Long Biên

Tầng hầm biệt thự liền kề

Thiết kế tầng hầm biệt thự với diện tích 77m2 bao gồm:

-  Không gian Gara để xe diện tích 45m2

- Nhà vệ sinh diện tích 2.6m2

- Thang máy diện tích 2.2m2

- Không gian thang bộ.

Thiết kế mặt bằng nội thất tầng hầm biệt thự
Mặt bằng tầng hầm để xe rộng rãi

Mặt bằng nội thất tầng 1

Mặt bằng tầng 1 biệt thự bao gồm:

-  Không gian kinh doanh 47m2

-  Không gian thang máy diện tích 2.2m2

- Không gian thang bộ

- Không gian ban công trước và sau tầng 1 trồng tiểu cảnh

 Thiết kế không gian tầng 1 và tầng 2 phục vụ cho công việc kinh doanh. Đây là vị trí đắc địa kết hợp biệt thự 2 mặt tiền giúp gia chủ có thêm lợi nhuận mỗi tháng mà vẫn đảm bảo được không gian sống, không gian sinh hoạt lý tưởng cho cả gia đình.

Thiết kế mặt bằng nội thất Biệt thự liền kề với không gian kinh doanh
Thiết kế mặt bằng tầng 1 với không gian kinh doanh

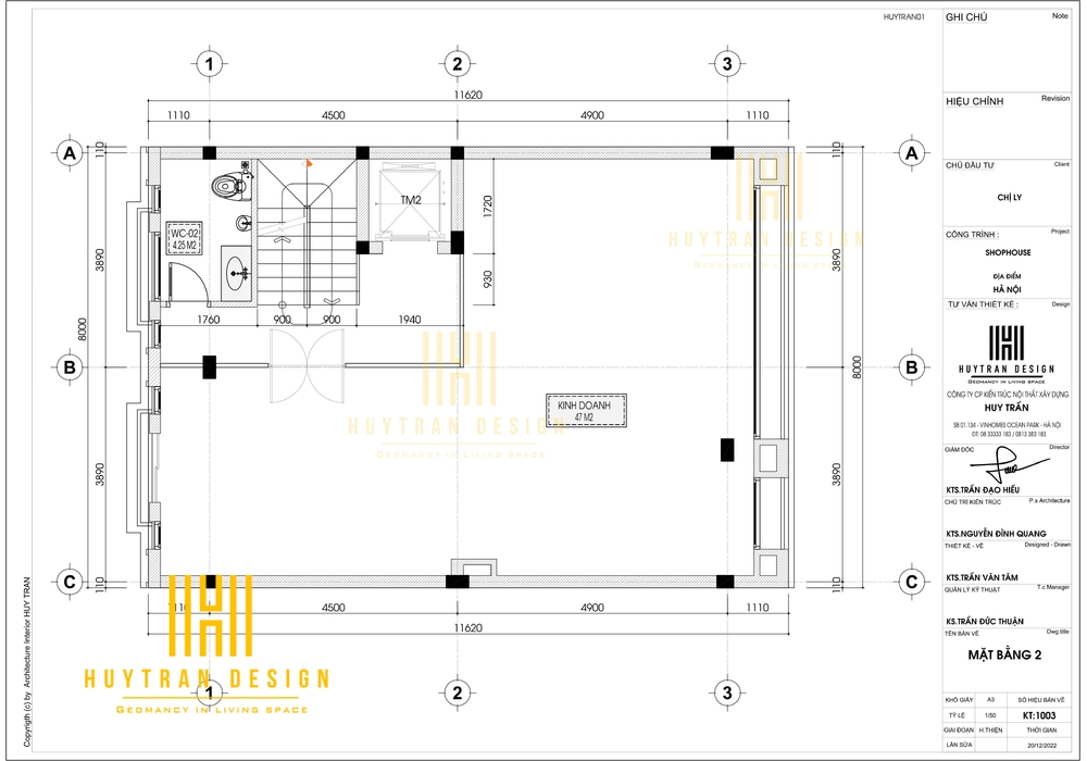
Mặt bằng tầng 2

Thiết kế mặt bằng tầng 2 với không gian kinh doanh diện tích 47mw giống với không gian kinh doanh tầng 1. Tại tầng 2 thiết kế nhà vệ sinh vừa đủ diện tích 4.3m2 kết hợp không gian thang máy, thang bộ liền nhau và được tách biệt với không gian kinh doanh bởi vách kính. Thiết kế vách kính tạo ra không gian mở thông thoáng, tận dụng được tối đa áng sáng tự nhiên thân thiện với môi trường.

Thiết kế mặt bằng nội thất biệt thự
Mặt bằng nội thất tầng 2 dùng để kinh doanh

Mặt bằng nội thất tầng 3 biệt thự liền kề

Tầng 3 thiết kế không gian sinh hoạt gồm:

- Phòng khách diện tích 35m2

- Phòng bếp và phòng ăn diện tích 19m2

- Không gian sảnh thang và nhà vệ sinh diện tích 19.5m2

 Tầng 3 nhà biệt thự liền kề tân cổ điển đẹp chủ yếu là không gian sinh hoạt chung cho cả gia đình gồm phòng khách và phòng ăn. Không gian được thiết kế không gian mở giúp phòng khách và phòng bếp có sự gắn kết, lưu thông không khí. Phòng khách thiết kế bộ sofa bàn trà lớn ngoài ra có thêm 1 kệ tủ tivi và 1 kệ trang trí, trung bày. Phòng ăn thiết kế hệ tủ bếp chữ I nhỏ gọn và bàn ăn hình chữ nhật lớn với 8 ghế phù hợp với gia đình nhiều thành viên.

Thiết kế nội thất công năng biệt thự
Mặt bằng nội thất tầng 3 thiết kế phòng khách và phòng ăn

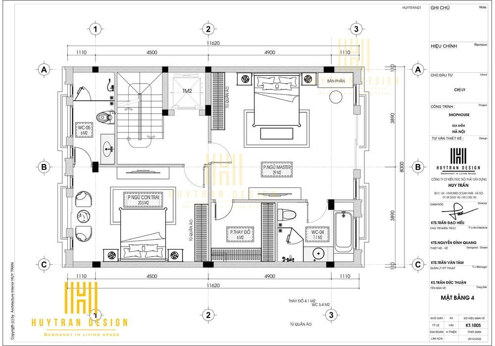
Không gian nội thất tầng 4 biệt thự

Tầng 4 biệt thự liền kề mặt tiền 8m bao gồm:

- Phòng ngủ Master diện tích 42m2

- Phòng ngủ con trai diện tích 26.5m2 

- Không gian sảnh thang

 Không gian tầng 4 chỉ thiết kế 2 phòng ngủ khép kín. Phòng ngủ Master với diện tích lớn thiết kế gồm giường ngủ, bàn phấn, tủ quần áo, phòng thay đồ và nhà vệ sinh lớn có cabin tắm đứng và bồn tắm nằm giúp gia chủ có thể ngâm mình thư giãn sau những ngày làm việc mệt mỏi. Phòng ngủ con trai rộng rãi khép kín có giường ngủ, hệ tủ quần áo, bộ ghế nghỉ ngơi nhỏ và nhà vệ sinh diện tích 6m2 có cabin tắm kính vừa sạch, đẹp dễ vệ sinh mà giảm thiểu được lượng nước bắn ra xung quanh

Thiết kế mặt bằng biệt thự nhà phố
Thiết kế nội thất tầng 4 với 2 phòng ngủ lớn

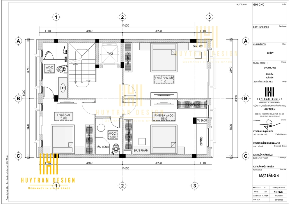
Mặt bằng tầng 5

Mặt bằng thiết kế nội thất tầng 5 gồm:

- Phòng ngủ ông diện tích 28.5m2

- Phòng ngủ bà và cô diện tích 20.5m2

- Phòng ngủ con gái diện tích 21m2

- Nhà tắm chung diện tích 4.5m2

Tầng 5 thiết kế 3 phòng ngủ, trong đó phòng ngủ ông là phòng ngủ có nhà vệ sinh khép kín, bên cạnh là cửa sổ kính lớn giúp phòng thông thoáng hơn. Phòng ngủ bà và cô thiết kế chiếc giường ngủ lớn, bàn phấn, tủ sách và 2 hệ tủ quần áo lớn. Phòng ngủ con gái bên cạnh với giường ngủ, hệ tủ quần áo và bàn học là thiết bị không thể thiếu đối với các em học sinh. Thiết kế 2 phòng ngủ không khép kín giúp các phòng ngủ rộng rãi hơn và tiết kiệm diện tích. Biệt thự phố tân cổ điển đẹp có thang máy thuận tiện cho cả gia đình di chuyển và sinh hoạt.

Thiết kế mặt bằng biệt thự nhà phố
Mặt bằng tầng 5 biệt thự 2 mặt tiền

Mặt bằng tầng 6

Thiết kế không gian tầng 6 bao gồm:

- Phòng thờ diện tích 22.5m2

- Phòng ngru 6 diện tích 12m2

- Không gian giặt là

- Không gian phơi đồ 17.2m2

- Nhà vệ sinh chung diện tích 6m2

Tầng 6 thiết kế gian thờ rộng rãi, thoáng mát cạnh sân phơi. Ngoài ra thiết kế không gian ngủ 6 diện tích nhỏ cho khách và 1 nhà vệ sinh nhỏ khoảng 6m2. Không gian giặt và sân phơi thiết kế gần nhau để thuận tiện phơi đồ và tiết kiệm không gian sử dụng.

Thiết kế mặt bằng biệt thự nhà phố
Mặt bằng nội thất tầng 6

 

Bạn đang mong muốn xây nhà phố, biệt thự sân vườn, thi công và cải tạo biệt thự tân cổ điển Vinhomes, thiết kế nội thất shophouse, thiết kế biệt thự tân cổ điển cho thuê. Hãy liên hệ với chúng tôi để được tư vấn MIỄN PHÍ 24/7: thiết kế, thi công, sửa chữa nhà cửa, biệt thự, biệt thự Vinhomes nhà hàng, sân vườn tiểu cảnh Huytrandesign – thiết kế biệt thự tân cổ điển khu vực Long Biên, Gia Lâm (Hà Nội) và các tỉnh thành miền Bắc.

Để thiết kế riêng cho ngôi nhà của bạn hãy liên hệ với chúng tôi để được tư vấn MIỄN PHÍ 

Tel: 083.3333.183 (Hieu Mr) - 0813.383.183

Website: http://huytrandesign.vn/. 

VPGD: Sao Biển 01-134, Vinhomes Ocean Park, Gia Lâm, Hà Nội

Đánh giá - Bình luận
0 bình luận, đánh giá về Thiết kế cải tạo biệt thự liền kề đẹp 2 mặt tiền kết hợp kinh doanh
Nhấn vào đây để đánh giá
Thông tin người gửi
Video
Thiết Kế Nội Thất Biệt Thự Vinhomes Ocean Park Độc Đáo
Thiết Kế Nội Thất Biệt Thự Vinhomes Ocean Park Độc Đáo
Thiết Kế Nội Thất Biệt Thự Vinhomes Ocean Park Độc Đáo
Thiết Kế Nội Thất Biệt Thự Vinhomes Ocean Park Độc Đáo
04/09/19
Thiết kế nội thất nhà phố độc đáo lạ mắt
Thiết kế nội thất nhà phố độc đáo lạ mắt
11/09/19
VTV Vingroup tiết lộ về bất động sản VinCity
VTV Vingroup tiết lộ về bất động sản VinCity
21/03/19
Cuốn hút với Thiết kế Biệt thự Hoa Sữa Vinhomes Riverside
Cuốn hút với Thiết kế Biệt thự Hoa Sữa Vinhomes Riverside
03/09/19
Chúng tôi có thể hỗ trợ bạn!
0.15340 sec| 2649.414 kb