Nhà 3 tầng tân cổ điển đẹp mặt phố tại Ngọc Thụy, Long Biên, Hà Nội

Chủ đầu tư không yêu cầu quá cao về ngôi nhà nhưng điều CĐT mong muốn ở chúng tôi đó là thiết kế toát lên được nét cổ điển, phóng khoáng, sang trọng và tỉ mỉ từng chi tiết. Huytrandesign luôn luôn tôn trọng khách hàng, khi thiết kế công trình về mẫu nhà 3 tầng Tân cổ điển Kiến trúc sư và kỹ sư xây dựng của chúng tôi luôn có sự sáng tạo, có gu thẩm mĩ tinh tế, kỹ thuật phải chuyên nghiệp. Kèm theo đó Kiến trúc sư và Kỹ sư xây dựng đều là những người có kinh nghiệm về những dự án thiết kế biệt thự, thiết kế biệt thự Tân cổ điển, thiết kế biệt thự hiện đại, thiết kế nhà ống theo phong cách Tân cổ điển,... 

Tổng quan
Chủ đầu tư
Chị Hạnh, anh Chương
Địa điểm
Ngọc Thụy, Long Biên, Hà Nội
Số tầng
3
Diện tích đất
304m2
Đơn vị thực hiện
Huytrandesign
Năm thi công
2022
Ưu điểm Nhà 3 tầng tân cổ điển đẹp mặt phố tại Ngọc Thụy, Long Biên, Hà Nội

Thiết kế ngoại thất nhà 3 tầng tân cổ điển

Vẫn là những mẫu thiết kế kiến trúc theo trào lưu tân cổ điển, nhưng tùy thuộc vào yêu cầu của mỗi gia đình, mỗi cá tính gia chủ, Huytrandesign lại có những cách nhấn nhá họa tiết, hoa văn tại những vị trí khác nhau với mật độ khác nhau, từ đó tạo nên diện mạo hoàn toàn khác biệt cho mỗi mẫu thiết kế nhà 3 tầng tân cổ điển đẹp.

Thiết kế mặt bằng ngoại thất nhà 3 tầng đẹp - Huytrandesign
Nhà 3 tầng phong cách tân cổ điển đơn giản

Kiến trúc sư chúng tôi đã chú trọng từng chi tiết trên cột, phào, chỉ không những thế KTS Huytrandesign chọn ban công tròn cách điệu, cửa vòm cổ điển vừa thể hiện sự sang trọng, quý phái mà lại tôn lên được nét đẹp tinh tế, đồng nhất 

Thiết kế mặt bằng ngoại thất nhà 3 tầng đẹp - Huytrandesign
Thiết kế thêm cây xanh tiểu cảnh 

Mẫu nhà biệt thự 3 tầng mái thái mang đến sự hoài cổ và sâu lắng độ bền cao chất lượng tốt và sử dụng lâu dài với thời gian. Ngoài ra, thiết kế mái ngói thái cho biệt thự 3 tầng cũng rất phù hợp với khí hậu Việt Nam. Mùa hè giúp điều hòa không khí, mùa mưa giúp mái nhà dóc nước nhanh, không bị ứ đọng vừa đảm bảo tính thẩm mỹ vừa là sự lựa chọn của rất nhiều chủ đầu tư đối với thiết kế biệt thự  

Thiết kế mặt bằng ngoại thất nhà 3 tầng đẹp - Huytrandesign
Thiết kế thêm mái thái đơn giản màu xanh

Mẫu biệt thự tân cổ điển 3 tầng đẹp thiết kế ban công hình tròn và cạnh vuông kết hợp lan hoa nghệ thuật đơn giản sợi mảnh phong cách hoàng gia và cũng là mẫu mã mới nhất năm 2022. Thiết kế biệt thự Tân cổ điển 3 tầng mái thái với hoa văn giản lược nhưng lối thiết kế kiến trúc và hoa văn vẫn toát lên được nét đặc trưng như cột trụ trang trí, hoa văn và phù điêu trên cột và cổng,... 

Thiết kế mặt bằng ngoại thất nhà 3 tầng đẹp - Huytrandesign
Thiết kế cổng và ban công lan hoa uốn lượn

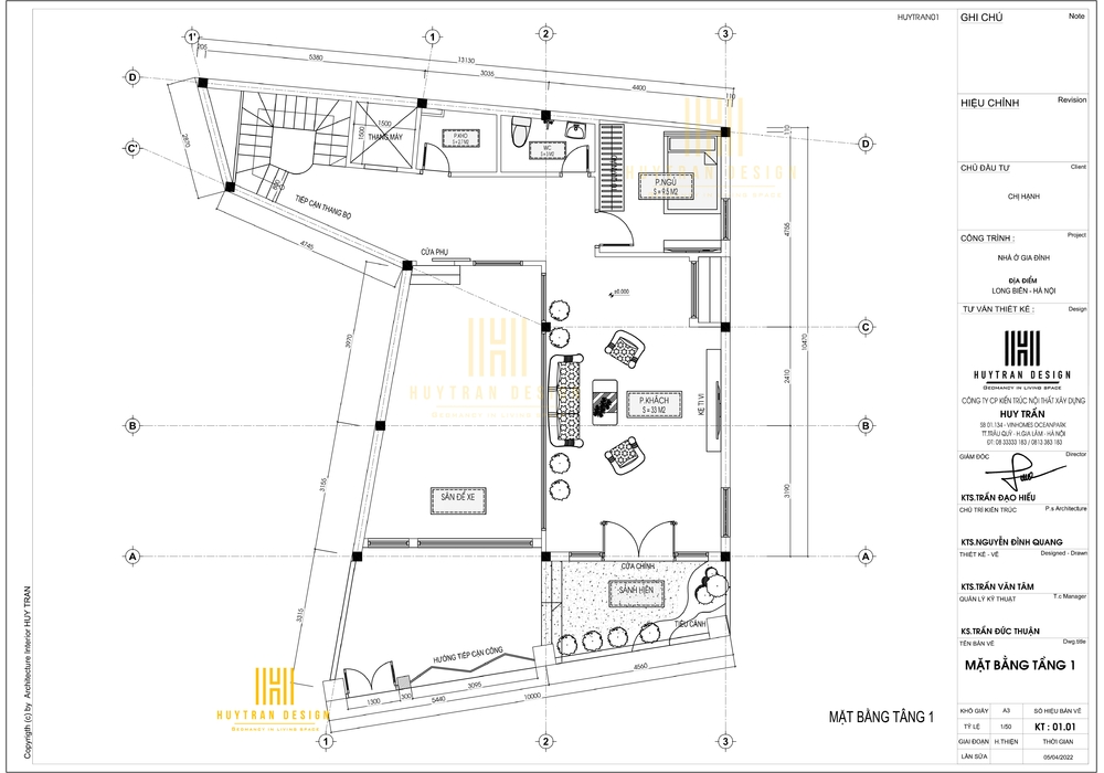
Thiết kế mặt bằng và công năng nhà phố 3 tầng tân cổ điển đẹp trên mảnh đất chéo - méo không vuông

Mặt bằng tầng 1 nhà 3 tầng tân cổ điển đẹp

Mặt bằng tầng 1 nhà phố 3 tầng gồm:

- Gara để xe ô tô diện tích 26m2

- Phòng khách diện tích 

- Phòng ngủ diện tích 9.5m2

- Nhà vệ sinh diện tích 3m2

- Kho diện tích 2.7m2

Thiết kế mặt bằng tầng 1 nhà phố 3 tầng tân cổ điển mặt tiền 10 với 1 phòng khách rộng rãi, sáng sủa gần sảnh hiên. Thiết kế gara ô tô để xe từ cổng thẳng vào có cửa cuốn đảm bảo an ninh cho toàn gia đình. Ngoài ra thiết kế phòng ngủ nhỏ dưới tầng 1 với diện tích gần 10m2 thuận tiện nghie ngơi cũng có thể thiết kế dành cho người lớn tuổi hoặc người giúp việc là hợp lý. Nhà vệ sinh chung thiết kế lui sâu bên trong cùng nhà kho nhỏ để đảm bảo được nhu cầu sinh hoạt cần thiết cho gia đình. Vì đây là mảnh đất chéo, không vuông nên KTS Huytrandesign đã sắp xếp thang bộ ở góc nhỏ khiến ngôi nhà trở nên khoa học hơn, diện tích sử dụng cũng tối đa nhất có thể.

Thiết kế mặt bằng nội thất nhà 3 tầng đẹp - Huytrandesign
Mặt bằng tầng 1

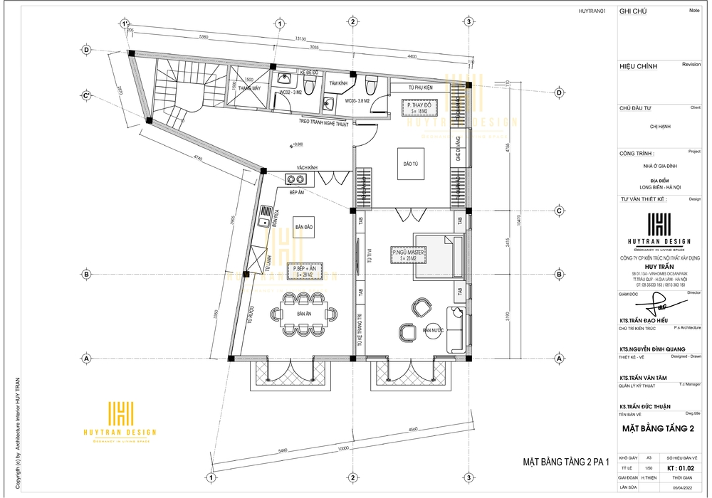
Thiết kế mặt bằng tầng 2

Mặt bằng tầng 2 nhà ống 3 tầng đẹp tại Long Biên bao gồm:

- Bếp và phòng ăn diện tích 28m2

- Phòng ngủ Master diện tích 45m2

- Nhà vệ sinh chung diện tích 3m2

Mặt bằng nội thất tầng 2 được thiết kế 2 không gian đó là bếp và phòng ngủ Master, cả 2 không gian này đều thiết kế có ban công mang đến không gian thông thoáng, thân thiện với môi trường. Phòng ngủ Master diện tích 45m2 bao gồm: Khu ngủ và bàn nước diện tích 23m2, phòng thay đồ diện tích 18m2, nhà vệ sinh diện tích 3.8m2

Thiết kế mặt bằng nội thất nhà 3 tầng đẹp - Huytrandesign
Mặt bằng tầng 2 nhà phố 3 tầng tân cổ điển

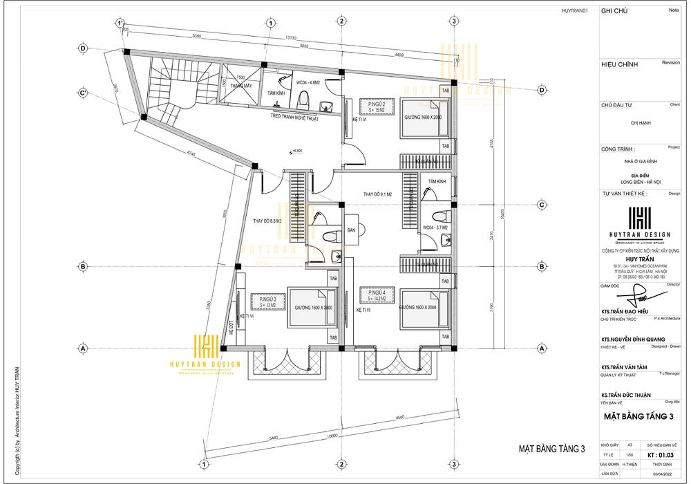
Thiết kế mặt bằng tầng 3

Mặt bằng tầng 3 gồm 3 phòng ngủ khép kín và diện tích từng phòng lần lượt là:

- Phòng ngủ 2 diện tích 20m2

- Phòng ngủ 3 diện tích 22m2

- Phòng ngủ 4 diện tích 27m2

Thiết kế mặt bằng nội thất nhà 3 tầng đẹp - Huytrandesign
Mặt bằng tầng 3

Thiết kế nội thất nhà 3 tầng tân cổ điển đẹp

Gara để xe

Thiết kế nội thất nhà 3 tầng có không gian để xe máy và ô tô là rất cần thiết và đây cũng là điều kiện cần của mỗi gia đình. Thiết kế không gian để xe nhỏ gọn có thể để được ô tô và 4-5 chiếc xe máy vừa hợp lý mà vẫn giữ gìn được tài sản riêng của gia đình. Bên phải gra là phòng khách thiết kế cửa kính giúp căn phòng có chiều sâu hơn đồng thời tiến sâu vào trong là cửa phụ thiết kế thông gara để xe với không gian nhà

Thiết kế nội thất nhà 3 tầng đẹp - Huytrandesign
Gara để xe cho cả gia đình

Thiết kế nội thất phòng khách

Phòng khách theo góc nhìn từ cửa chính thấy được trọn vẹn phòng khách.Bộ bàn ghế sofa hiện đại được lựa chọn từ bộ sưu tập nội thất cao cấp, độc đáo. Mặt bàn sử dụng đá Marble trắng vân đá, chân bàn, ghế được thiết kế uốn lượn, uyển chuyển.

Thiết kế nội thất nhà 3 tầng đẹp - Huytrandesign
Không gian thông thoáng thiết kế hệ cửa kính giúp không gian trở nên rộng rãi hơn

Không những thế phòng khách được thiết kế màu chủ đạo là màu trắng kết hợp màu xanh bạc hà, kệ để đồ, đèn chùm, đèn tường, thảm hoa văn thiên hướng cổ điển làm điểm nhấn cho phòng khách vừa sang trọng lịch thiệp lại vừa sáng sủa nhẹ nhàng, đón trọn ánh sáng tự nhiên. Nền nhà vân đá cùng tông với mặt bàn trà tạo nên sự hài hòa kết hợp với sofa da, thảm trải nhà vintage, đèn chùm, bức tranh cổ điển vừa thể hiện được vẻ đẹp hiện đại lại vừa thấy được nét đẹp cổ kính, sang trọng.

 

 

Thiết kế nội thất nhà 3 tầng đẹp - Huytrandesign
Bộ sofa được thiết kế uốn lượn độc đáo

Trần nhà thiết kế giật cấp có đèn LED màu vàng trung tính âm trần mang đến vẻ đẹp sang trọng, tinh tế. Cửa chính sử dụng hệ cửa gõ tự nhiên với hoa văn họa tiết hình tròn phối kính vân hoa nổi tinh tế đồng bộ với phào chỉ chân tường và khuân tranh càng tôn lên vẻ đẹp đẳng cấp, thời thượng của phòng khách

Thiết kế nội thất nhà 3 tầng đẹp - Huytrandesign
Cửa chính sử dụng mẫu mã đơn giản nhưng vô cùng tinh tế và ưa chuộng nhất

Vách tivi sử dụng tấm PVC Vân đá sáng màu kết hợp 2 vách kính họa tiết hình thoi giúp căn phòng trở nên bắt mắt và có chiều sâu hơn 

Thiết kế nội thất nhà 3 tầng đẹp - Huytrandesign
Thiết kế phòng khách với màu sắc trầm ấm theo xu hướng mới

Phòng bếp và phòng ăn

Nội thất phòng bếp biệt thự sử dụng gỗ tự nhiên bền bỉ hình chữ l và được sắp xếp hợp lý giữa các nội thất nhà bếp. Với màu trắng chủ đạo kết hợp đồ nội thất gỗ cao cấp sơn màu trắng mang đến sự hài hòa giữa không gian bếp không quá sáng mà cũng không quá tối. Theo quan niệm phòng bếp và phòng ăn được coi là trái tim của ngôi nhà là nơi thỏa mãn niềm đam mê của những người nội trợ đồng thời đây cũng là không gian gắn kết cả gia đình với nhau, là nơi sẻ chia tình cảm, quan tâm trong bữa ăn.

Thiết kế nội thất nhà 3 tầng đẹp - Huytrandesign
Hệ bếp chữ L vưới màu sắc hài hòa

 Để bếp tối ưu công năng sử dụng riêng thì kts Huytrandesign thường thiết kế thêm các khoảng tủ đựng đồ dùng trang trí của nhà bếp hoặc đảo bếp  giúp tăng thêm phần công năng cho người sử dụng. Tủ bếp trang trí nhỏ có thể trưng bày đồ kết hợp trưng bày rượu vang bếp sẽ tăng diện tích lưu trữ đồ đạc và giúp căn bếp trở nên gọn gàng sạch sẽ và thuận tiện hơn.

Thiết kế nội thất nhà 3 tầng đẹp - Huytrandesign
Thiết kế tủ trưng bày rượu vang nhỏ
Thiết kế nội thất nhà 3 tầng đẹp - Huytrandesign
Thiết kế không gian bếp lớn thông thoáng

không gian phòng ăn sáng sủa được thiết kế nội thất gỗ tự nhiên và mỗi chiếc ghế đều được bọc nỉ nhung nâu nhạt toát lên vẻ đẹp sang trọng cổ kính. Chất liệu nỉ nhung thường mang đến cảm giác mềm mại cho nên gia chủ muốn kết hợp ghế bọc nỉ để mọi người cảm nhận được sự thân thiện, thoải mái dễ chịu từ chính ngôi nhà của mình

Thiết kế nội thất nhà 3 tầng đẹp - Huytrandesign
Không gian phòng ăn sáng sủa với nội thất gỗ tự nhiên kết hợp nỏ nhung và đá cao cấp

Thiết kế toàn bộ không gian phòng ăn và phòng bếp rộng rãi thoáng mát cạnh cửa sổ kính lớn

Thiết kế nội thất nhà 3 tầng đẹp - Huytrandesign
Toàn bộ không gian phòng bếp và phòng ăn

Thiết kế phòng ngủ nhà 3 tầng đơn giản mà tinh tế

 Phòng ngủ tầng 1

Phòng ngủ nhỏ tầng 1 thiết kế đơn giản với hệ tủ quần áo gỗ tự nhiên và 1 chiếc giường nhỏ và trang trí đơn giản với phào chỉ khuân tranh gỗ tinh tế.

Thiết kế nội thất nhà 3 tầng đẹp - Huytrandesign
Phòng ngủ nhỏ dưới tầng 1 

Phòng ngủ Master

Thiết kế phòng ngủ Master đẹp với màu sắc giản dị, tinh tế, hạn chế những chi tiết rườm rà, rối mắt nhưng bố cục lại vô cùng chặt chẽ và hợp lý. Sàn nhà được lát toàn bộ bằng gỗ tự nhiên màu nâu nhạt họa tiết xương cá độc đáo mang đến vẻ đẹp mới lạ và nổi bật hơn. Thiết kế cửa kính đẩy họa tiết sọc pha lê với mẫu mã mới nhất năm 2022 mang đến không gian sang trọng đồng thời ngăn cách tính tế giữa phòng ngủ với không gian phòng thay đồ

Thiết kế nội thất nhà 3 tầng đẹp - Huytrandesign
Phòng ngủ Master thiết kế rộng rãi thông sang phòng thay đồ

Vách đầu giường sử dụng giấy dán tường họa tiết hoa nổi tân cổ điển sang trọng viền được làm bằng phào chỉ khuân tranh giống như những bức tranh lớn đem thêm màu sắc khác cho căn phòng ngủ. Trần phòng ngủ thiết kế giật cấp ngoài đèn LED Downlight thì thiết kế thêm đèn LED âm trần ánh sáng vàng trung tính mang đến không gian ngủ lung linh và huyền ảo hơn.

Thiết kế nội thất nhà 3 tầng đẹp - Huytrandesign
Giường ngủ kingsize đơn giản, nhã nhặn

 Thiết kế góc tivi với giấy dán tường hoa nổi kết hợp trang trí chi tiết cột hoa văn tân cổ càng thêm sang trọng tinh tế. Hai bên sử dụng hệ tủ gỗ tự nhiên sơn trắng kết hợp để sách và trưng bày có hệ thống LED cảm ứng độc đáo càng tôn lên vẻ đẹp lung linh tinh tế.

Thiết kế nội thất nhà 3 tầng đẹp - Huytrandesign
Trang trí bắt mắt với hệ tủ sách có gắn đèn LED cảm ứng

Không gian thiết kế thông thoáng với diện cửa ban công và cửa sổ kính lớn mang đến cảm giác thư thái, sáng sủa thân thiện với môi trường. 

Thiết kế nội thất nhà 3 tầng đẹp - Huytrandesign
Phòng ngủ Master tinh tế phối thêm hoa văn nổi tân cổ điển

 Không gian thay đồ phòng ngủ Master có đảo phụ kiện trưng bày trang sức kết hợp 2 tủ quần áo 2 bên cho 2 vợ chồng. Tone màu trắng tổng thể đều mang đến sự nhẹ nhàng, tinh khiết kết hợp đèn thả trần pha lê kết hợp đèn LED cảm ứng gắn tủ trang trí càng làm căn phòng thêm lung linh

Thiết kế nội thất nhà 3 tầng đẹp - Huytrandesign
Không gian thay đồ và không gian ngủ được ngăn cash tinh tế từ hệ cửa kính vân pha lê mới nhất 2022

 Thiết kế một chiếc gương lớn ốp tường có thể soi gương lúc diện đồ và chọn được đồ phù hợp nhất và đẹp nhất 

Thiết kế nội thất nhà 3 tầng đẹp - Huytrandesign
Không gian rộng thay đồ và trưng bày phụ kiện

Không gian thay đồ và trưng bày trong phòng ngủ được thiết kế gần cửa ra vào và gần nhà tắm vừa thuận tiện cho gia chủ mà đây còn là thiết kế tinh tế giúp không gian ngủ gần ban công được thông thoáng và rộng rãi hơn. 

Thiết kế nội thất nhà 3 tầng đẹp - Huytrandesign
Khu đảo phụ kiện 

Phòng ngủ 2

 Thiết kế phòng ngủ 2 với diện tích nhỏ đủ để kê 1 chiếc giường, một hệ tủ quần áo 4 buồng, 1 bàn trang điểm. Toàn bộ nội thất thiết kế theo phong cách tân cổ điển đơn giản nhưng toàn bộ nội thất đều là đồ cao cấp , bền và đặc biệt mang đến không gian tinh tế và nhã nhặn.

Thiết kế nội thất nhà 3 tầng đẹp - Huytrandesign
Thiết kế phòng ngủ 2 khép kín đơn giản thêm khung tranh mang đến sắc màu mới cho căn phòng

Tất cả các chi tiết phào chỉ, hoa văn hay những đồ trang trí đều được giản lược họa tiết hoa văn phào chỉ không cần thiết  kết hợp cửa sổ thông thoáng giúp căn phòng nhỏ trở nên thông thoáng và rộng rãi hơn

Thiết kế nội thất nhà 3 tầng đẹp - Huytrandesign
Không gian ngủ tuy nhỏ nhưng vẫn đảm bảo được không gian sinh hoạt tiêu chuẩn

Ngoài ra sử dụng hệ gương lớn có viền là phào chỉ khuôn tranh tinh tế tạo được chiều sâu cho ngôi nhà mà vẫn có thể soi gương khi lựa đồ làm sao cho chọn đồ được ưng ý nhất 

Thiết kế nội thất nhà 3 tầng đẹp - Huytrandesign
Hệ tủ quần áo 4 buồng cạnh bàn trang điểm

Thiết kế phòng ngủ 3

Thiết kế phòng ngủ 3 với màu sắc có chút trầm lắng hơn. Thiết kế hệ tủ quần áo gần lối ra vào có góc tủ trưng bày phụ kiện thời trang kết hợp đèn LED cảm ứng tôn lên vẻ đẹp món đồ mà hỗ trợ căn phòng trầm ấm và lung linh hơn.

Thiết kế nội thất nhà 3 tầng đẹp - Huytrandesign
Không gian đơn giản nhưng đảm bảo đầy đủ công năng sử dụng

Sử dụng hệ tủ 4 cánh và thiết kế hệ tủ âm tường tinh tế. Phòng ngủ 3 được thiết kế khép kín có nhà tắm ngay trong nhà, đằng sau hệ tủ quần áo mang đến sự tinh tế trong thiết kế mà vẫn đảm bảo được công năng sử dụng trong không gian riêng một cách khoa học nhất

Thiết kế nội thất nhà 3 tầng đẹp - Huytrandesign
Thiết kế hệ tủ quần áo 4 cánh âm tường kết hợp nhà vệ sinh khép kín hợp lý

Ngoài việc thiết kế đồ nội thất ra thì phối màu cũng rất quan trọng. Thiết kế phòng ngủ 3 cho nhà 3 tầng tân cổ điển với vách ốp đầu giường bọc nỉ ghi xám trang trí thêm nẹp kim loại màu vàng tinh tế. Bên cạnh phòng ngủ là ban công rộng với hệ cửa kính lấy sáng cũng có thể thư giãn hóng gió vào sáng sớm hoặc lúc tối phố lên đèn là rất hợp lý

Thiết kế nội thất nhà 3 tầng đẹp - Huytrandesign
Phòng ngủ 3 có ban công thông thoáng hóng gió

Thiết kế vách ốp PVC vân đá sáng màu và bên cạnh được thiết kế chiếc gương lớn phục vụ nhu cầu cần thiết. Ngoài ra tất cả các phòng ngủ đều được ốp sàn gỗ họa tiết xương cá sáng màu mang đến sự mới lạ và độc đáo 

Thiết kế nội thất nhà 3 tầng đẹp - Huytrandesign
Trang trí không gian phòng ngủ 3 rộng rãi thoáng mát

 Thiết kế phòng ngủ 4

Thiết kế phòng ngủ 4 gần giống phòng ngủ 3, ốp đầu giường được thay bằng tấm ốp bọc da màu xám vân nổi đồng điệu với chiếc giường. Bên phải được thiết kế cửa ban công thông thoáng, bên trái được thiết kế thêm nhà vệ sinh khép kín kết hợp 1 hệ tủ quần áo nhỏ bên cạnh vừa để trang trí vừa tận dụng được tối đa công năng và diện tích trong căn phòng

Thiết kế nội thất nhà 3 tầng tân cổ điển
Thiết kế hệ tủ 2 cánh và kệ trang trí âm tường nhỏ gọn

Không gian được bày trí một cách hợp lý nhất có thể 

Thiết kế nội thất nhà 3 tầng tân cổ điển
Thiết kế phòng ngủ 4 thông thoáng trang trí họa tiết tinh tế

Ngoài hệ tủ cạnh giường KTS thiết kế thêm một hệ tủ quần áo gần lối ra vào vừa có thể trưng bày, trang trí vừa đảm bảo nhu cầu sinh hoạt của gia chủ. Hệ tủ kệ tivi với hoa văn cổ điển họa tiết nổi tinh tế kết hợp vách tivi PVC vân đá sáng màu đơn giản

Thiết kế nội thất nhà 3 tầng tân cổ điển
Thiết kế kệ tủ tivi và tủ quần áo trang trí 2 cánh

Để thiết kế riêng cho ngôi nhà của bạn hãy liên hệ với chúng tôi để được tư vấn MIỄN PHÍ 

Tel: 083.3333.183 (Hieu Mr) - 0813.383.183

Website: http://huytrandesign.vn/. 

VPGD: Sao Biển 01-134, Vinhomes Ocean Park, Gia Lâm, Hà Nội

Đánh giá - Bình luận
0 bình luận, đánh giá về Nhà 3 tầng tân cổ điển đẹp mặt phố tại Ngọc Thụy, Long Biên, Hà Nội
Nhấn vào đây để đánh giá
Thông tin người gửi
Video
Thiết Kế Nội Thất Biệt Thự Vinhomes Ocean Park Độc Đáo
Thiết Kế Nội Thất Biệt Thự Vinhomes Ocean Park Độc Đáo
Thiết Kế Nội Thất Biệt Thự Vinhomes Ocean Park Độc Đáo
Thiết Kế Nội Thất Biệt Thự Vinhomes Ocean Park Độc Đáo
04/09/19
Thiết kế nội thất nhà phố độc đáo lạ mắt
Thiết kế nội thất nhà phố độc đáo lạ mắt
11/09/19
VTV Vingroup tiết lộ về bất động sản VinCity
VTV Vingroup tiết lộ về bất động sản VinCity
21/03/19
Cuốn hút với Thiết kế Biệt thự Hoa Sữa Vinhomes Riverside
Cuốn hút với Thiết kế Biệt thự Hoa Sữa Vinhomes Riverside
03/09/19
Chúng tôi có thể hỗ trợ bạn!
0.18632 sec| 2701.938 kb