Mẫu nhà 2 tầng hiện đại mái nhật ở nông thôn đẹp năm 2022

Nhà phố 2 tầng hiện đại ở nông thôn thiết kế 5 phòng ngủ đơn giản phù hợp với gia đình đa thế hệ. Thiết kế sử dụng mái Nhật tăng tính thẩm mỹ phù hợp với khí hậu Việt Nam và đặc biệt phù hợp với thiết kế nhà ở nông thôn tại một huyện ở Nam Định

Tổng quan
Chủ đầu tư
anh Hiền
Địa điểm
Nam trực, Nam Định
Số tầng
2 tầng
Diện tích đất
250m2
Đơn vị thực hiện
Huytrandesign
Năm thi công
2021
Ưu điểm Mẫu nhà 2 tầng hiện đại mái nhật ở nông thôn đẹp năm 2022

Mẫu nhà 2 tầng hiện đại có sân vườn đẹp tại Nam Định

Thiết kế thi công biệt thựnhà phốcải tạo biệt thự Vinhomes trọn gói là một trong những lĩnh vực chuyên môn của Huytrandesign. KTS Huytrandesign là những cá nhân có chuyên môn với nhiều năm kinh nghiệm Huytrandesign đã tạo niềm tin và sự hài lòng đến hàng ngàn khách hàng tại Hà Nội và các tỉnh lân cận. Dưới đây là mẫu thiết kế nhà 2 tầng hiện đại mái Nhật đẹp nhà anh Hiền và được bạn bè giới thiệu anh đã tin tưởng và hài lòng với mẫu thiết kế này tại Nam Định.

Thiết kế ngoại thất nhà 2 tầng
Ngoại thất 2 tầng mái nhật hiện đại, tinh tế theo xu hướng mới nhất năm 2020

Mẫu thiết kế nhà phố 2 tầng đẹp hiện đại đơn giản với mẫu mã mới nhất năm 2022 mang đến không gian phong phú đa dạng. Thiết kế hiện đại trang nhã sử đá bóc chẻ xanh tự nhiên trang trí ngoại thất tầng 1 là đá tự nhiên, đá thiên nhiên có độ bền vĩnh cửu, không phai màu theo thời gian.

 

Thiết kế ngoại thất nhà 2 tầng
Thiết kế đá chẻ xanh ốp tường độc đáo mang 1 chút vẻ đẹp mộc mạc tự nhiên

 

  Mẫu nhà nông thôn 2 tầng hiện đại ốp viền nhà với đá họa tiết đá thô tinh tế nổi bật trên nền nhà trắng. Thiết kế hiện đại với các cột, hình khối đơn giản hiện đại kết hợp cửa gỗ tự nhiên truyền thống, hệ thống cửa sổ kính khung nhôm hiện đại chống nắng chông gió chống mưa thân thiện với môi trường mà vẫn đảm bảo được ánh sáng tự nhiên tràn ngập căn phòng

Thiết kế ngoại thất nhà 2 tầng
Viền nhà sử dụng gạch vân đá tự nhiên độc đáo càng làm nổi bật ngôi nhà hơn

Thiết kế biệt thự 2 tầng mái ngói nhật thường là sự lựa chọn của các chủ đầu tư về mặt thẩm mỹ cũng như phù hợp với khí hậu Việt Nam. Mái Nhật là sự kết hợp giữa hai nền văn hóa Á - Âu nó mang đến những vẻ đẹp phóng khoáng, mạnh mẽ khi thiết kế nhà với phong cách tân cổ điển lại mang đến sự sang trọng, thanh lịch và vô cùng tinh tế.

Thiết kế ngoại thất nhà 2 tầng
Sử dụng mái nhật phù hợp với khí hậu và thẩm mỹ

Tầng 2 thiết kế nhiều ban công rộng, thiết kế giàn bê tông ngoài hiên kết hợp trồng cây leo xanh mát, điểm tô thêm cho ngôi nhà một phong cách mới, sự độc đáo và vô cùng tuyệt vời.

Thiết kế ngoại thất nhà 2 tầng
Thiết kế sân chơi có giàn cây leo xanh mát

 

Thiết kế mẫu nhà 2 tầng mái nhật có nhiều ban công rộng rãi có thể nhâm nhi ly cà phê vào mỗi buổi sáng, hít thở không khí trong lành hay có thể ngắm cảnh hóng gió vào ban đêm, thư giãn sau ngày dài làm việc mệt mỏi.

 

Thiết kế ngoại thất nhà 2 tầng
Thiết kế ban công thông thoáng cho các phòng ngủ

Mặt bằng và công năng khoa học cho nhà 2 tầng hiện đại

Mẫu nhà 2 tầng mái Nhật diện tích 9x12m2 ở nông thôn thông thoáng, thiết kế đơn giản phong cách hiện đại 5 phòng ngủ giá rẻ dưới 1.5 tỷ. Mời quý vị tham khảo mặt bằng và công năng khoa học cho mẫu nhà 2 tầng hiện đại mái nhật đẹp ở nông thôn dưới đây.

Thiết kế mặt bằng tầng 1

Mặt bằng tầng 1 với diện tích 120m2 gồm:

+ Phòng khách diện tích lớn 30m2

+ Phòng ngủ 1 diện tích 19.3m2

+ phòng ngủ 2 diện tích 15.4m2

+ Phòng ngủ 3 diện tích 14m2

+ Nhà vệ sinh nhỏ 3.5m2

Phòng khách được thiết kế 2 cửa đại thông thoáng, mặt tiền ngôi nhà với diện tích 12,9m và cửa chính thiết kế ngay chính giữa. tiến vào trong là phòng khách sâu vào trong nữa là sảnh thang. Bên trái sảnh thang thiết kế 1 phòng ngủ rộng khép kín, bên phải sảnh thang thiết kế 2 phòng ngủ nhỏ và 1 nhà vệ sinh chung đảm bảo được nhu cầu khi mọi người sinh hoạt tầng 1.

Thiết kế mặt bằng tầng 1 nhà 2 tầng
Thiết kế mặt bằng tầng 1 với 3 phòng ngủ

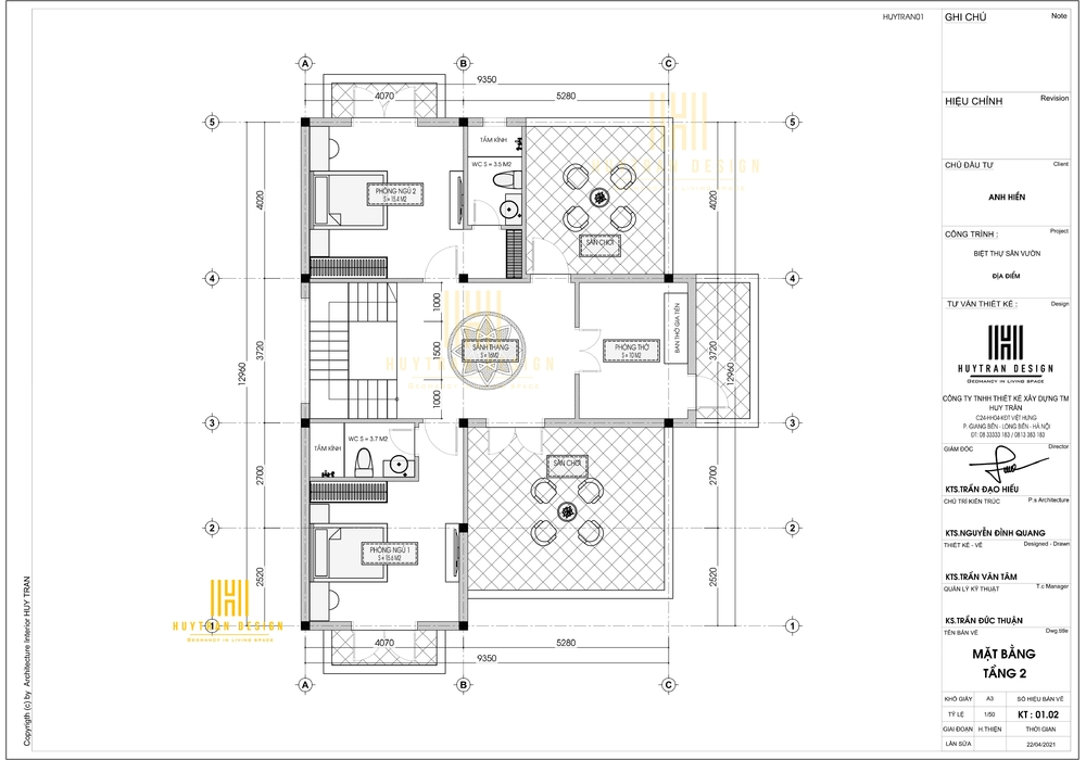
Thiết kế mặt bằng tầng 2

Mặt bằng tầng 2 nhà 2 tầng đẹp mái nhật ở nông thôn gồm:

+ Phòng thờ diện tích 10m2

+ Sảnh thang diện tích 16m2

+ Phòng ngủ 1 diện tích 15.6m2

+ Phòng ngủ 2 diện tích 15.4m2

+  2 Sân chơi thông thoáng

Thiết kế mặt bằng tầng 2 có phòng thờ rộng rãi. Tầng 2 thiết kế thêm 2 sân chơi có 2 bộ bàn ghế thư giãn có thể cùng nhau nhâm nhi ly trà, tổ chức sự kiện nhỏ của gia đình hay thậm chí hóng gió cùng nhau. Mẫu thiết kế nhà 2 tầng mặt tiền 13m đơn giản hiện đại mang đến nhiều tiện nghi cho người sử dụng. 2 phòng ngủ tầng 2 thiết kế khép kín đầy đủ nội thất gồm giường, tủ quần áo, tab đầu giường, nhà vệ sinh khép kín phù hợp với nhu cầu sử dụng của gia chủ.

Thiết kế mặt bằng tầng 2 nhà 2 tầng
Mặt bằng tầng 2 nhà 2 tầng hiện đại đẹp

Bạn đang mong muốn xây nhà phố, biệt thự sân vườn, thi công và cải tạo Biệt thự Tân cổ điển Vinhomes, thiết kế nội thất Shophouse, thiết kế biệt thự Tân cổ điển cho thuê. Hãy liên hệ với chúng tôi để được tư vấn MIỄN PHÍ 24/7: thiết kế, thi công, sửa chữa nhà cửa, biệt thự, biệt thự Vinhomes nhà hàng, sân vườn tiểu cảnh Huytrandesign – thiết kế biệt thự tân cổ điển khu vực Long Biên, Gia Lâm (Hà Nội) và các tỉnh thành miền Bắc.

Để thiết kế riêng cho ngôi nhà của bạn hãy liên hệ với chúng tôi để được tư vấn MIỄN PHÍ 

Tel: 083.3333.183 (Hieu Mr) - 0813.383.183

Website: http://huytrandesign.vn/. 

VPGD: Sao Biển 01-134, Vinhomes Ocean Park, Gia Lâm, Hà Nội

 

Đánh giá - Bình luận
0 bình luận, đánh giá về Mẫu nhà 2 tầng hiện đại mái nhật ở nông thôn đẹp năm 2022
Nhấn vào đây để đánh giá
Thông tin người gửi
Video
Thiết Kế Nội Thất Biệt Thự Vinhomes Ocean Park Độc Đáo
Thiết Kế Nội Thất Biệt Thự Vinhomes Ocean Park Độc Đáo
Thiết Kế Nội Thất Biệt Thự Vinhomes Ocean Park Độc Đáo
Thiết Kế Nội Thất Biệt Thự Vinhomes Ocean Park Độc Đáo
04/09/19
Thiết kế nội thất nhà phố độc đáo lạ mắt
Thiết kế nội thất nhà phố độc đáo lạ mắt
11/09/19
VTV Vingroup tiết lộ về bất động sản VinCity
VTV Vingroup tiết lộ về bất động sản VinCity
21/03/19
Cuốn hút với Thiết kế Biệt thự Hoa Sữa Vinhomes Riverside
Cuốn hút với Thiết kế Biệt thự Hoa Sữa Vinhomes Riverside
03/09/19
Chúng tôi có thể hỗ trợ bạn!
0.15366 sec| 2593.133 kb