Mẫu nhà cấp 4 đẹp mái nhật giá rẻ chỉ với 600 triệu năm 2022

Thiết kế nhà cấp 4 đẹp giá rẻ phong cách Tân cổ điển độc đáo 4 phòng ngủ, mái Nhật phù hợp với gia đình nhiều người, đa thế hệ ở nông thôn. Với chi phí hợp lý khoảng 600 triệu Huytrandesign gửi đến quý vị một dự án nhà cấp 4 ở nông thôn, mời quý vị tham khảo.

Tổng quan
Chủ đầu tư
Anh Dĩnh
Địa điểm
Nam Định
Số tầng
1
Diện tích đất
150m2
Đơn vị thực hiện
Huytrandesign
Năm thi công
2020
Ưu điểm Mẫu nhà cấp 4 đẹp mái nhật giá rẻ chỉ với 600 triệu năm 2022

Mẫu nhà cấp 4 đẹp mái Nhật gái rẻ với ngoại thất tân cổ điển

Nhà cấp 4 đẹp mái nhật có gác lửng nông thôn đơn giản với 4 phòng ngủ mà vẫn đảm bảo được không gian thông thoáng. Mỗi một thiết kế đều mang một ý nghĩa riêng và Huytrandesign đã thiết kế theo yêu cầu sử dụng của CĐT mà vẫn đảm bảo được tính thẩm mỹ, sự sang trọng và độc đáo trên tổng thể ngôi nhà.

Thiết kế nhà cấp 4 đẹp tân cổ điển
Thiết kế nhà cấp 4 với cửa gỗ điêu khắc tinh tế kết hợp kính

Ngoại thất được thiết kế giật cấp độc đáo với sự sáng tạo mới trong lối thiết kế, thiết kế thêm sân vườn vừa mang đến không gian trong lành vừa có thể tận dụng được khoảng trống khi gia chủ có công việc lớn cần sử dụng. Nhà cấp 4 mái nhật 4 phòng ngủ nông thôn đẹp kết hợp mái nhật chéo phù hợp với khí hậu Việt Nam mang đến cho không gian trở nên thông thoáng hơn trong những ngày hè nóng bức, mái sẽ thoát nước nhanh trong ngày mưa. 

Thiết kế nhà cấp 4 mái Nhật
Ngoại thất nhà cấp 4 mái Nhật được ốp đá Granite tinh tế

 Ngoại thất nhà 1 tầng 4 phòng ngủ 150m2 giá rẻ đẹp dưới 600 triệu ốp đá Granite đen vân mây vàng sang trọng. Chân tường được ốp đá xanh xám lộ gạch độc đáo cùng tone màu với mái nhật. Sử dụng màu trắng, thiết kế phào chỉ, cột, diện tường và nhiều hệ cửa sổ luôn là đặc trưng của nhà Tân cổ điển.

Thiết kế nhà cấp 4 ở nông thôn
Thiết kế không gian sân vườn cho nhà cấp 4 ở nông thôn

Thiết kế sân vườn cho nhà cấp 4 đẹp mái nhật mang đến không gian tươi mới, thân thiện với môi trường. Không gian sân vườn trong lành mang đến sự bình yên đồng thời khi thiết kế nhà ở nông thôn thường thiết kế thêm sân để phơi thóc, lúa, khi có việc có thể bắc rạp trên sân mà không ảnh hưởng tới hàng xóm láng giềng

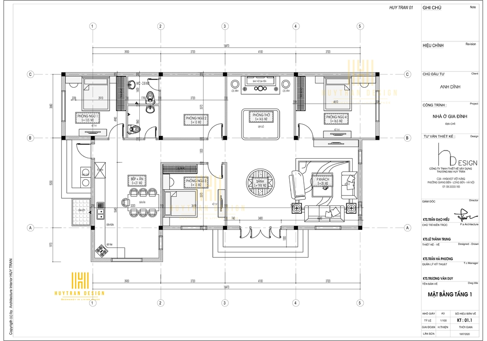
Mặt bằng và công năng nhà cấp 4 đẹp mái nhật 4 phòng ngủ

Mẫu nhà cấp 4 đẹp ở nông thôn giá rẻ luôn được sự quan tâm của mọi người. Bởi vậy, khi thiết kế nhà cấp 4 đẹp giá rẻ thì công năng khoa học và đặc biệt đầy đủ phòng ban và đáp ứng đươc nhu cầu sử dụng của gia chủ. Mặt bằng nhà 1 tầng đẹp bào gồm:

+ Sảnh diện tích 19.8m2

+ Phòng thờ diện tích 14.5m2

+ Phòng khách diện tích 20m2

+ Bếp và phòng ăn diện tích 21m2

+ 4 phòng ngủ diện tích lần lượt là: 13.5m2,13m2, 13m2, 16.5m2

+ Sân phụ gồm máy giặt và sân ướt rửa đồ

Bước từ cửa chính vào là sảnh, bên phải sảnh là phòng tiếp khách với bộ sofa lớn kết hợp 3 cửa sổ thông thoáng hỗ trợ ánh sáng cho phòng khách. Song song với phòng khách lui vào phía trong là 1 phòng ngủ 4 diện tích 16.5m2. Từ sảnh chính bước vào trong là không gian phòng thờ thiết kế không gian mở liền phòng khách có sử dụng sập gỗ và trang trí theo phong cách cổ xưa thuần việt.

Bên trái sảnh chính là 2 phòng ngủ song song phòng ngủ 13 m2 và thiết kế 1 phòng ngủ master có nhà vệ sinh khép kín diện tích 2.8m2 thuận tiện sử dụng. Đi sâu vào trong qua 2 phòng ngủ thì phía bên phải là nhà vệ sinh chung và phòng ngủ 1 với diện tích 13.5m2 tay trái là phòng ăn kết hợp bếp nấu ăn diện tích 21m2 thông thoáng. Cạnh phòng bếp được thiết kế 2 cửa sổ kết hợp cửa sau lớn thông ra sân phụ được đặt 1 chiếc máy giặt và sân ướt rửa đồ.

công năng nội thất nhà cấp 4
Công năng nội thất khoa học cho nhà cấp 4 với 4 phòng ngủ

Bạn đang mong muốn xây nhà phố, nhà cấp 4, biệt thự sân vườn, thi công và cải tạo biệt thự tân cổ điển Vinhomes, thiết kế nội thất shophouse, thiết kế biệt thự tân cổ điển cho thuê. Hãy liên hệ với chúng tôi để được tư vấn MIỄN PHÍ 

Tel: 083.3333.183 (Hieu Mr) - 0813.383.183

Website: http://huytrandesign.vn/. 

VPGD: Sao Biển 01-134, Vinhomes Ocean Park, Gia Lâm, Hà Nội

 

Đánh giá - Bình luận
0 bình luận, đánh giá về Mẫu nhà cấp 4 đẹp mái nhật giá rẻ chỉ với 600 triệu năm 2022
Nhấn vào đây để đánh giá
Thông tin người gửi
Video
Thiết Kế Nội Thất Biệt Thự Vinhomes Ocean Park Độc Đáo
Thiết Kế Nội Thất Biệt Thự Vinhomes Ocean Park Độc Đáo
Thiết Kế Nội Thất Biệt Thự Vinhomes Ocean Park Độc Đáo
Thiết Kế Nội Thất Biệt Thự Vinhomes Ocean Park Độc Đáo
04/09/19
Thiết kế nội thất nhà phố độc đáo lạ mắt
Thiết kế nội thất nhà phố độc đáo lạ mắt
11/09/19
VTV Vingroup tiết lộ về bất động sản VinCity
VTV Vingroup tiết lộ về bất động sản VinCity
21/03/19
Cuốn hút với Thiết kế Biệt thự Hoa Sữa Vinhomes Riverside
Cuốn hút với Thiết kế Biệt thự Hoa Sữa Vinhomes Riverside
03/09/19
Chúng tôi có thể hỗ trợ bạn!
0.13281 sec| 2597.008 kb