Thiết kế văn phòng cao cấp chuyên nghiệp đẹp nhất 2022

Thiết Kế văn phòng đem đến cho doanh nghiệp một không gian làm việc mới lạ. Với một hình ảnh thiết kế mới giúp cho doanh nghiệp nâng tầm giá trị, vị thế đối với khách hàng cũng như đem đến không gian tuyệt vời cho không gian làm việc tập trung hiệu quả.

Tổng quan
Chủ đầu tư
Anh Điệp
Địa điểm
Tam Trinh, Hoàng Mai, Hà Nội
Số tầng
7 tầng
Diện tích đất
490m2
Đơn vị thực hiện
Huytrandesign
Năm thi công
2021
Ưu điểm Thiết kế văn phòng cao cấp chuyên nghiệp đẹp nhất 2022

Thiết kế văn phòng cao cấp với hệ thống nhà kính 3 mặt tiền

Trở lại với những thiết kế văn phòng cao cấp, cơ sở kinh doanh, buôn bán, hôm nay Huytrandesign xin giới thiệu một mẫu thiết kế kiến trúc văn phòng theo trường phái hiện đại, đơn giản , sang trọng, trang nhã mang vẻ đẹp rạng ngời hút mắt ngay từ cái nhìn đầu tiên.

Mẫu thiết kế văn phòng làm việc đẹp thỏa mãn đầy đủ 02 yêu cầu cơ bản là tính công năng và tính thẩm mỹ dựa theo nhu cầu của chủ đầu tư về một không gian nội thất thời thượng, đơn giản nhưng vẫn quý phái, rạng rỡ.

Thiết kế kiến trúc văn phòng cao cấp hiện đại
Thiết kế mẫu văn phòng đẹp mắt tại phố Tam Trinh, Hoàng Mai, Hà Nội.

Thiết kế ngoại thất văn phòng là một điều cẩn trọng và lưu ý có đầy đủ tính chất, yếu tố của một công ty tạo nên sự uy tín, thư giãn thoải mái khi đến và làm việc cũng như hợp tác. Không chỉ thiết kế không gian xanh mà còn thiết kế thêm ban công nhỏ cho mỗi tầng giúp nhân viên có thể thư giãn, hóng gió lúc làm việc căng thẳng.

Ngọai thất thiết kế văn phòng cao cấp với 3 mặt tiền

Văn phòng được thiết kế theo phong cách hiện đại hệ thống nhà kính thoáng đãng, hưởng trọn ánh sáng tự nhiên, đồng thời thiết kế nội thất văn phòng kết hợp tiểu cảnh cây leo không gian xanh đem lại sức sống tươi mới cho văn phòng, mang lại không gian thân thiện với môi trường, giảm bớt sự mỏi mệt. Mặt tiền với diện tích 5m, mặt bên thiết kế 17m2 tuy mặt tiền có chút nhỏ đối với thiết kế văn phòng nhưng tại 

Thiết kế kiến trúc văn phòng cao cấp hiện đại
Ngoại thất thiết kế hệ thống nhà kính kết hợp không gian xanh tươi mát

Nội thất công năng khoa học đơn giản cho thiết kế văn phòng cao cấp

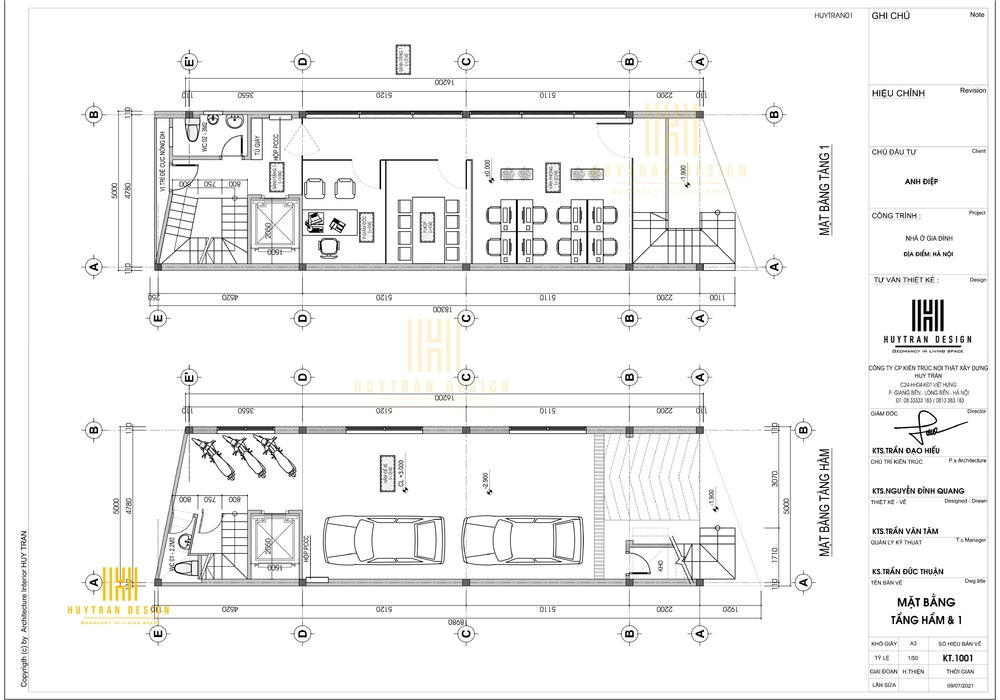
Mặt bằng nội thất tầng hầm và tầng 1

Thiết kế nội thất văn phòng phong cách tối giản hiện đại đẹp nhất 2022 có tầng hầm để xe diện tích 80m2 có thang máy và thang bộ. Mặt bằng văn phòng tầng 1 bao gồm:

+ Văn phòng diện tích 22.5m2

+ Phòng họp diện tích 9m2

+ Sảnh tầng 1 diện tích 6.5m2 có tủ giầy

+ Nhà vệ sinh diện tích 3m2

+ Thang bộ và thang máy

Diện tích tầng 1 là 70m2 nhỏ hơn diện tích tầng hầm, tầng 1 thiết kế khu văn phòng ít hơn vì tầng 1 thuận tiện tiếp khách, thiết kế thêm phòng họp nhỏ và phòng giám đốc.

 

Thiết kế mặt bằng nội thất văn phòng cao cấp
Mặt bằng tầng hầm và tầng

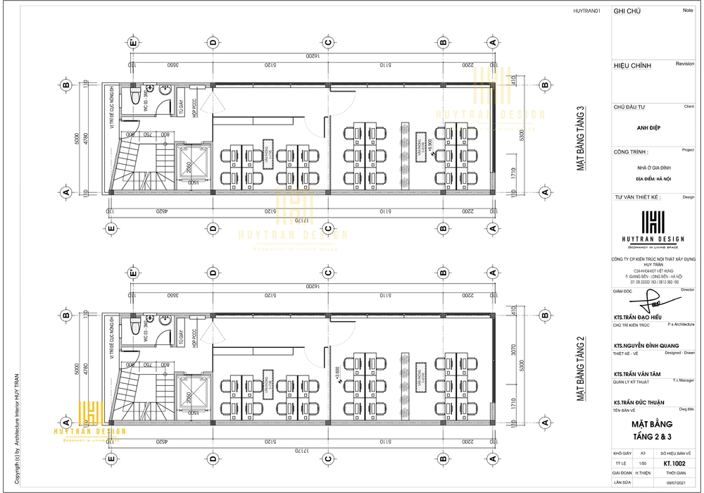
Mặt bằng tầng 2 và tầng 3 cho văn phòng làm việc

Thiết kế nội thất văn phòng chuyên nghiệp sẽ được phân chia thành các khu riêng biệt cho từng đội nhóm khác nhau và từng bộ phận phụ trách công việc khác nhau để đạt hiệu quả tối ưu nhất có thể. 

Mặt bằng tầng 2 và tầng 3 được thiết kế giống nhau với diện tích 84m2 gồm:

+ Văn phòng lớn diện tích 32.5m2

+ Văn phòng nhỏ diện tích 17m2

+ Nhà vệ sinh diện tích 3m2

Thiết kế mặt bằng nội thất văn phòng cao cấp
Mặt bằng tầng 2 và tầng 3

 Thiết kế mặt bằng tầng 4,5,6,7

Thiết kế nội thất văn phòng công ty đẹp với không gian thoáng mát, các sàn đều được thiết kế với không gian thông thoáng, diện tích tiêu chuẩn phù hợp khi thiết kế văn phòng và điều đặc biệt là thiết kế mang lại năng lượng tích cực cho nhân viên khi làm việc. Các tầng trên có thể cho thuê với hình thức khác hoặc có thể cho thêm một công ty khác cùng nhau hợp tác thuê để giảm bớt chi phí mặt bằng mặt phố lớn hoặc cũng có thể làm kho hàng.

Thiết kế mặt bằng nội thất văn phòng cao cấp
Mặt bằng tầng 4,5,6,7 cho văn phòng

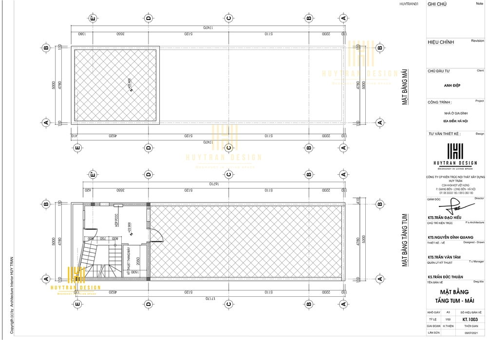
Mặt bằng tầng tum và mái

Công ty thiết kế thi công nội thất văn phòng chuyên nghiệp, giá rẻ, đẹp và theo xu hướng mới nhất - Huytrandesign  083.3333.183 (Hieu Mr) - 0813.383.183 Sao Biển 1-134, Vinhomes Ocean Park, Gia Lâm, Hà nội.

Thiết kế mặt bằng nội thất văn phòng cao cấp
Mặt bằng tầng tum và tầng mái

Xuất phát từ cùng một yêu cầu duy nhất - “sang trọng, đẳng cấp” nhưng tại Huytrandesign quý khách hàng đã, đang và sẽ luôn có được những thiết kế nội thất đa dạng phong cách, thông minh và ấn tượng. Tùy thuộc vào từng cá tính, từng nhu cầu sử dụng (nhà ở, kinh doanh, hay nhà ở kết hợp kinh doanh), chúng tôi, với tâm huyết, trách nhiệm cùng kinh nghiệm phong phú và con mắt thẩm mỹ chuyên nghiệp của mình chắc chắn sẽ mang đến cho quý khách hàng những mẫu thiết kế nội thất đẹp, thoát khỏi vòng luẩn quẩn một màu nhàm chán, khiến cho không gian nội thất của quý khách rạng rỡ, tỏa sáng từ mọi góc nhìn.

Để thiết kế riêng cho ngôi nhà của bạn hãy liên hệ với chúng tôi để được tư vấn MIỄN PHÍ 

Tel: 083.3333.183 (Hieu Mr) - 0813.383.183

Website: http://huytrandesign.vn/. 

VPGD: Sao Biển 01-134, Vinhomes Ocean Park, Gia Lâm, Hà Nội

 

Đánh giá - Bình luận
0 bình luận, đánh giá về Thiết kế văn phòng cao cấp chuyên nghiệp đẹp nhất 2022
Nhấn vào đây để đánh giá
Thông tin người gửi
Video
Thiết Kế Nội Thất Biệt Thự Vinhomes Ocean Park Độc Đáo
Thiết Kế Nội Thất Biệt Thự Vinhomes Ocean Park Độc Đáo
Thiết Kế Nội Thất Biệt Thự Vinhomes Ocean Park Độc Đáo
Thiết Kế Nội Thất Biệt Thự Vinhomes Ocean Park Độc Đáo
04/09/19
Thiết kế nội thất nhà phố độc đáo lạ mắt
Thiết kế nội thất nhà phố độc đáo lạ mắt
11/09/19
VTV Vingroup tiết lộ về bất động sản VinCity
VTV Vingroup tiết lộ về bất động sản VinCity
21/03/19
Cuốn hút với Thiết kế Biệt thự Hoa Sữa Vinhomes Riverside
Cuốn hút với Thiết kế Biệt thự Hoa Sữa Vinhomes Riverside
03/09/19
Chúng tôi có thể hỗ trợ bạn!
0.83135 sec| 2617.148 kb