Thiết kế văn phòng làm việc 5 tầng tại Hưng Yên - HuyTranDesign

Thiết kế: Công ty cổ phần kiến trúc nội thất xây dựng Huy Trần

Chủ đầu tư: Chị Hoa

Địa chỉ: Lam Sơn - Hưng Yên

Diện tích xây dựng:198.5 m2

Tổng quan
Địa điểm
Lam Sơn - Hưng Yên
Công năng

Diện tích xây dựng:198.5m2 biệt thự 5 tầng tân cổ điển tại Lam Sơn, Hưng Yên

Thiết kế văn phòng

 

Ưu điểm Thiết kế văn phòng làm việc 5 tầng tại Hưng Yên - HuyTranDesign

Thiết kế mặt bằng thiết kế văn phòng làm việc

Mặt bằng tầng 1

Mẫu thiết kế mặt bằng tầng 1 văn phòng làm việc - Huytrandesign tư vấn, thiết kế, thi công, sửa chữa nhà cửa, biệt thự, văn phòng, cơ sở kinh doanh-v1
Mặt bằng tầng 1 thiết kế văn phòng

Tư vấn, thiết kế, thi công, sửa chữa nhà cửa, biệt thự, nhà hàng, sân vườn tiểu cảnh Huytrandesign – thiết kế, thi công nội ngoại thất nhà khu vực Long Biên, Gia Lâm (Hà Nội) và các tỉnh thành miền Bắc

Mặt bằng tầng 2

Mặt bằng tầng 2 gồm 1 phòng ngủ, 1 phòng sinh hoạt chung, 1 phòng giám đốc, 1 phòng họp

Mẫu thiết kế mặt bằng tầng 2 văn phòng làm việc - Huytrandesign tư vấn, thiết kế, thi công, sửa chữa nhà cửa, biệt thự, văn phòng, cơ sở kinh doanh-v2
Mặt bằng tầng 2

Mặt bằng tầng 3

Mặt bằng tầng 3 gồm 2 phòng ngủ và phòng làm việc phân chia tại các khu riêng

Mẫu thiết kế mặt bằng tầng 3 văn phòng làm việc - Huytrandesign tư vấn, thiết kế, thi công, sửa chữa nhà cửa, biệt thự, văn phòng, cơ sở kinh doanh-v1
Mặt bằng tầng 3

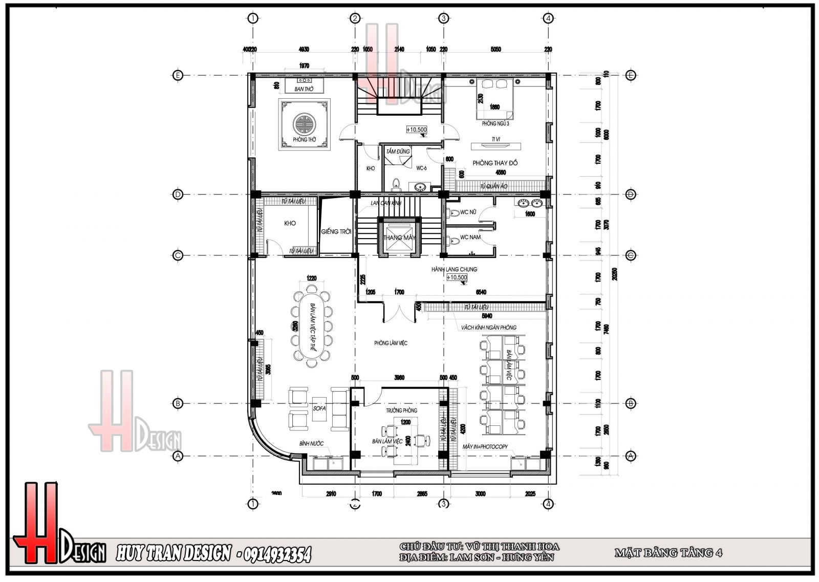
Mặt bằng tầng 4

Tầng 4 gồm phòng thờ, 1 phòng ngủ, bàn làm việc

Mẫu thiết kế mặt bằng tầng 4 văn phòng làm việc - Huytrandesign tư vấn, thiết kế, thi công, sửa chữa nhà cửa, biệt thự, văn phòng, cơ sở kinh doanh-v1
Mặt bằng tầng 4

Mặt bằng tầng 5 thiết kế văn phòng 

Mẫu thiết kế mặt bằng tầng 5 văn phòng làm việc - Huytrandesign tư vấn, thiết kế, thi công, sửa chữa nhà cửa, biệt thự, văn phòng, cơ sở kinh doanh-v1
Thiết kế mặt bằng phòng làm việc tầng 5

Mặt bằng tầng mái 

Mẫu thiết kế mặt bằng tầng mái văn phòng làm việc - Huytrandesign tư vấn, thiết kế, thi công, sửa chữa nhà cửa, biệt thự, văn phòng, cơ sở kinh doanh-v1
Thiết kế mặt bằng tầng mái

Thiết kế nội ngoại thất biệt thự tân cổ điển - thiết kế văn phòng làm việc 

Phối cảnh ngoại thất

Phối cảnh thiết kế kiến trúc tân cổ điển văn phòng làm việc 5 tầng - Huytrandesign tư vấn, thiết kế, thi công, sửa chữa nhà cửa, biệt thự, văn phòng, cơ sở kinh doanh-v1
Thiết kế văn phòng Tân cổ điển kết hợp kính cho văn phòng mang đến không gian thoáng mát, thư giãn

Quý vị có nhu cầu thiết kế, xây dựng, sửa chữa nội ngoại thất, sân vườn tiểu cảnh Hà Nội xin vui lòng truy cập Website: https://huytrandesign.vn hoặc liên hệ Hotline 0123.333.3183

Phối cảnh thiết kế kiến trúc tân cổ điển văn phòng làm việc 5 tầng - Huytrandesign tư vấn, thiết kế, thi công, sửa chữa nhà cửa, biệt thự, văn phòng, cơ sở kinh doanh-v2
Thiết kế sử dụng cửa kính khung đồng lớn trải dài 2 tầng 
Phối cảnh thiết kế kiến trúc tân cổ điển văn phòng làm việc 5 tầng - Huytrandesign tư vấn, thiết kế, thi công, sửa chữa nhà cửa, biệt thự, văn phòng, cơ sở kinh doanh-v3
Thiết kế sử dụng màu trắng, màu sắc đặc trưng của biệt thự Tân cổ điển

Thiết kế nội thất văn phòng 

Phòng giám đốc

Phối cảnh thiết kế nội thất hiện đại văn phòng làm việc 5 tầng - Huytrandesign tư vấn, thiết kế, thi công, sửa chữa nhà cửa, biệt thự, văn phòng, cơ sở kinh doanh-v1
Thiết kế nội thất văn phòng giám đốc uy nghi, thu hút vượng khí cũng như tài lộc 

Tư vấn, thiết kế, thi công, sửa chữa nhà cửa, biệt thự, nhà hàng, sân vườn tiểu cảnh Huytrandesign – thi công trang trí tiểu cảnh trong nhà, sân vườn khu vực Long Biên, Gia Lâm (Hà Nội) và các tỉnh thành miền Bắc

Phối cảnh thiết kế nội thất hiện đại văn phòng làm việc 5 tầng - Huytrandesign tư vấn, thiết kế, thi công, sửa chữa nhà cửa, biệt thự, văn phòng, cơ sở kinh doanh-v2
Phòng giám đốc tầng 2
Phối cảnh thiết kế nội thất hiện đại văn phòng làm việc 5 tầng - Huytrandesign tư vấn, thiết kế, thi công, sửa chữa nhà cửa, biệt thự, văn phòng, cơ sở kinh doanh-v3
Thiết kế phòng giám đốc gồm kệ tủ đựng gồ sơ quan trọng, bàn làm việc giám đốc, bàn ghế sofa tiếp khách
Phối cảnh thiết kế nội thất hiện đại văn phòng làm việc 5 tầng - Huytrandesign tư vấn, thiết kế, thi công, sửa chữa nhà cửa, biệt thự, văn phòng, cơ sở kinh doanh-v4
Bộ bàn ghế sofa tiếp khách phù hợp với diện tích và phong thủy
Phối cảnh thiết kế nội thất hiện đại văn phòng làm việc 5 tầng - Huytrandesign tư vấn, thiết kế, thi công, sửa chữa nhà cửa, biệt thự, văn phòng, cơ sở kinh doanh-v5
Bàn làm việc cũng được nghiên cứu đặt theo hướng phù hợp với phong thủy

Thiết kế nội thất phòng họp 

Phối cảnh thiết kế nội thất hiện đại văn phòng làm việc 5 tầng - Huytrandesign tư vấn, thiết kế, thi công, sửa chữa nhà cửa, biệt thự, văn phòng, cơ sở kinh doanh-v6
Thiết kế phòng họp

Tư vấn, thiết kế, thi công, sửa chữa nhà cửa, biệt thự, nhà hàng, sân vườn tiểu cảnh Huytrandesign – thiết kế, thi công nội ngoại thất văn phòng Long Biên, Gia Lâm (Hà Nội) và các tỉnh thành miền Bắc

Phối cảnh thiết kế nội thất hiện đại văn phòng làm việc 5 tầng - Huytrandesign tư vấn, thiết kế, thi công, sửa chữa nhà cửa, biệt thự, văn phòng, cơ sở kinh doanh-v7
Phòng họp được thiết kế quy mô lớn
Phối cảnh thiết kế nội thất hiện đại văn phòng làm việc 5 tầng - Huytrandesign tư vấn, thiết kế, thi công, sửa chữa nhà cửa, biệt thự, văn phòng, cơ sở kinh doanh-v8
Thiết kế sáng sủa, thoáng mát
Phối cảnh thiết kế nội thất hiện đại văn phòng làm việc 5 tầng - Huytrandesign tư vấn, thiết kế, thi công, sửa chữa nhà cửa, biệt thự, văn phòng, cơ sở kinh doanh-v9
Văn phòng làm việc nhân viên được phân chia theo từng khu
Phối cảnh thiết kế nội thất hiện đại văn phòng làm việc 5 tầng - Huytrandesign tư vấn, thiết kế, thi công, sửa chữa nhà cửa, biệt thự, văn phòng, cơ sở kinh doanh-v10
Mỗi khu làm việc được ngăn cách bởi vách kính
Phối cảnh thiết kế nội thất hiện đại văn phòng làm việc 5 tầng - Huytrandesign tư vấn, thiết kế, thi công, sửa chữa nhà cửa, biệt thự, văn phòng, cơ sở kinh doanh-v11
Thiết kế văn phòng làm việc tầng 2
Phối cảnh thiết kế nội thất hiện đại văn phòng làm việc 5 tầng - Huytrandesign tư vấn, thiết kế, thi công, sửa chữa nhà cửa, biệt thự, văn phòng, cơ sở kinh doanh-v12
Văn phòng làm việc trưởng phòng

Quý vị có nhu cầu thiết kế, xây dựng, sửa chữa nội ngoại thất, sân vườn tiểu cảnh Hà Nội xin vui lòng truy cập Website: https://huytrandesign.vn hoặc liên hệ Hotline 083.333.3183

Phối cảnh thiết kế nội thất hiện đại văn phòng làm việc 5 tầng - Huytrandesign tư vấn, thiết kế, thi công, sửa chữa nhà cửa, biệt thự, văn phòng, cơ sở kinh doanh-v13
Khu làm việc trưởng phòng gần với khu làm việc nhân viên 
Phối cảnh thiết kế nội thất hiện đại văn phòng làm việc 5 tầng - Huytrandesign tư vấn, thiết kế, thi công, sửa chữa nhà cửa, biệt thự, văn phòng, cơ sở kinh doanh-v14
Hành lang thông thoáng

Để thiết kế riêng cho ngôi nhà của bạn hãy liên hệ với chúng tôi để được tư vấn MIỄN PHÍ 

Tel: 083.3333.183 (Hieu Mr) - 0813.383.183

Website: http://huytrandesign.vn/. 

VPGD: Sao Biển 01-134, Vinhomes Ocean Park, Gia Lâm, Hà Nội

Đánh giá - Bình luận
0 bình luận, đánh giá về Thiết kế văn phòng làm việc 5 tầng tại Hưng Yên - HuyTranDesign
Nhấn vào đây để đánh giá
Thông tin người gửi
Video
Thiết Kế Nội Thất Biệt Thự Vinhomes Ocean Park Độc Đáo
Thiết Kế Nội Thất Biệt Thự Vinhomes Ocean Park Độc Đáo
Thiết Kế Nội Thất Biệt Thự Vinhomes Ocean Park Độc Đáo
Thiết Kế Nội Thất Biệt Thự Vinhomes Ocean Park Độc Đáo
04/09/19
Thiết kế nội thất nhà phố độc đáo lạ mắt
Thiết kế nội thất nhà phố độc đáo lạ mắt
11/09/19
VTV Vingroup tiết lộ về bất động sản VinCity
VTV Vingroup tiết lộ về bất động sản VinCity
21/03/19
Cuốn hút với Thiết kế Biệt thự Hoa Sữa Vinhomes Riverside
Cuốn hút với Thiết kế Biệt thự Hoa Sữa Vinhomes Riverside
03/09/19
Chúng tôi có thể hỗ trợ bạn!
0.13395 sec| 2613.422 kb