Thiết kế mẫu biệt thự nhà vườn có hồ bơi hiện đại đẹp nhất

Thiết kế biệt thự nhà vườn có hồ bơi trên tum đẹp hiện đại chỉ với mặt tiền 6m thiết kế 2 phòng ngủ. Mẫu nhà phố 3 tầng mái bằng có bể bơi 2 phòng ngủ, ngoài ra nội thất nhà phố 2 tầng 1 tum sử dụng toàn bộ nội thất cao cấp phong cách hiện đại theo xu hướng mới nhât.

Tổng quan
Chủ đầu tư
Anh Mạnh
Địa điểm
Nam Trực, Nam Định
Số tầng
3 tầng
Diện tích đất
220m2
Đơn vị thực hiện
Huytrandesign
Năm thi công
2021
Ưu điểm Thiết kế mẫu biệt thự nhà vườn có hồ bơi hiện đại đẹp nhất

Ngoại thất biệt thự nhà vườn có hồ bơi hiện đại tươi mới

Với mong muốn đem lại không gian sinh hoạt tràn đầy sức sống, sự tươi trẻ và đáp ứng cả 2 yếu tố công năng lẫn thẩm mỹ cho biệt thự nhà vườn có hồ bơi nên đội ngũ KTS HuyTran Design đã đưa ra thiết kế mãn nhãn với nhà hiện đại 3 tầng có sân vườn, hồ bơi, 2 phòng ngủ tối ưu nhất cho gia đình anh Mạnh. Mời quý vị tham khảo mẫu biệt thự nhà vườn có hồ bơi phong cách hiện đại và vô cùng độc đáo.

Ngoại thất biệt thự hiện đại

Thiết kế ngoại thất biệt thự
Không gian thoáng mát có thiết kế khung sắt an toàn về an ninh và khi sinh hoạt

 Mẫu thiết kế biệt thự hiện đại có bể bơi 2 tầng 1 tum với thiết kế không gian xanh thông thoáng thân thiện với môi trường. Ngoại thất tầng 1 thiết kế đơn giản với diện tường lớn 2 cửa, 1 cửa ngách và 1 cửa lớn thuận tiện đi vào gara ô tô.

Thiết kế ngoại thất biệt thự
Bậc thang thiết kế song song và so le nhau độc đáo

Thiết kế ngoại thất nhà phố tầng 2 với hàng rào vừa để an toàn chắn ban công vừa đảm bảo an toàn an ninh cho gia chủ. Với thiết kế vô cùng đơn giản, hiện đại kết hợp nội thất thông minh từ xu hướng mới nhất mang đến cuộc sống nghỉ dưỡng đáng mơ ước trong lòng thủ đô Hà Nội

Thiết kế ngoại thất biệt thự hiện đại thông thoáng có không gian xanh diện tích nhỏ
Thiết kế ngoại thất có sân vườn tại Long Biên, Hà Nội

Thiết kế bể bơi tầng tum ngoài trời có mái kính che thông thoáng giúp tận hưởng không khí trong lành và ngắm cảnh thư giãn một cách tối đa nhất. Một sự thiết kế hoàn hảo hòa mình vào thiên nhiên, đây dường như là ngôi biệt thự mini nghỉ dưỡng vừa có thể trở về sau ngày dài làm việc và học tập mệt mỏi ngoài ra cuối tuần cả nhà có thể cùng nhau bơi, thư giãn ngay tại chính căn nhà của mình.

Thiết kế ngoại thất biệt thự
Ngoại thất biệt thự có bể bơi ngoài trời

Thiết kế bên trong nhà phố 2,5 tầng hiện đại đẹp 

Tầng triệt nhà phố thiết kế gara ô tô nhỏ, diện tường 2 bên sử dụng đá ốp màu xám đẹp, gác lửng được ốp đá họa tiết mảnh đá thô nhiều màu sang trọng nổi bật trên nền nhà hiện đại.

Thiết kế mặt bằng tầng 1 biệt thự
Thiết kế tầng 1 có gara ô tô và chỗ để xe

Trần nhà được ốp toàn bộ bằng vách lam gỗ sáng màu độc đáo mà vô cùng sang trong. Trong không gian sống điều quan trọng nhất là sự thoải mái, thư giãn đặc biệt khi thiết kế không gian xanh. Thiết kế nhà đẹp mang phong cách kiến trúc nhiệt đới có thể giúp bạn giải tỏa stress trong cuộc sống hằng ngày, tạo cho bạn có cảm giác mát mẻ, rất trong lành và thư giãn tối đa. Không khí căng thẳng ở văn phòng sẽ không bao giờ theo bạn về nhà. Thiết kế nội thất theo phong cách miền nhiệt đới sẽ mang đến cho bạn một trải nghiệm cuộc sống hoàn toàn mới và thú vị. Dưới đây là các kiểu thiết kế nội thất đẹp của phòng khách theo phong cách nhiệt đới cho bạn tham khảo. 

Thiết kế nội thất tầng 1 biệt thự
Trần được ốp toàn bộ trần gỗ nâu sáng màu

Thiết kế bể bơi ngoài trời có sân phơi mái kính tiện lợi cho gia đình giải trí vào cuối tuần hoặc có thể mời bạn bè đến nhà chơi và cùng nhau thư giãn. 

Thiết kế nội thất biệt thự
Nhà tắm nóng ngoài trời có mái kính khung nhôm hiện đại 

Công năng và mặt bằng sử dụng khoa học cho biệt thự nhà vườn có hồ bơi 3 tầng hiện đại

Thiết kế mặt bằng tầng 1

Thiết kế taafng 1 với diện tích 60m2 bao gồm:

+ Gara ô tô diện tích 30m2

+ Phòng khách diện tích 12.5m2

+ Phòng bếp, phòng ăn diện tích 12.5m2

+ Nhà vệ sinh diện tích 2.2m2

Thiết kế tầng 1 đơn giản có gara ô tô rộng rãi để được 2 chiếc ô tô và nhiều xe máy, ngoài sân có thiết kế thêm cây dừa và một số tiểu cảnh cây trang trí đẹp, độc đáo mang đến không gian xanh. Ngoài ra thiết kế thêm phòng khách và phòng bếp, phòng ăn đơn giản không gian mở, phù hợp với nhu cầu sử dụng của gia chủ.

Thiết kế mặt bằng tầng tum biệt thự
Tầng 1 biệt thự nhà vườn có hồ bơi có gara để ô tô thuận tiện cho sinh hoạt của gia chủ

Mặt bằng tầng 2

Mặt bằng tầng 2 nhà phố 3 tầng hiện đại gồm:

+ Khoảng thông tầng

+ Phòng ngủ 1 khép kín diện tích 14.5m2

+ Phòng ngủ 2 diện tích 12.5m2

Không gian tầng 2 có khoảng thông tầng thông thoáng, sàn tầng 2 với 55m2 với 2 phòng ngủ khép kín tiên lợi vẫn đảm bảo được diện tích sử dụng mà không bị nhỏ quá.

Thiết kế mặt bằng tầng 2 biệt thự
Thiết kế mặt bawngtaafng 2 với 2 phòng ngủ kết hợp khoảng thông tầng thoáng mát, rộng rãi

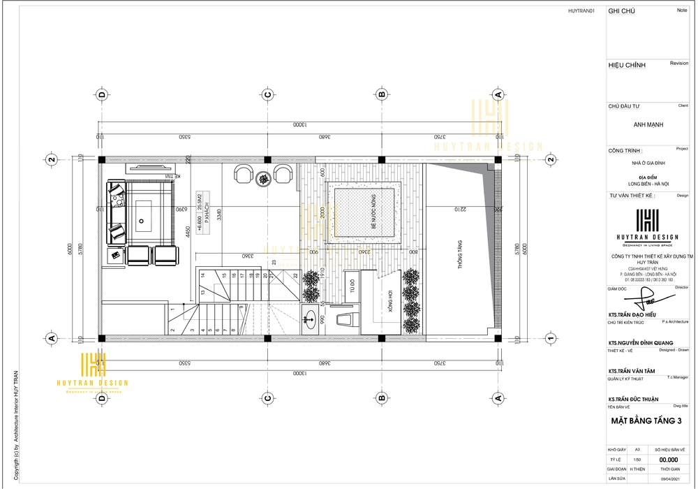
Thiết kế mặt bằng tầng 3

Thiết kế biệt thự sân vườn có bể bơi đơn giản tại tầng 3 gồm:

+ Khoảng thông tầng

+ Bể bơi nước nóng và phòng xông hơi diện tích 22,6m2

+ Phòng khách diện tích 25.5m2

Không gian tầng 3 thiết kế phòng khách chính có thể mời bạn bè cuối tuần đến chơi, cùng bơi và tắm nắng xả stress, cùng nhau nói chuyện tâm sự trong không gian lãng mạn và thoáng mát.

Thiết kế mặt bằng tầng 3 biệt thự
Thiết kế mặt bằng tầng 3 có bể bơi ngoài trời mái kính

Thiết kế mặt bằng tầng tum

Mặt bằng tầng tum thiết kế 37,4m2 giồm:

+ Phòng thờ có diện tích 10.5m2

+ Sân phơi diện tích 9m2

+ Khoảng thông tầng

+ Sảnh thang

Không gian tầng tum nhỏ gọn có sân phơi đồ giúp công việc nhà có 1 phần nào thuận tiện hơn cho người nội trợ hia đình.

Thiết kế mặt bằng tầng tum biệt thự
Mặt bằng tầng tum

Để thiết kế riêng cho ngôi nhà của bạn hãy liên hệ với chúng tôi để được tư vấn MIỄN PHÍ 

Tel: 083.3333.183 (Hieu Mr) - 0813.383.183

Website: http://huytrandesign.vn/. 

VPGD: Sao Biển 01-134, Vinhomes Ocean Park, Gia Lâm, Hà Nội

 

Đánh giá - Bình luận
0 bình luận, đánh giá về Thiết kế mẫu biệt thự nhà vườn có hồ bơi hiện đại đẹp nhất
Nhấn vào đây để đánh giá
Thông tin người gửi
Video
Thiết Kế Nội Thất Biệt Thự Vinhomes Ocean Park Độc Đáo
Thiết Kế Nội Thất Biệt Thự Vinhomes Ocean Park Độc Đáo
Thiết Kế Nội Thất Biệt Thự Vinhomes Ocean Park Độc Đáo
Thiết Kế Nội Thất Biệt Thự Vinhomes Ocean Park Độc Đáo
04/09/19
Thiết kế nội thất nhà phố độc đáo lạ mắt
Thiết kế nội thất nhà phố độc đáo lạ mắt
11/09/19
VTV Vingroup tiết lộ về bất động sản VinCity
VTV Vingroup tiết lộ về bất động sản VinCity
21/03/19
Cuốn hút với Thiết kế Biệt thự Hoa Sữa Vinhomes Riverside
Cuốn hút với Thiết kế Biệt thự Hoa Sữa Vinhomes Riverside
03/09/19
Chúng tôi có thể hỗ trợ bạn!
12.93219 sec| 2633.414 kb