Mẫu nhà 3 tầng hiện đại đẹp, rẻ dưới 800 triệu

Thiết kế nhà 3 tầng hiện đại đơn giản, khỏe khoắn sử dụng cửa kính thoáng mát, lấy ánh sáng tự nhiên trực tiếp tràn ngập căn phòng. Thiết kế nội thất hiện đại, thông minh giúp tiết kiệm chi phí, không gian, nội thất cao cấp, phong phú. Thiết kế nhà ở kết hợp không gian kinh doanh mang đến sự khoa học tiện nghi cũng như đem lại lợi nhuận về cho gia chủ

Tổng quan
Chủ đầu tư
Chị Oanh, anh Toàn
Địa điểm
Ninh Hiệp, Bắc Ninh
Số tầng
3 tầng 1 tum
Diện tích đất
150m2
Đơn vị thực hiện
Huytrandesign
Năm thi công
2022
Ưu điểm Mẫu nhà 3 tầng hiện đại đẹp, rẻ dưới 800 triệu

Thiết kế ngoại thất nhà 3 tầng hiện đại kết hợp kinh doanh

Thiết kế đơn giản khỏe khoắn

Thiết kế nhà 3 tầng hiện đại với ngoại thất đơn giản, khỏe khoắn. Sử dụng hình khối đơn giản có sự cách điệu mang đến một thiết kế ngoại thất trẻ trung tươi mới. Tầng 1 thiết kế cửa cuốn kết hợp ốp đá Granite đen vân vàng cao cấp.

Thiết kế mặt bằng ngoại thất nhà 3 tầng
Thiết kế ngoại thất nhà phố 3 tầng hiện đại mặt tiền 4m

Vật liệu xây dựng ngoại thất nhà ống 3 tầng 1 tum hiện đại

Sử dụng vật liệu đơn giản như gạch kẻ nâu trang trí, cửa kính khung nhôm lớn, hệ mái che kính khung nhôm, tiểu cảnh cây xanh,... đơn giản, tiết kiệm chi phí cho chủ đầu tư. Thiết kế nhà 3 tầng hiện đại với mặt tiền 4m, KTS Huytrandesign đã thiết kế tầng 2 và tầng 3 có 1 ban công nhỏ kết hợp tiểu cảnh cây xanh giúp không gian trở nên sống động, thân thiện với môi trường.

Thiết kế mặt bằng ngoại thất nhà 3 tầng
Mặt bằng ngoại thất tầng 1 sử dụng vật liệu xây dựng đơn giản tiết kiệm chi phí

Thiết kế mặt bằng công năng khoa học cho nhà 3 tầng hiện đại

Mặt bằng nội thất tầng 1

Thiết kế mặt bằng tầng 1 bao gồm:

- Không gian kinh doanh diện tích 34m2

- Không gian bếp ăn 12m2

Thiết kế tầng 1 có bếp và khoảng không gian kinh doanh. Dự án nhà 3 tầng hiện đại của chúng tôi tại mặt phố chợ Ninh Hiệp vì vậy tầng 1 chúng tôi thiết kế không gian kinh doanh rộng 34m2 sâu bên trong là không gian phòng bếp và không gian ăn uống. Ngoài ra, để đảm bảo nhu cầu sinh hoạt thiết yếu tầng 1 KTS đã thiết kế nhà vệ sinh dưới gầm thang giúp nhà phố 3 tầng 1 tum không những không tốn diện tích mà vẫn đảm bảo công năng hợp lý.

Thiết kế mặt bằng công năng nội thất nhà 3 tầng
Mặt bằng tầng 1 kết hợp kinh doanh

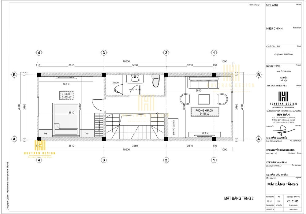
Thiết kế mặt bằng tầng 2

Mặt bằng tầng 2 bao gồm:

- Phòng khách 12.5m2

- Phòng ngủ 1 diện tích 13.5m2

- Nhà vệ sinh chung 4.1m2

Tầng 2 thiết kế 1 phòng khách kết hợp không gian thờ và 1 phòng ngủ nhỏ. Phòng khách được đặt bên ngoài cạnh ban công rộng thông thoáng, khi thiết kế phòng khách và không gian phòng thờ thông thoáng sẽ giúp vượng khí lưu thông, giúp gia đình có sức khỏe dồi dào, tài vận tốt. Phòng ngủ q tầng 2 gồm 1 chiếc giường có 2 tab nhỏ, 1 tủ quần áo và tivi.

Thiết kế mặt bằng công năng nội thất nhà 3 tầng
Mặt bằng nội thất tầng 2 nhà phố 3 tầng 1 tum hiện đại

Mặt bằng tầng 3

Tầng 3 khi thiết kế mặt bằng nội thất bao gồm:

- Phòng ngủ 2 diện tích 13.5m2

- Phòng ngủ 3 diện tích 12m2

- Nhà vệ sinh chung 4.1m2

Phòng ngủ 2 thiết kế giống phòng ngủ 1 với đồ nội thất giường ngủ, tủ quần áo, tab đầu giường và kệ tivi. Nhưng phòng ngủ 3 thiết kế hơi khách một chút với 1 giường ngủ, 1 tan đầu giường, 1 bàn trang điểm, 1 tủ quần áo, kệ tivi và khoảng lô gia có trồng 1 chút tiểu cảnh cây xanh đồng thời có thể hóng gió, hít thở không khí trong lành vào mỗi sớm mai. Hai phòng ngủ được thiết kế sử dụng chung nhà vệ sinh giúp tiết kiệm không gian mà vẫn đảm bảo công năng sử dụng.

Thiết kế mặt bằng công năng nội thất nhà 3 tầng
Mặt bằng nội thất tầng 3

Thiết kế mặt bằng tầng tum

Mặt bằng tầng tum bao gồm:

- Phòng ngủ 4 diện tích 13.5m2

- Nhà vệ sinh diện tích 4.1m2

-  Khoảng sân có mái kính

 Thiết kế 1 phòng ngủ tầng tum giống phòng ngủ 1 tầng 2 và phòng ngủ 2 tầng 3. Thiết kế sân phơi mái kính giúp gia đình có thể phơi đồ, thuận tiện cho những người nội trợ. Ngoài ra, sân còn có thể tổ chức những bữa tiệc nhỏ ngoài trời hoặc có thể tổ chức sự kiện nhỏ giúp gia đình thêm gắn kết

Thiết kế mặt bằng công năng nội thất nhà 3 tầng
Mặt bằng tầng tum

Bạn đang mong muốn thiết kế nhà phố, nhà cấp 4, biệt thự sân vườn, thi công và cải tạo biệt thự tân cổ điển Vinhomes, thiết kế biệt thự tân cổ điển cho thuê. Hãy liên hệ với chúng tôi để được tư vấn MIỄN PHÍ 

Tel: 083.3333.183 (Hieu Mr) - 0813.383.183

Website: http://huytrandesign.vn/. 

VPGD: Sao Biển 01-134, Vinhomes Ocean Park, Gia Lâm, Hà Nội

 

Đánh giá - Bình luận
0 bình luận, đánh giá về Mẫu nhà 3 tầng hiện đại đẹp, rẻ dưới 800 triệu
Nhấn vào đây để đánh giá
Thông tin người gửi
Video
Thiết Kế Nội Thất Biệt Thự Vinhomes Ocean Park Độc Đáo
Thiết Kế Nội Thất Biệt Thự Vinhomes Ocean Park Độc Đáo
Thiết Kế Nội Thất Biệt Thự Vinhomes Ocean Park Độc Đáo
Thiết Kế Nội Thất Biệt Thự Vinhomes Ocean Park Độc Đáo
04/09/19
Thiết kế nội thất nhà phố độc đáo lạ mắt
Thiết kế nội thất nhà phố độc đáo lạ mắt
11/09/19
VTV Vingroup tiết lộ về bất động sản VinCity
VTV Vingroup tiết lộ về bất động sản VinCity
21/03/19
Cuốn hút với Thiết kế Biệt thự Hoa Sữa Vinhomes Riverside
Cuốn hút với Thiết kế Biệt thự Hoa Sữa Vinhomes Riverside
03/09/19
Chúng tôi có thể hỗ trợ bạn!
0.57892 sec| 2613.313 kb