Thiết kế mẫu nhà phố 3 tầng hiện đại đơn giản đẹp nhất 2023

Thiết kế nhà phố 3 tầng đẹp hiện đại với mặt tiền 3m thiết kế 4 phòng ngủ. Mẫu nhà phố 3 tầng mái bằng có sân phơi rộng rãi để phơi đồ, ngoài ra nội thất nhà phố 1 trệt 2 lầu sử dụng toàn bộ nội thất cao cấp phong cách hiện đại theo xu hướng mới nhât năm 2023.

Tổng quan
Chủ đầu tư
Anh Đại
Địa điểm
Hà Nội
Số tầng
3 tầng 1 tum
Diện tích đất
110m2
Đơn vị thực hiện
Huytrandesign
Năm thi công
2021
Ưu điểm Thiết kế mẫu nhà phố 3 tầng hiện đại đơn giản đẹp nhất 2023

Kiến trúc nhà phố 3 tầng 1 tum hiện đại được nhiều khách hàng ưa chuộng

Ngoại thất nhà phố 3 tầng đơn giản hiện đại

Thiết kế mẫu nhà phố 3 tầng hiện đại đẹp đơn giản với mặt tiền 3m sâu 10m nhưng vẫn đảm bảo được không gian sinh hoạt chung và riêng của mỗi thành viên trong gia đình. Thiết kế với những nguyên liệu đơn giản tiết kiệm chi phí được nhiều chủ đầu tư ưa chuộng.

 ngoại thất Nhà phố
Thiết kế kiến trúc hiện đại với vật liệu trang trí ngoại thất đơn giản

Vật liệu xây dựng ngoại thất nhà ống 3 tầng 1 tum hiện đại

Sử dụng vật liệu đơn giản như gạch kẻ nâu trang trí, cửa kính khung nhôm lớn, hệ mái che kính khung nhôm, tiểu cảnh cây xanh,... đơn giản, tiết kiệm chi phí cho chủ đầu tư. Thiết kế nhà 3 tầng hiện đại với mặt tiền 3m, KTS Huytrandesign đã thiết kế tầng 2 và tầng 3 có cửa sổ kính cường lực khung nhôm kết hợp tiểu cảnh cây xanh giúp không gian trở nên sống động, phù hợp với xu hướng và thân thiện với môi trường.

 ngoại thất Nhà phố hiện đại
Kết hợp thiết kế chậu cây cạnh cửa sổ điểm thêm màu sắc cho không gian ngoại thất

Mẫu thiết kế mặt tiền nhà phố có tính năng phù hợp cao, thích hợp với nhiều kích thước diện tích như: 3x10m, 3x15m, 4x10m, 4x15m… Ngoài ra, không gian sống còn có thể bài trí thêm các tiện ích khác như tầng hầm, giếng trời phục vụ tối đa nhu cầu cuộc sống sinh hoạt hằng ngày.

Luôn luôn đặt những lợi ích của khách hàng lên hàng đầu, trong mẫu thiết kế nhà phố hiện đại này, các kiến trúc sư của Huytrandesign đã đơn giản hóa mọi chi tiết trang trí; hình khối được bài trí tự do, phóng khoáng nhưng vẫn giữ được sự nhịp nhàng. Tất cả làm nên một tổ hợp kiến trúc đầy đủ công năng, thẩm mĩ và ưu điểm nổi trội của lối kiến trúc nhà ở hiện đại. 

 ngoại thất Nhà phố hiện đại
Nhà phố 3 tầng hiện đại thiết kế có khoảng sân nhỏ để xe

Mặt bằng và công năng nhà phố 3 tầng mặt tiền 3.3m

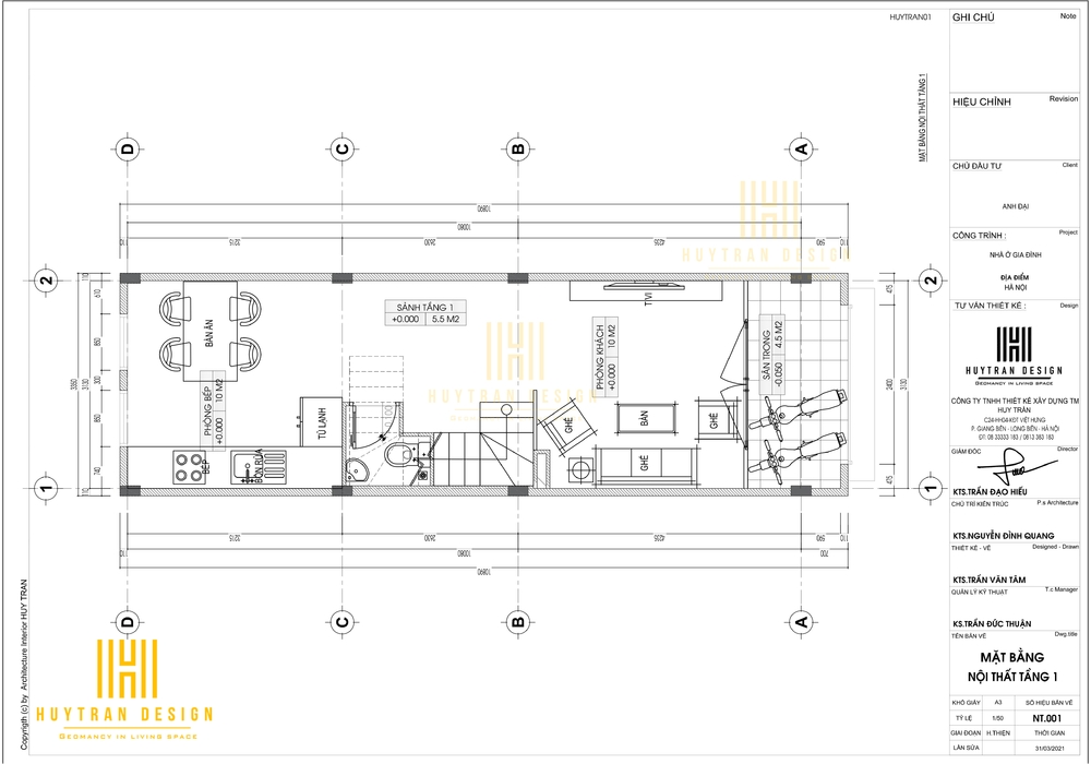
Mặt bằng tầng 1 nhà phố 3 tầng

Mặt bằng tầng 1 bao gồm:

- Không gian sân trước để xe diện tích 4.5m2

- Phòng khách diện tích 10m2

- Sảnh tầng 1 diện tích 6.6m2

- Bếp và bàn ăn diện tích 10m2

Không gian tầng 1 nhà ống 3 tầng hiện đại chủ yếu là không gian sinh hoạt chung. Với mặt tiền 3m diện tích tầng 1 khoảng 33m2 được sắp xếp hợp lý có sân nhỏ khoảng 4.5m2 để xe máy thuận tiện và càng làm phòng khách thông thoáng hơn. Phòng khách được thiết diện tích 10m2 gần cửa ra vào, tuy diện tích chỉ 10m2 nhưng với không gian sáng sủa, thông thoáng sẽ giúp phòng khách rộng hơn và phù hợp nhất đối với nhà phố diện tich nhỏ. Dưới sảnh thang thiết kế thêm nhà vệ sinh chung vừa tiết kiệm diện tích mà đảm bảo diện tích tiêu chuẩn với không gian nhà. Không gian bếp và phòng ăn được thiết kế trong cùng diện tích 10m2 với hệ tủ bếp hình chữ I và bộ bàn ghế ăn gồm 4 ghế phù hợp với gia đình ít người.

Mặt bằng nội thất nhà phố
Mặt bằng nội thất tầng 1

 Mặt bằng công năng tầng 2

Mặt bằng tầng 2 bao gồm:

- Phòng ngủ Master diện tích 12m2

- Sảnh tầng 2 diện tích 2.6m2

- Phòng ngủ 1 diện tích 10m2

Tầng 2 nhà 3 tầng hiện đại đẹp, đơn giản được thiết kế 2 phòng ngủ. Phòng ngủ Master diện tích thiết kế đầy đủ gồm giường ngủ, bàn phấn, tủ quần áo, nhà vệ sinh riêng và đặc biệt thiết kế có cửa sổ lớn thông thoáng. Phòng ngủ 1 thiết kế với diện tích 10m2 gồm giường ngủ đơn, tủ quần áo, bàn học nhỏ cho bé trong không gian riêng giúp bé có thể tự giác học tập và không bị làm phiền bởi tiếng ồn.

Mặt bằng nội thất nhà phố
Mặt bằng nội thất tầng 2 với 2 phòng ngủ

Thiết kế nội thất tầng 3

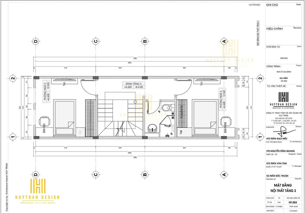
Mặt bằng nội thất tầng 3 gồm 2 phòng ngủ không khép kín lần lượt là:

- Phòng ngủ 2 diện tích 10m2

- Phòng ngủ 3 diện tích 12m2

- Nhà vệ sinh chung diện tích 3m2

Phòng ngủ 2 được thiết kế giống phòng ngủ 1 là diện tích 10m2, gồm giường, tủ quần áo, bàn học. Phòng ngủ 3 thiết kế diện tích 12m2 thiết kế giường ngủ đơn, 1 bàn phấn, 1 hệ tủ quần áo. Thiết kế nhà vệ sinh chung gồm cabin tắm đứng, lavabo và 1 bệ vệ sinh.

Mặt bằng nội thất nhà phố
Mặt bằng nội thất tầng 3 với 2 phòng ngủ

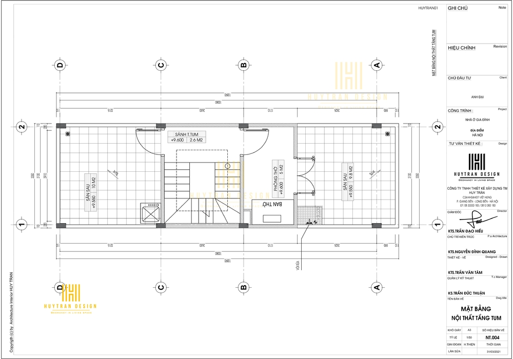
Mặt bằng tầng tum

Mặt bằng tầng tum gồm 2 sân có thể phơi quần áo và phơi đồ rộng rãi, phòng thờ diện tích 5m2 và sảnh tum diện tích 2.6m2. Mỗi không gian nhà đều được thiết kế đơn giản, khoa học phù hợp với xu hướng hiện đại và được nhiều CĐT lựa chọn.

Mặt bằng nội thất nhà phố
Mặt bằng nội thất tum với phòng thờ và 2 khoảng sân rộng

 Bạn đang mong muốn xây nhà phố, biệt thự sân vườn, thi công và cải tạo biệt thự tân cổ điển Vinhomes, thiết kế nội thất shophouse, thiết kế biệt thự tân cổ điển cho thuê. Hãy liên hệ với chúng tôi để được tư vấn MIỄN PHÍ 24/7: thiết kế, thi công, sửa chữa nhà cửa, biệt thự, biệt thự Vinhomes nhà hàng, sân vườn tiểu cảnh Huytrandesign – thiết kế biệt thự tân cổ điển khu vực Long Biên, Gia Lâm (Hà Nội) và các tỉnh thành miền Bắc.

Để thiết kế riêng cho ngôi nhà của bạn hãy liên hệ với chúng tôi để được tư vấn MIỄN PHÍ 

Tel: 083.3333.183 (Hieu Mr) - 0813.383.183

Website: http://huytrandesign.vn/. 

VPGD: Sao Biển 01-134, Vinhomes Ocean Park, Gia Lâm, Hà Nội

 

Đánh giá - Bình luận
0 bình luận, đánh giá về Thiết kế mẫu nhà phố 3 tầng hiện đại đơn giản đẹp nhất 2023
Nhấn vào đây để đánh giá
Thông tin người gửi
Video
Thiết Kế Nội Thất Biệt Thự Vinhomes Ocean Park Độc Đáo
Thiết Kế Nội Thất Biệt Thự Vinhomes Ocean Park Độc Đáo
Thiết Kế Nội Thất Biệt Thự Vinhomes Ocean Park Độc Đáo
Thiết Kế Nội Thất Biệt Thự Vinhomes Ocean Park Độc Đáo
04/09/19
Thiết kế nội thất nhà phố độc đáo lạ mắt
Thiết kế nội thất nhà phố độc đáo lạ mắt
11/09/19
VTV Vingroup tiết lộ về bất động sản VinCity
VTV Vingroup tiết lộ về bất động sản VinCity
21/03/19
Cuốn hút với Thiết kế Biệt thự Hoa Sữa Vinhomes Riverside
Cuốn hút với Thiết kế Biệt thự Hoa Sữa Vinhomes Riverside
03/09/19
Chúng tôi có thể hỗ trợ bạn!
0.19424 sec| 2617.406 kb