Mẫu nhà đẹp 3 tầng độc lạ mặt tiền 7m tại Cổ Nhuế Hà Nội.y

Tổng quan
Địa điểm
Cổ Nhuế, Hà Nội
Ưu điểm Mẫu nhà đẹp 3 tầng độc lạ mặt tiền 7m tại Cổ Nhuế Hà Nội.y

Ngoại thất nhà đẹp 3 tầng hiện đại độc đáo

Mẫu nhà đẹp 3 tầng mang đến những không gian sống mới mẻ, hiện đại, thoáng mát kết hợp thiết kế nhà kính mang lại ánh sáng tự nhiên và thân thiện với môi trường

Thiết kế nhà phố hiện đại đẹp 3 tầng diện tích 6x9m2, 7x10m2, 8x11m2... Nhà đẹp 3 tầng sử dụng màu trắng kết hợp gạch ốp trang trí kẻ đen, gạch ốp đen và tầng 1 ốp thêm đá Granite tự nhiên vân khói đen kết hợp vàng. 

Thiết kế nhà đẹp 3 tầng hiện đại
Ngoại thất nhà phố 3 tầng hiện đại

 Trang trí mặt tiền nhà ống 3 tầng đẹp hiện đại với mặt tiền 7m thiết kế với 3 kiểu dáng khác nhau cùng trên một mặt tiền. Thiết kế độc lạ phóng khoáng mang đeo những xu hướng mới hiện đại nhất 2022 cho nhà phố hiện đại 3 tầng. Thiết kế lan can ban công kính cường lực khung inox hiện đại vừa bền, đơn giản, thi công nhanh chóng mà còn mang tính thẩm mỹ được nhiều người ưa chuộng.

Thiết kế mặt bằng và công năng khoa học cho nhà đẹp 3 tầng hiện đại

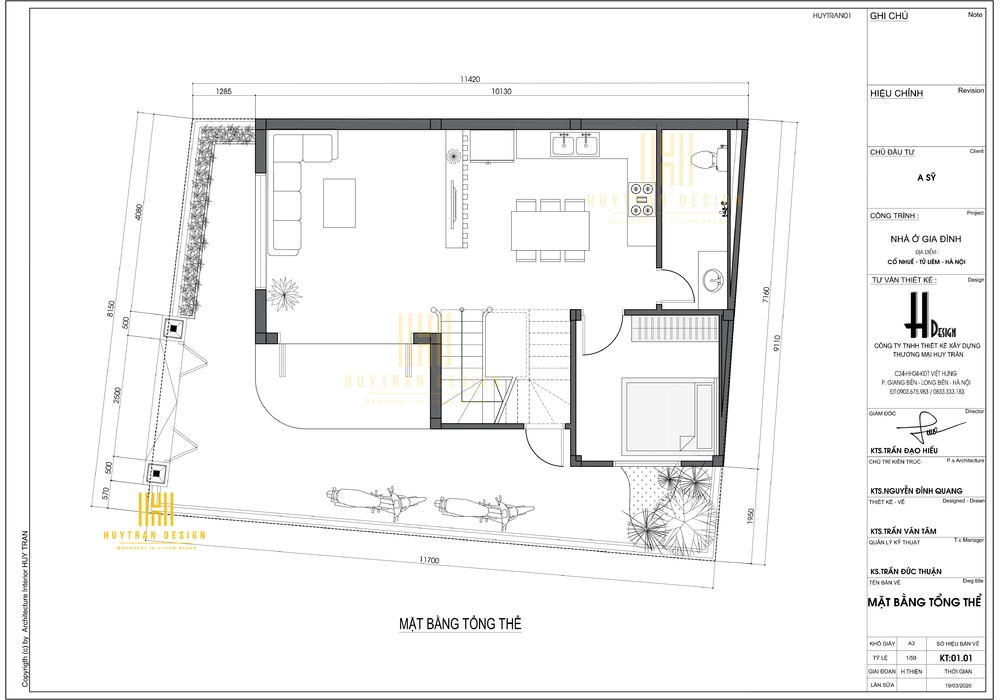
Mặt bằng tổng thể

Thiết kế nhà phố trên mảnh đất méo - xéo không vuông vẫn tạo nên một siêu phẩm nhà phố 3 tầng hiện đại tại Cổ Nhuế, Hà Nội. Khi thiết kế mặt bằng công năng trước hết là mặt bằng tổng thể KTS Huytrandesign đã định hình ra được ngoại thất phù hợp với nhu cầu của gia chủ và đặc biệt nội thất KTS cũng định hình ra được cách sắp xếp sao cho khoa học nhất.

Thiết kế mặt bằng tổng thể nhà phố đẹp 3 tầng
Mặt bằng tổng thể nhà phố 3 tầng

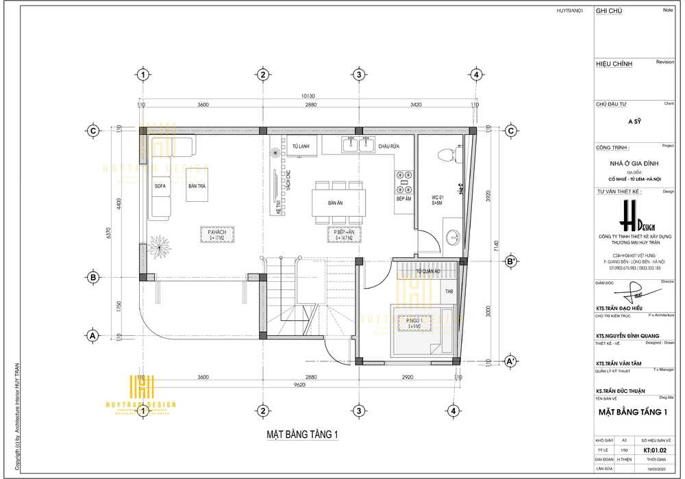
Mặt bằng tầng 1 

Mặt bằng tầng 1 nhà phố 3 tầng được thiết kế bao gồm

+ Phòng khách diện tích 17m2

+ Phòng bếp và phòng ăn diện tích 14.7m2

+ Phòng ngủ 1 diện tích 9m2

+ WC tầng 1 diện tích 5m2

Thiết kế mặt bằng tầng trệt nhà ống hiện đại phù hợp với diện tích và nhu cầu của CĐT. Để thiết kế thêm phần hoàn hảo và phù hợp gia đình có người lớn tuổi thì KTS Huytrandesign thiết kế thêm phòng ngủ tại tầng 1 với diện tích 9m2 thuận tiện đi lại và sinh hoạt hơn.

Thiết kế mặt bằng tầng 1 nhà phố 3 tầng
Mặt bằng tầng 1 nhà phố

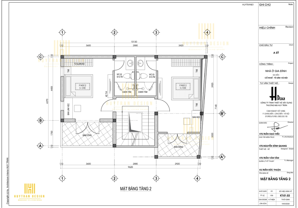
Mặt bằng tầng 2

Mặt bằng tầng 2 bao gồm:

+ Phòng ngủ 1 ( phòng ngủ Master) diện tích 14m2

+ Phòng ngủ 2 diện tích 15m2

Thiết kế mặt bằng tầng lầu 1 nhà đẹp 3 tầng với 2 phòng ngủ khép kín, diện tích lớn so với tổng thể nhà đồng thời để căn phòng trở nên thoải mái, thoáng mát và thư giãn trong không gian riêng thì KTS thiết kế 2 ban công rộng, thoáng mát cho 2 phòng ngủ. Phòng ngủ Master thiết kế thêm bàn làm việc thuận tiện cho việc sinh hoạt trong không gian riêng, phòng ngủ con được thiết kế thêm bàn học giúp bé có thể học hành yên tĩnh và tự sáng tạo trong không gian riêng của mình và đặc biệt đảm bảo được chất lượng học tập.

Thiết kế mặt bằng tầng 2 nhà đẹp 3 tầng hiện đại
Mặt bằng tầng 2 nhà ống

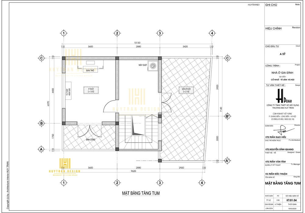
Mặt bằng tầng tum

Mặt bằng tầng tum gồm phòng thờ, máy giặt và sân phơi. Phòng thờ được đặt trên tầng cao nhất tùy vào nhu cầu của mỗi gia đình. Huytrandesign luôn mang đến những giá trị tuyệt vời nhất cho từng gia chủ. Vì vậy, khi thiết kế phòng thờ chúng tôi luôn phân tích kỹ càng về mặt phong thủy bởi khi phân tích phong thủy tốt sẽ mang đến vượng khí, tài lộc cũng như sự kính trọng của thế hế sau đối với những người đã khuất.

 Huytrandesign chuyên thiết kế thi công nhà trọn gói nhà phố, biệt thự, cải tạo biệt thự Vinhomes,... tại Hà Nội và các tỉnh lân cận mang đến không gian sống tốt nhất cho ngôi nhà của bạn

Thiết kế mặt bằng tầng tum nhà phố 3 tầng
Mặt bằng tầng tum nhà ống 3 tầng đẹp phong cách hiện đại

Để thiết kế riêng cho ngôi nhà của bạn hãy liên hệ với chúng tôi để được tư vấn MIỄN PHÍ 

Tel: 083.3333.183 (Hieu Mr) - 0813.383.183

Website: http://huytrandesign.vn/. 

VPGD: Sao Biển 01-134, Vinhomes Ocean Park, Gia Lâm, Hà Nội

 

Đánh giá - Bình luận
0 bình luận, đánh giá về Mẫu nhà đẹp 3 tầng độc lạ mặt tiền 7m tại Cổ Nhuế Hà Nội.y
Nhấn vào đây để đánh giá
Thông tin người gửi
Video
Thiết Kế Nội Thất Biệt Thự Vinhomes Ocean Park Độc Đáo
Thiết Kế Nội Thất Biệt Thự Vinhomes Ocean Park Độc Đáo
Thiết Kế Nội Thất Biệt Thự Vinhomes Ocean Park Độc Đáo
Thiết Kế Nội Thất Biệt Thự Vinhomes Ocean Park Độc Đáo
04/09/19
Thiết kế nội thất nhà phố độc đáo lạ mắt
Thiết kế nội thất nhà phố độc đáo lạ mắt
11/09/19
VTV Vingroup tiết lộ về bất động sản VinCity
VTV Vingroup tiết lộ về bất động sản VinCity
21/03/19
Cuốn hút với Thiết kế Biệt thự Hoa Sữa Vinhomes Riverside
Cuốn hút với Thiết kế Biệt thự Hoa Sữa Vinhomes Riverside
03/09/19
Chúng tôi có thể hỗ trợ bạn!
0.15152 sec| 2604.875 kb