Thiết kế nhà ống 3 tầng hiện đại mặt tiền 5m đẹp nhất 2022

Thiết kế nhà phố 3 tầng đẹp hiện đại chỉ với mặt tiền 5m thiết kế 3 phòng ngủ. Mẫu nhà phố 3 tầng mái bằng có sân phơi rộng rãi để phơi đồ, ngoài ra nội thất nhà phố 1 trệt 2 lầu sử dụng toàn bộ nội thất cao cấp phong cách hiện đại theo xu hướng mới nhât 2022.

Tổng quan
Chủ đầu tư
Anh Hải
Địa điểm
Nam Trực, Nam Định
Số tầng
3 tầng 1 tum
Diện tích đất
270m2
Đơn vị thực hiện
Huytrandesign
Năm thi công
2021
Ưu điểm Thiết kế nhà ống 3 tầng hiện đại mặt tiền 5m đẹp nhất 2022

Mẫu ngoại thất nhà ống 3 tầng hiện đại mặt tiền 5m đơn giản

Mẫu thiết kế nhà ống 3 tầng hiện đại của gia đình anh Hải tại Nam trực Nam Định được thết kế trên diện tích 95.5m. Đây là một sự sáng tạo đầy nghệ thuật của trường phái kiến trúc hiện đại trẻ trung, thanh thoát, được kiến tạo nên từ những nét vẽ thanh mảnh khỏe khoắn, phản ánh được tinh thần của thời đại mới.

Thiết kế ngoại thất nhà ống 3 tầng
Thiết kế nhà ống 3 tầng hiện đại mặt tiền 5m đơn giản, sang trọng chi phí rẻ

Sự linh hoạt và đơn giản trong bố cục hình khối kiến trúc, cùng tính tạo hình cao dễ dàng tạo nên hiệu quả về mặt thị giác, kéo rộng không gian diện tích khiến cho mẫu thiết kế nhà phố hiện đại 3 tầng đẹp phóng khoáng, tự do, không một chút gò bó. 

Thiết kế ngoại thất nhà ống 3 tầng
Sử dụng các hình khối đơn giản, linh hoạt và tự do

Mẫu thiết kế mặt tiền nhà phố 5m có tính năng phù hợp cao, thích hợp với nhiều kích thước diện tích như: 5x20m, 6x20m, 7x20m… Ngoài ra, không gian sống còn có thể bài trí thêm các tiện ích khác như tầng hầm, giếng trời phục vụ tối đa nhu cầu cuộc sống sinh hoạt hằng ngày.

Lấy đơn giản làm tiêu chí thiết kế, sử dụng ánh sáng tự nhiên làm điểm nhấn thẩm mĩ và coi trọng tính ứng dụng là những tiêu chí cao nhất trong xu hướng thiết kế mẫu nhà ống 3 tầng hiện đại mà Huytrandesign luôn tâm niệm và nỗ lực đạt được. Hãy để chúng tôi đồng hành cùng bạn kiến tạo nên ngôi nhà bắt mắt, sáng tạo, đầy tính nghệ thuật và tính ứng dụng ở mức độ cao nhất.

Thiết kế ngoại thất nhà ống 3 tầng
Thiết kế ngoại thất đơn giản, thẩm mỹ

Những nét phá cách trong kết cấu mái bằng, mái kính lấy sáng kết hợp với ban công đơn giản, rộng thoáng kết hợp cửa kính khung nhôm chống nắng chống mưa và nhiều khoảng trống trong tổng thể kiến trúc mặt tiền ngôi nhà đảm bảo nhu cầu tối ưu cho sinh hoạt thường ngày, chất lượng sống vừa tạo điểm nhấn ấn tượng, rất khác biệt. 

Thiết kế ngoại thất nhà ống 3 tầng
Thiết kế nhà 3 tầng có sân phơi mái kính

Bên cạnh đó, kiến trúc bền vững cùng tôn trọng tự nhiên, thân thiện môi trường là điều dễ dàng nhận thấy trong tổng thể hài hòa của thiết kế nhà phố hiện đại này. Kiến trúc sư của Huytrandesign chúng tôi đã khéo léo lồng ghép những ứng dụng tiêu biểu trong tổ chức không gian tổng thể rộng rãi, áp dụng những kiến thức khoa học trong bày trí không gian xanh, tạo nên thiết kế vườn tiểu cảnh nhỏ xinh cho nhà phố chật hẹp,từ đó lựa chọn nên những đường nét sáng tạo, tinh tế cho thiết kế không gian sống hài hòa của căn nhà. 

Thiết kế ngoại thất nhà ống 3 tầng
Thiết kế ngoại thất có tiểu cảnh cây xanh tươi mới

 Mặt bằng và công năng khoa học cho nhà ống 3 tầng hiện đại

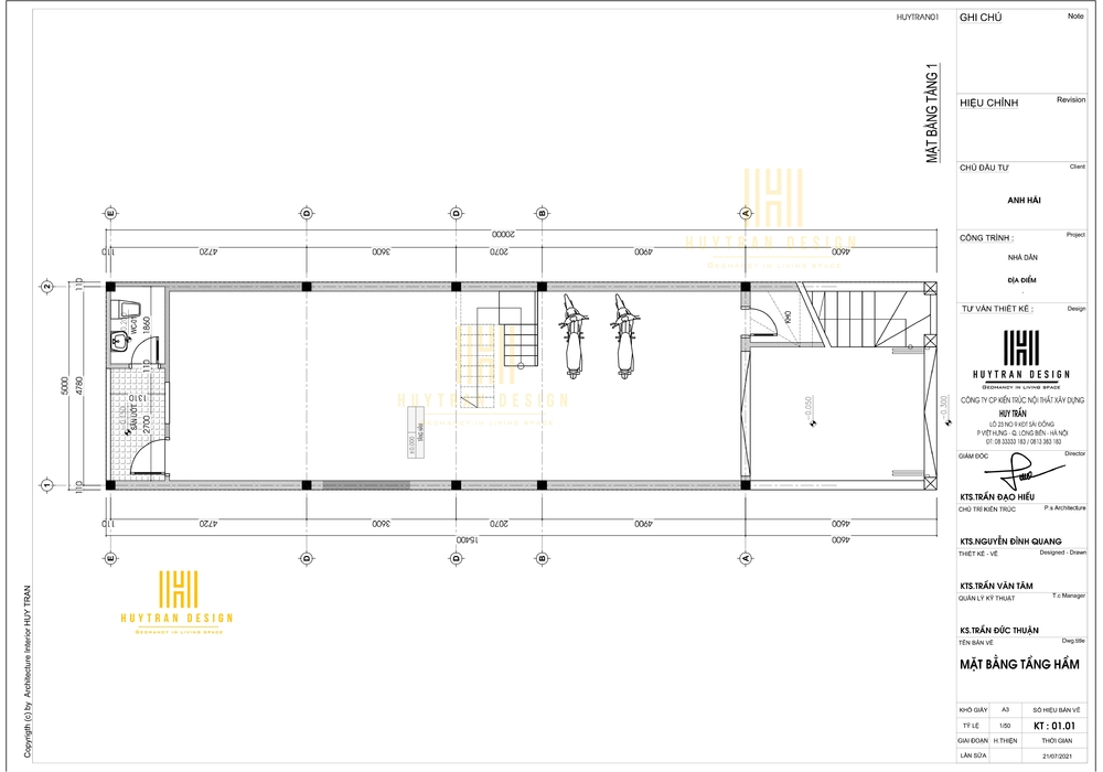
Mặt bằng tầng hầm nhà ống 3 tầng hiện đại

Mặt bằng tầng hầm bao gồm:

+ Nhà kho rộng rãi kết hợp gara để xe

+ Sân ướt diện tích 3.7m2

+ Nhà vệ sinh 2.8m2

Tầng hầm nhà ống 3 tầng hiện đại được thiết kế làm nhà kho để đồ kết hợp Gara để ô tô và xe máy mà vẫn đảm bảo được nhu cầu sinh hoạt hằng ngày. Tại tầng hầm thiết ké thêm sân ướt phục vụ rửa đồ, tay chân và 1 nhà vệ sinh nhỏ tiện lợi.

Thiết kế mặt bằng nhà ống 3 tầng
Mặt bằng tầng hầm có gara để ô tô

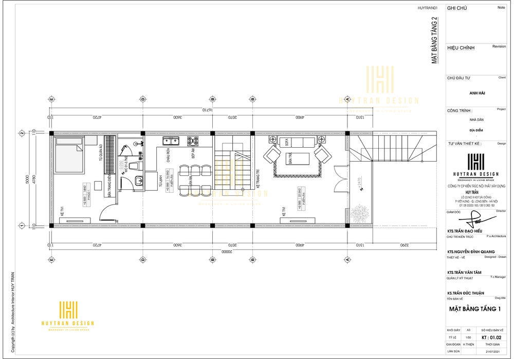
Thiết kế mặt bằng tầng 1

Mặt bằng tầng 1 với diện tích 81m2 bao gồm:

+ Phòng khách diện tích 22.5m2

+ Phòng bếp diện tích 16.5m2

+ Nhà vệ sinh chung diện tích 3.7m2

+ Phòng ngủ diện tích 14m2

Khi bước lên cầu thang là sảnh hiên trồng tiểu cảnh cây xanh mang đến không gian trong lành, bước vào trong cửa chính là phòng khách rộng rãi cạnh thang bộ. Tiến sâu vào trong là phòng ăn kết hợp phòng bếp với bộ bàn 6 ghế, 1 tủ lạnh, 1 chậu rửa và bếp từ lớn. Lui bên trong là nhà vệ sinh chung và 1 phòng ngủ nhỏ có giường, hệ tủ quần áo và bàn trang điểm.

Thiết kế mặt bằng nhà ống 3 tầng
Mặt bằng thiết kế tầng 1

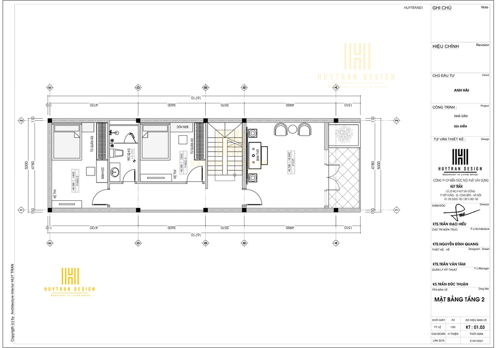
Mặt bằng tầng 2

Mặt bằng nội thất tầng 2 với diện tích 75m2 bao gồm:

+ Phòng ngủ 2 diện tích 14m2

+ Phòng ngủ 3 diện tích 12m2

+ Phòng thờ diện tích 18.5m2

+ Nhà vệ sinh diện tích 4.5m2

Nhà ống 3 tầng hiện đại đơn giản với thiết kế đầy đủ công năng và đặc biệt đảm bảo đầy đủ nhu cầu sử dụng của các thành viên trong gia đình. Thiết kế phòng ngủ con với 1 chiếc giường, 1 hệ tủ quần áo và bàn học nhỏ để bé tập trung hơn trong việc học. Phòng ngủ 3 cũng là phòng ngủ bé nhưng nhỏ hơn với 1 giường ngủ, 1 tủ quần áo, 1 bàn học. Phòng thờ được thiết kế bên ngoài gần ban công rộng rãi, thoáng mát để luồng khí dễ dàng lưu chuyển giúp mang lại vượng khí cũng như tài lộc đến cho gia chủ.

Thiết kế mặt bằng nhà ống 3 tầng
Mặt bằng nội thất tầng 2

Mặt bằng tầng tum. 

Mặt bằng nội thất tầng tum với diện tích 75m2 bao gồm:

+ Kho giặt đồ diện tích 19m2

+ 2 sân phơi

Thiết kế phòng giặt nhỏ gọn trên tầng tum tiện lợi gia chủ cũng có thể phơi đồ trên sân thượng rộng rãi mà không phải đi ljai nhiều. Thiết kế 2 khoảng sân rộng vừa có thể phơi đồ mà vừa cũng có thể tổ chức tiệc ngoài trời cho gia đình hay cùng nhau hóng gió cũng là một sự lựa chọn hợp lý.

thiết kế mặt bằng nhà ống 3 tầng
Mặt bằng tầng tum

Bạn đang mong muốn xây nhà phố, biệt thự sân vườn, thi công và cải tạo Biệt thự Tân cổ điển Vinhomes, thiết kế nội thất Shophouse, thiết kế biệt thự Tân cổ điển cho thuê. Hãy liên hệ với chúng tôi để được tư vấn MIỄN PHÍ 24/7: thiết kế, thi công, sửa chữa nhà cửa, biệt thự, biệt thự Vinhomes nhà hàng, sân vườn tiểu cảnh Huytrandesign – thiết kế biệt thự tân cổ điển khu vực Long Biên, Gia Lâm (Hà Nội) và các tỉnh thành miền Bắc.

Để thiết kế riêng cho ngôi nhà của bạn hãy liên hệ với chúng tôi để được tư vấn MIỄN PHÍ 

Tel: 083.3333.183 (Hieu Mr) - 0813.383.183

Website: http://huytrandesign.vn/. 

VPGD: Sao Biển 01-134, Vinhomes Ocean Park, Gia Lâm, Hà Nội

 

Đánh giá - Bình luận
0 bình luận, đánh giá về Thiết kế nhà ống 3 tầng hiện đại mặt tiền 5m đẹp nhất 2022
Nhấn vào đây để đánh giá
Thông tin người gửi
Video
Thiết Kế Nội Thất Biệt Thự Vinhomes Ocean Park Độc Đáo
Thiết Kế Nội Thất Biệt Thự Vinhomes Ocean Park Độc Đáo
Thiết Kế Nội Thất Biệt Thự Vinhomes Ocean Park Độc Đáo
Thiết Kế Nội Thất Biệt Thự Vinhomes Ocean Park Độc Đáo
04/09/19
Thiết kế nội thất nhà phố độc đáo lạ mắt
Thiết kế nội thất nhà phố độc đáo lạ mắt
11/09/19
VTV Vingroup tiết lộ về bất động sản VinCity
VTV Vingroup tiết lộ về bất động sản VinCity
21/03/19
Cuốn hút với Thiết kế Biệt thự Hoa Sữa Vinhomes Riverside
Cuốn hút với Thiết kế Biệt thự Hoa Sữa Vinhomes Riverside
03/09/19
Chúng tôi có thể hỗ trợ bạn!
0.20572 sec| 2625.258 kb