Thiết kế biệt thự Tân cổ điển mặt phố cho thuê đem lại thu nhập

Thiết kế biệt thự tân cổ điển mặt phố lớn, một trong những trục chính thủ đô Hà Nội. Thiết kế biệt thự phố vừa ở vừa cho thuê kinh doanh đem lại lợi nhuận lớn hằng tháng, ngoài ra với giao thông thuận tiện, gần trường học, chợ,... cũng là một lợi thế khi thiết kế biệt thự đẳng cấp cho thuê

 

Tổng quan
Chủ đầu tư
Chị Huyền
Địa điểm
Kim Liên, Đống Đa, Hà Nội
Số tầng
6 tầng 1 hầm
Diện tích đất
660m2
Đơn vị thực hiện
Huytrandesign
Năm thi công
2020
Ưu điểm Thiết kế biệt thự Tân cổ điển mặt phố cho thuê đem lại thu nhập

Thiết kế kiến trúc biệt thự tân cổ điển sang trọng đẳng cấp để cho thuê

Mặt tiền được thiết kế theo phong cách Tân cổ điển với diện tích lớn trên mặt phố Kim Liên, Hà Nội. Mẫu biệt thự phố mang đến sự nguy nga, tráng lệ và nâng tầm đẳng cấp, vị thế của gia chủ. Ngoại thất được giản lược những họa tiết hoa văn cầu kỳ thay vào đó là những nét nhấn nhá phào chỉ khỏe khoắn. Thiết kế biệt thự với màu trắng sứ có nhiều cửa sổ kính thông thoáng kết hợp lan can ban công nghệ thuật bằng đồng mang đến vẻ đẹp đặc trưng phong cách tân cổ điển

Thiết kế kiến trúc nhà phố biệt thự
Nhãn

 Không chỉ nhấn nhá phào chỉ trên những hệ cột chính thì trên mái tầng 6 được điểm xuyến thêm một chút hoa văn trên cột lan can và chóp giữa thiết kế mái ngói vảy cá cho biệt thự Pháp càng tôn lên dáng dấp và đẳng cấp của ngôi nhà

Thiết kế kiến trúc tân cổ điển
Nhãn

 Thiết kế nội thất biệt thự Tân cổ điển khoa học có không gian kinh doanh

 Mặt bằng tầng hầm gồm

Mặt bằng tầng hầm thiết kế để xe với diện tích 68m2. Ngoài ra không gian hầm còn thiết kế thang máy và thang bộ sâu bên trong hầm, bên cạnh thang là nhà vệ sinh chung sử dụng lúc cần thiết

Thiết kế nội thất biệt thự
Mặt bằng tầng hầm, thiết kế không gian gara để xe

Thiết kế mặt bằng biệt thự tân cổ điển

Mặt bằng tầng 1 gồm

- Sảnh diện tích 6.5m2

- Thang máy diện tích 7m2

- Thang bộ thoát hiểm diện tích 8.5m2

- Văn phòng cho thuê diện tích 58m2

- Nhà vệ sinh diện tích 3.8m2

Thiết kế mặt bằng nội thất biệt thự
Thiết kế mặt bằng tầng với không gian rộng cho thuê làm văn phòng

Mặt bằng cho thuê làm văn phòng kinh doanh tầng 2

 Mặt bằng không gian tầng 2 thiết kế cho thuê làm văn phòng kinh doanh giống không gian tầng 1

- Sảnh diện tích 6.5m2

- Thang máy diện tích 7m2

- Thang bộ thoát hiểm diện tích 8.5m2

- Văn phòng cho thuê diện tích 58m2

- Nhà vệ sinh diện tích 3.8m2

Thiết kế mặt bằng nội thất biệt thự
Không gian mặt bằng tầng 2 thiết kế cho thuê làm văn phòng kinh doanh

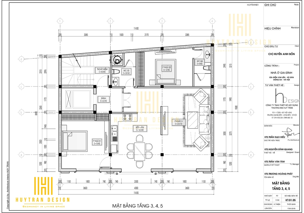
Thiết kế mặt bằng nội thất tầng 3,4,5

 Thiết kế mặt bằng nội thất nhà ở tầng 3,4,5 giống nhau bao gồm:

- Sảnh diện tích 6.5m2

- Thoát hiểm diện tích 8.5m2

- Phòng khách diện tích 23.5m2

- Phòng bếp ăn diện tích 16.5m2

- Phòng ngủ 1 diện tích 15m2

- Phòng ngủ khép kín 2 16m2

- Nhà vệ sinh chung diện tích 3.8m2

Không gian tầng 3,4,5 được thiết kế cho thuê nhà ở mỗi tầng đều có phòng khách, bếp và 2 phòng ngủ. Với mặt đường lớn, giao thông thuận tiện, gần chợ,... mang đến sự tiện nghi và cho thuê nhà ở là phương án vô cùng hợp lý cho CĐT

 

Thiết kế mặt bằng nội thất biệt thự
Không gian tầng 3,4,5 thiết kế làm nhà ở cho thuê

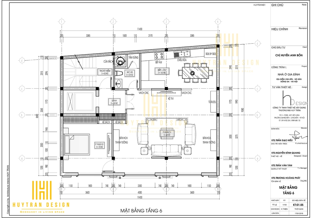
Thiết kế mặt bằng tầng 6

Thiết kế mặt bằng nội thất tầng 6 để ở bao gồm:

- Phòng khách diện tích 46m2

- Thiết kế bếp ăn diện tích 16.5m2

- Phòng ngủ 1 diện tích 15m2

- Sảnh diện tích 6.5m2

- Thoát hiểm diện tích 8.5m2

- Nhà vệ sinh chung diện tích 3.8m2

Thiết kế tầng 6 với không gian nhà ở có 1 phòng ngủ, phòng khách thiết kế diện tích lớn, chọn bộ sofa phòng khách lớn phù hợp với diện tích phòng khách. Không gian tầng 6 thiết kế không gian nhà ở và tiếp khách cho CĐT vì vậy tầng 6 thiết kế không gian sinh hoạt cần thiết và 1 không gian nghỉ ngơi để khi cần thiết có thể đáp ứng đầy đủ nhu cầu

Thiết kế mặt bằng nội thất biệt thự
Mặt bằng nội thất tầng 6 thiết kế nhà ở

Bạn đang mong muốn xây nhà phố, biệt thự sân vườn, thi công và cải tạo biệt thự tân cổ điển Vinhomes, thiết kế nội thất shophouse, thiết kế biệt thự tân cổ điển cho thuê. Hãy liên hệ với chúng tôi để được tư vấn MIỄN PHÍ 24/7: thiết kế, thi công, sửa chữa nhà cửa, biệt thự, biệt thự Vinhomes nhà hàng, sân vườn tiểu cảnh Huytrandesign – thiết kế biệt thự tân cổ điển khu vực Long Biên, Gia Lâm (Hà Nội) và các tỉnh thành miền Bắc.

Để thiết kế riêng cho ngôi nhà của bạn hãy liên hệ với chúng tôi để được tư vấn MIỄN PHÍ 

Tel: 083.3333.183 (Hieu Mr) - 0813.383.183

Website: http://huytrandesign.vn/. 

VPGD: Sao Biển 01-134, Vinhomes Ocean Park, Gia Lâm, Hà Nội 

Đánh giá - Bình luận
0 bình luận, đánh giá về Thiết kế biệt thự Tân cổ điển mặt phố cho thuê đem lại thu nhập
Nhấn vào đây để đánh giá
Thông tin người gửi
Video
Thiết Kế Nội Thất Biệt Thự Vinhomes Ocean Park Độc Đáo
Thiết Kế Nội Thất Biệt Thự Vinhomes Ocean Park Độc Đáo
Thiết Kế Nội Thất Biệt Thự Vinhomes Ocean Park Độc Đáo
Thiết Kế Nội Thất Biệt Thự Vinhomes Ocean Park Độc Đáo
04/09/19
Thiết kế nội thất nhà phố độc đáo lạ mắt
Thiết kế nội thất nhà phố độc đáo lạ mắt
11/09/19
VTV Vingroup tiết lộ về bất động sản VinCity
VTV Vingroup tiết lộ về bất động sản VinCity
21/03/19
Cuốn hút với Thiết kế Biệt thự Hoa Sữa Vinhomes Riverside
Cuốn hút với Thiết kế Biệt thự Hoa Sữa Vinhomes Riverside
03/09/19
Chúng tôi có thể hỗ trợ bạn!
0.16160 sec| 2612.961 kb