Mẫu nhà phố tân cổ điển đẹp diện tích 5x20m kết hợp kinh doanh

Thiết kế mẫu nhà phố tân cổ điển đẹp với 5 tầng 1 tum tại Ninh Hiệp, Gia Lâm, Hà Nội. Chủ đầu tư anh Tú mong muốn thiết kế xưởng may nhưng diện tích mặt sàn phù hợp thiết kế nhà tầng. Vì vậy, để thiết kế xưởng may sao cho phù hợp quy mô kinh doanh và mong muốn của CĐT thì KTS Huytrandesign thiết kế nhà phố tân cổ điển 5 tầng 1 tum với kiến trúc ngoại thất đẳng cấp sang trong nội thất đầy đủ chức năng và bộ phận, thiết kế nội thất cơ bản có thể chuyển đổi mục đích sử dụng khác dễ dàng nếu muốn.

Tổng quan
Chủ đầu tư
Anh Tú
Địa điểm
Ninh Hiệp, Hà Nội
Số tầng
5 tầng 1 tum
Kích thước
24 x 5
Đơn vị thực hiện
Huytrandesign
Năm thi công
2021
Ưu điểm Mẫu nhà phố tân cổ điển đẹp diện tích 5x20m kết hợp kinh doanh

Mẫu thiết kế kiến trúc nhà phố tân cổ điển đẹp sang trọng theo xu hướng mới nhất 2023. Mẫu thiết kế đơn giản, khỏe khoắn phù hợp với hu hướng hiện nay.

Kiến trúc nhà phố tân cổ điển đẹp 5 tầng 1 tum

Sử dụng gam màu trắng làm chủ đạo kết hợp nhấn nhá màu cà phê nhà phố tân cổ điển của anh Tú toát ra một nét quyến rũ êm ái, thơ mộng nhưng vô cùng khỏe khoắn.

Thiết Kế Kiến trúc nhà phố
Kiến trúc tân cổ điển kết hợp cửa kính khung nhôm tận dụng ánh sáng tối đa cho không gian nhà

Vẫn đi theo lối kiến trúc tân cổ điển lãng mạn mà sang trọng nhưng với cá tính nổi trội của gia chủ lần này, Huytrandesign lựa chọn những đường nét nhấn nhá khỏe mạnh đan xen nhau giữa các mảng kiến trúc từ cột đến phào chỉ tường tạo nên một sự cuốn hút mang tính chiều sâu cho thiết kế mặt tiền nhà phố tân cổ điển này.

Mẫu thiết kế mặt tiền nhà phố có tính năng phù hợp cao, thích hợp với nhiều kích thước diện tích như: 5x20m, 6x20m, 7x20m… Ngoài ra, không gian sống còn có thể bài trí thêm các tiện ích khác như tầng hầm, giếng trời phục vụ tối đa nhu cầu cuộc sống sinh hoạt hằng ngày.

Thiết Kế Kiến trúc nhà phố
Ban công sử dụng lan can sắt nghệ thuật đẹp theo xu hướng mới

Phần lớn nhà phố hiện nay với diện tích không quá lớn và tầm nhìn trên phố không đủ rộng rãi thường tránh lối trang trí tỉ mỉ, chi tiết. Đồng dạng có rất nhiều chủ nhà say đắm trường phái kiến trúc tân cổ điển nhưng chỉ dừng lại ở những điểm xuyết thanh mảnh, những nhấn nhá tối giản.

Đừng lo lắng bởi những kiến trúc sư của chúng tôi chính là chuyên gia, những người làm nghệ thuật kiến trúc chân chính. Mọi sự tính toán về tầm nhìn đã được chúng tôi tỉ mỉ cân nhắc ngay từ khi lựa chọn từng họa tiết, đảm bảo đáp ứng những tiêu chuẩn khắt khe nhất của lối kiến trúc tân cổ điển. Với sự đầu tư kỹ càng, tỉ mỉ, sự chi phối của hoa văn tinh xảo đan xen, toàn bộ kiến trúc nhà phố như gợi lên ký ức về một quá khứ xa xôi hào hoa và lộng lẫy.

Thiết Kế Kiến trúc nhà phố
Mặt tiền tân cổ điển đơn giản kết hợp màu nâu sang trọng

Sân thượng nhà phố 5 tầng thiết kế đơn giản có mái che và thêm bàn ghế nghỉ ngơi trò chuyện thư giãn sau những giờ làm việc mệt mỏi, xung quanh lan can thiết kế lan can sắt hiện đại thông thoáng vừa có thể giữ an toàn khi đứng trên sân thượng mà vừa có thể hưởng trọn gió và ánh sáng tối đa cho sân thượng

Thiết Kế Kiến trúc nhà phố
Tầng tum thiết kế bộ bàn ghế nghỉ ngơi

Thiết kế mặt bằng nội thất xưởng may cho nhà phố tân cổ điển

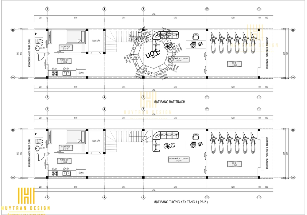
Mặt bằng tầng 1

Mặt bằng tầng 1 với diện tích 110m2 bao gồm:

- Khu để xe diện tích 23m2

- Phòng khách và phòng làm việc diện tích 25m2

- Phòng ngủ diện tích 8.7m2

- Phòng ăn kết hợp phòng bếp diện tích 8.4m2

- Nhà vệ sinh diện tích 2.8m2

Không gian tầng 1 thiết kế đơn giản có phòng ngủ, không gian sinh hoạt cần thiết. Sắp xếp không gian làm việc cạnh phòng khách thuận tiện, có thể làm việc và tiếp khách trong không gian riêng biệt tại tầng 1.

Thiết Kế nội thất nhà phố
Mặt bằng tầng 1

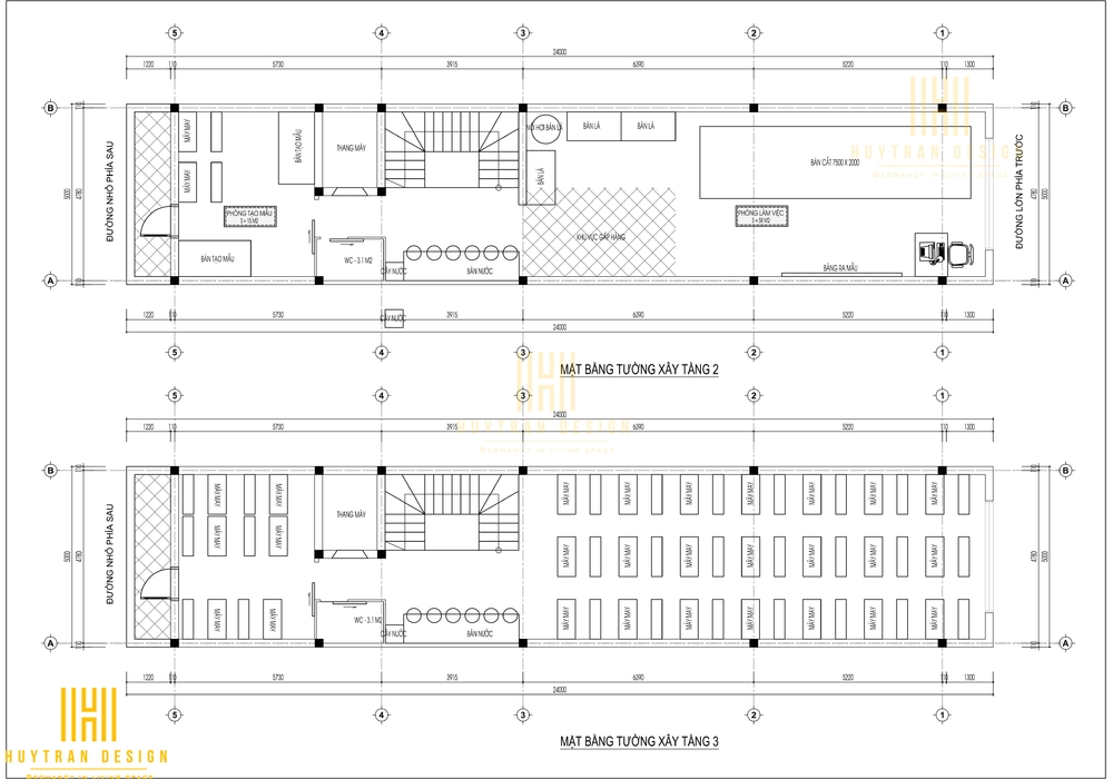
Mặt bằng nội thất tầng 2 và tầng 3

Tầng 2 thiết kế bao gồm:

- Phòng làm việc diện tích 58m2

-Phòng tạo mẫu diện tích 15m2

- Bàn uống nước

Tầng 3 thiết kế bao gồm:

-  Phòng may nhỏ diện tích 19m2

- Phòng may lớn diện tích 60m2

- Khu uống nước

- Nhà vệ sinh diện tích 3.1m2

Mặt bằng tầng 2 thiết kế bộ phận làm việc có khu bàn cắt, bảng ra mẫu, bàn là, khu vực gấp hàng, ở giữa là khu sảnh thang kết hợp bàn uống nước. Bên cạnh là phòng tạo mẫu gồm bàn tạo mẫu và máy may mẫu. Bên ngoài có một nhà vệ sinh chung. Mặt bằng tầng 3 thiết kế 2 phòng may lớn và nhỏ ở giữa là sảnh thang, khu uống nước và nhà vệ sinh chung phục vụ nhu cầu sinh hoạt cần thiết.

Thiết Kế nội thất nhà phố
Mặt bằng tầng 2 và tầng 3

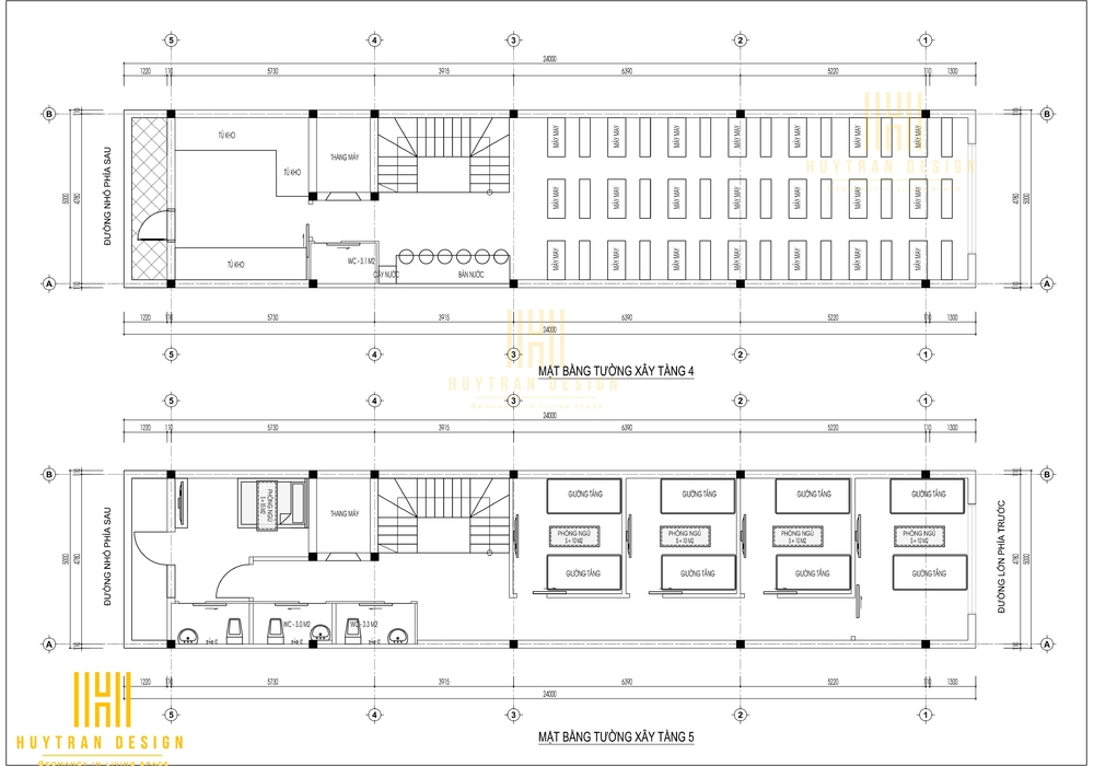
Thiết kế mặt bằng tầng 4 và tầng 5

Mặt bằng tầng 4 gồm:

- Khu may

- Không gian uống nước

- Nhà vệ sinh diện tích 3.1m2

- Tủ kho đựng đồ

Mặt bằng tầng 5 gồm:

- Phòng ngủ công nhân diện tích 60m2

- Phòng ngủ nhỏ diện tích 15m2

-  3 nhà vệ sinh chung

- Sảnh thang

Không gian tầng 4 thiết kế tủ kho đựng đồ  diện tích 10m2, khu sảnh thang kết hợp nhà vệ sinh và khu uống nước tiết kiệm diện tích. Không gian phòng may rộng khoảng 60m2 khoảng 21 bàn may giống phòng may lớn tầng 3. Vì mặt tiền rộng khoảng 5m và là nhà phố vì vậy thiết kế nhà phố 5 tầng tân cổ điển để làm xướng may là quá hợp lý vẫn tạo nên quy mô rộng lớn để có thể xử lý các đơn hàng may đặt đúng kỳ hạn. Thiết kế mặt bằng tầng 5 gồm phòng ngủ cho công nhân rộng khoảng 60m2 bên cạnh là sảnh thang gồm 3 nhà vệ sinh nhỏ, 1 phòng ngủ riêng diện tích 15m2.

Thiết Kế nội thất nhà phố
Mặt bằng nội thất tầng 4 và tầng 5

 

Bạn đang mong muốn xây nhà phố, biệt thự sân vườn, thi công và cải tạo Biệt thự Tân cổ điển Vinhomes, thiết kế nội thất Shophouse, thiết kế biệt thự Tân cổ điển cho thuê. Hãy liên hệ với chúng tôi để được tư vấn MIỄN PHÍ 24/7: thiết kế, thi công, sửa chữa nhà cửa, biệt thự, biệt thự Vinhomes nhà hàng, sân vườn tiểu cảnh Huytrandesign – thiết kế biệt thự tân cổ điển khu vực Long Biên, Gia Lâm (Hà Nội) và các tỉnh thành miền Bắc.

Để thiết kế riêng cho ngôi nhà của bạn hãy liên hệ với chúng tôi để được tư vấn MIỄN PHÍ 

Tel: 083.3333.183 (Hieu Mr) - 0813.383.183

Website: http://huytrandesign.vn/. 

VPGD: Sao Biển 01-134, Vinhomes Ocean Park, Gia Lâm, Hà Nội

Đánh giá - Bình luận
0 bình luận, đánh giá về Mẫu nhà phố tân cổ điển đẹp diện tích 5x20m kết hợp kinh doanh
Nhấn vào đây để đánh giá
Thông tin người gửi
Video
Thiết Kế Nội Thất Biệt Thự Vinhomes Ocean Park Độc Đáo
Thiết Kế Nội Thất Biệt Thự Vinhomes Ocean Park Độc Đáo
Thiết Kế Nội Thất Biệt Thự Vinhomes Ocean Park Độc Đáo
Thiết Kế Nội Thất Biệt Thự Vinhomes Ocean Park Độc Đáo
04/09/19
Thiết kế nội thất nhà phố độc đáo lạ mắt
Thiết kế nội thất nhà phố độc đáo lạ mắt
11/09/19
VTV Vingroup tiết lộ về bất động sản VinCity
VTV Vingroup tiết lộ về bất động sản VinCity
21/03/19
Cuốn hút với Thiết kế Biệt thự Hoa Sữa Vinhomes Riverside
Cuốn hút với Thiết kế Biệt thự Hoa Sữa Vinhomes Riverside
03/09/19
Chúng tôi có thể hỗ trợ bạn!
0.16239 sec| 2621.516 kb