Mẫu biệt thự 3 tầng tân cổ điển mái thái đẹp nhất năm 2023

Huytrandesign luôn luôn tôn trọng khách hàng, khi thiết kế công trình về mẫu biệt thự 3 tầng Tân cổ điển. Kiến trúc sư và kỹ sư xây dựng của chúng tôi luôn có sự sáng tạo, có gu thẩm mĩ tinh tế, kỹ thuật chuyên nghiệp. Kèm theo đó Kiến trúc sư và Kỹ sư xây dựng đều là những người có kinh nghiệm về những dự án thiết kế biệt thự, thiết kế biệt thự tân cổ điển, thiết kế biệt thự hiện đại, thiết kế nhà ống theo phong cách Tân cổ điển,... 

Tổng quan
Ưu điểm Mẫu biệt thự 3 tầng tân cổ điển mái thái đẹp nhất năm 2023

Thiết kế ngoại thất biệt thự 3 tầng mái thái đơn giản, đẹp tại Ninh Hiệp tiết kiệm chi phí

Kiến trúc ngoại thất biệt thự 3 tầng

Thiết kế biệt thự tân cổ điển 

Biệt thự theo phong cách tân cổ điển luôn sang trọng, khỏe khoắn. Những trụ cột song song,tone màu trắng chủ đạo, đường kẻ chỉ vuông vức gọn nhẹ, lột tả được những đường nét khỏe khoắn trong kiến trúc tân cổ điển tinh tế. Với sự kết hợp hài hòa giữa màu trắng chủ đạo của ngoại thất tầng 2 và tầng 3 điểm thêm tầng 1 ốp đá đen vân trắng huyền bí, màu ghi của những cánh cửa, màu xanh mái thái, màu đen tuyền của lan can ban công nghệ thuật tạo nên một ngôi nhà đơn giản mang vẻ đẹp hoàn hảo. 

Thiết kế kiến trúc ngoại thất biệt thự
Thiết kế biệt thự 3 tầng Tân cổ điển đơn giản mà tinh tế

Thiết kế và phối màu cho biệt thự

Màu trắng đặc trưng phong cách tân cổ điển, màu trắng thường được coi là tươi mới, sạch sẽ, tinh tế, hấp dẫn trong không gian rộng mở và được sử dụng với các màu sắc khác để tạo sự cân bằng. Vì vậy, thiết kế kiến trúc ngoại thất nhà biệt thự 3 tầng có sự kết hợp hài hòa sữa sắc trắng và màu đen của đá ốp ngoại thất tầng 1 thể hiện sự sang trọng và thanh lịch.

Thiết kế kiến trúc ngoại thất biệt thự
Sự kết hợp màu trắng tổng thể và màu đen tầng 1 mang đến phong cách mới lạ, độc đáo

 Thiết kế hệ thống cửa kính

Ngôi nhà được thiết kế nhiều cửa sổ kính để giúp ngôi nhà thông thoáng hơn, thoáng mát hơn đồng thời đón trọn ánh sáng tự nhiên vào căn phòng. Lan can được sử dụng hoa văn tinh tế, uốn lượn kết hợp ban công trồng thêm một chút tiểu cảnh cây xanh cùng tiểu cảnh hoa nhỏ trước nhà tạo nên vẻ đẹp dịu dàng trước vẻ đẹp khỏe khoắn của căn biệt thự.

Thiết kế kiến trúc ngoại thất biệt thự
Thiết kế hệ thống cửa kính lấy sáng kết hợp trồng hoa tiểu cảnh đơn giản

Thiết kế sử dụng mái thái

Thiết kế biệt thự 3 tầng mái thái thường là sự lựa chọn của các chủ đầu tư về mặt thẩm mỹ cũng như phù hợp với khí hậu Việt Nam. Mái thái là sự kết hợp giữa hai nền văn hóa Á - Âu nó mang đến những vẻ đẹp phóng khoáng, mạnh mẽ với phong cách tân cổ điển lại mang đến sự sang trọng, thanh lịch và vô cùng tinh tế. 

Thiết kế kiến trúc ngoại thất biệt thự
Mái thái được nhiều chủ đầu tư ưa chuộng vì độ bền, thẩm mỹ và hợp với khí hậu Việt Nam

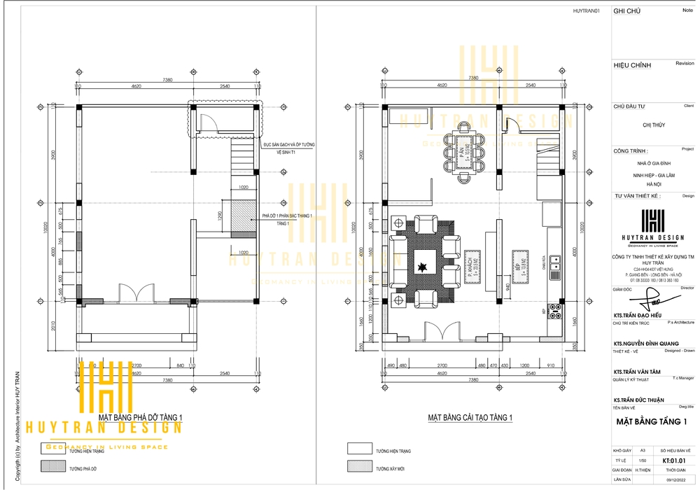
Mặt bằng và công năng nội thất biệt thự 3 tầng tân cổ điển đẹp năm 2023

Một thiết kế đẹp, một ngôi nhà lý tưởng đầy đủ công năng phải cần đến những ý tưởng thiết kế độc đáo, tài ba của KTS. Những đôi bàn tay khéo léo cùng đôi mắt thẩm mỹ và kinh nghiệm vốn có sẽ đem đến cho gia chủ không gian sống khoa học, lý tưởng và chuẩn chỉ nhất. Dưới đây, bên trái là mặt bằng hiện trạng cần phá dỡ, bên phải là mẫu thiết kế cải tạo lại mặt bằng và công năng nội thất biệt thự 3 tầng tân cổ điển mái thái nhà chị Thủy tại Ninh Hiệp của đơn vị thiết kế thi công trọn gói Huytrandesign.

Mặt bằng tầng 1 biệt thự 3 tầng

Mặt bằng tầng 1 bao gồm:

- Phòng khách diện tích 23.5m2

- Phòng bếp diện tích 13.8m2

- Phòng ăn diện tích 10.5m2

Thiết kế nội thất tầng 1 với không gian mở các không gian phòng khách, phòng bếp, phòng ăn đều được ngăn cách bởi vách ngăn tinh tế mang đến sự lưu thông không khí. Trong phong thủy sự lưu thông không khí cho nhà ở sẽ mang lại vượng khí và tài lộc đến cho gia chủ. Bước từ cửa chính vào là không gian phòng khách, phòng khách được thiết kế rộng rãi vì vậy lựa chọn một bộ sofa với kích thước hợp lý sẽ đem đến không gian lý tưởng. Bên cạnh phòng khách là phòng bếp được ngăn cách bởi một vách ngăn nhỏ, tiến sâu vào trong là phòng ăn được tách biệt riêng với phòng bếp.

Thiết kế mặt bằng nội thất biệt thự
Mặt bằng cải tạo nội thất tầng 1 

Mặt bằng tầng 2 biệt thự phố tân cổ điển

Tầng 2 thiết kế 2 phòng ngủ cụ thể:

- Phòng ngủ 1 diện tích 24.5m2

- Phòng ngủ 2 diện tích 16m2

- Nhà vệ sinh chung diện tích 6.3m2

Tầng 2 biệt thự với diện tích 72m2 thiết kế 2 phòng ngủ không khép kín và 1 nhà vệ sinh chung sẽ tiết kiệm diện tích hơn. Thiết kế phòng ngủ lớn có ban công rộng rãi có thể trồng 1 chút tiểu cảnh cây xanh vừa tươi mát vừa mang đến không gian xanh thông thoáng về cho gia đình. Phòng ngủ 2 thiết kế nhỏ hơn có giường ngủ, 1 bàn nhỏ trang điểm, hệ tủ quần áo rộng rãi.

Thiết kế mặt bằng nội thất biệt thự
Mặt bằng cải tạo tầng 2 biệt thự với 2 phòng ngủ

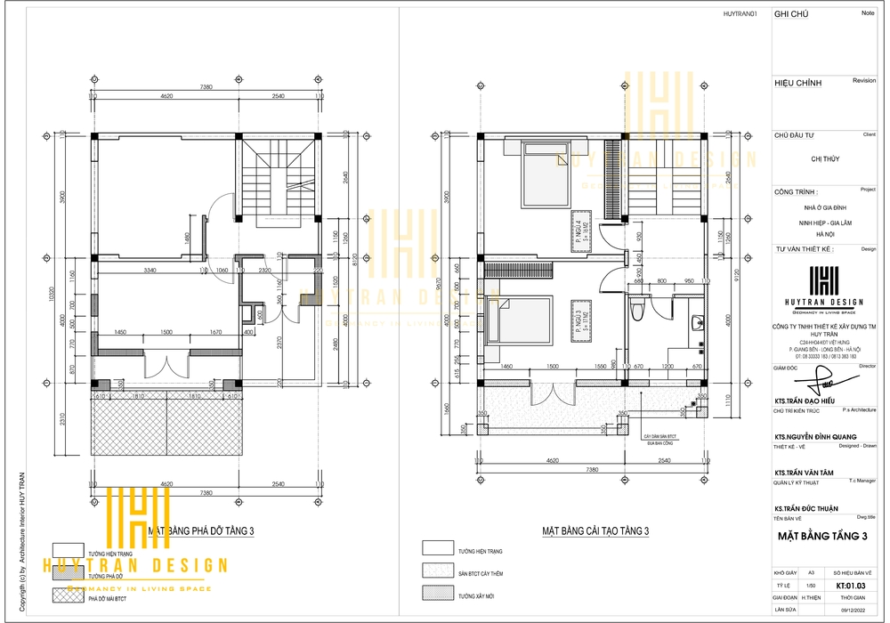
Mặt bằng tầng 3 biệt thự

không gian tầng 3 bao gồm:

- Phòng ngủ 3 diện tích 17m2

- Phòng ngủ 4 diện tích 16m2

- Nhà vệ sinh chung diện tích 6.3m2

Tầng 3 biệt thự phố thiết kế 2 phòng ngủ và 1 nhà vệ sinh chung. 2 phòng ngủ 3 và 4 thiết kế với diện tích vừa phải gồm giường ngủ, tab đầu giường và hệ tủ quần áo. Thiết kế nhà vệ sinh chung cho tầng 3 với không gian vệ sinh nhỏ, 1 bệ lavabo rửa tay, 1 cabin tắm đứng đơn giản phục vụ nhu cầu sinh hoạt tối thiểu mà vẫn đảm bảo được sự khoa học và đầy đủ nhất đối với gia đình.

Thiết kế mặt bằng nội thất biệt thự
Không gian tầng 3 biệt thự thiết kế hợp lý và phù hợp nhu cầu của chủ đầu tư

Thiết kế mặt bằng mái thái cho biệt thự

Thiết kế mái nhà với độ dốc vừa phải, chia các diện mái dốc theo tỉ lệ chuẩn và có sự nghiên cứu về hướng sao cho có thẩm mỹ và có tính ứng dụng cao khi đưa mái thái vào công trình biệt thự phố 3 tầng tân cổ điển. Thiết kế mái thái không chỉ tôn lên vẻ đẹp mà còn thể hiện được sự đẳng cấp và tinh tế

Thiết kế mặt bằng nội thất biệt thự
Mặt bằng tầng mái gồm mái thái và 1 góc mái bằng phơi đồ.

Để thiết kế riêng cho ngôi nhà của bạn hãy liên hệ với chúng tôi để được tư vấn MIỄN PHÍ 

Tel: 083.3333.183 (Hieu Mr) - 0813.383.183

Website: http://huytrandesign.vn/. 

VPGD: Sao Biển 01-134, Vinhomes Ocean Park, Gia Lâm, Hà Nội

Đánh giá - Bình luận
0 bình luận, đánh giá về Mẫu biệt thự 3 tầng tân cổ điển mái thái đẹp nhất năm 2023
Nhấn vào đây để đánh giá
Thông tin người gửi
Video
Thiết Kế Nội Thất Biệt Thự Vinhomes Ocean Park Độc Đáo
Thiết Kế Nội Thất Biệt Thự Vinhomes Ocean Park Độc Đáo
Thiết Kế Nội Thất Biệt Thự Vinhomes Ocean Park Độc Đáo
Thiết Kế Nội Thất Biệt Thự Vinhomes Ocean Park Độc Đáo
04/09/19
Thiết kế nội thất nhà phố độc đáo lạ mắt
Thiết kế nội thất nhà phố độc đáo lạ mắt
11/09/19
VTV Vingroup tiết lộ về bất động sản VinCity
VTV Vingroup tiết lộ về bất động sản VinCity
21/03/19
Cuốn hút với Thiết kế Biệt thự Hoa Sữa Vinhomes Riverside
Cuốn hút với Thiết kế Biệt thự Hoa Sữa Vinhomes Riverside
03/09/19
Chúng tôi có thể hỗ trợ bạn!
0.15972 sec| 2634.625 kb