Mẫu biệt thự 2 tầng tân cổ điển ở nông thôn đẹp nhất 2023

Thiết kế mẫu biệt thự 2 tầng 1 tum 3 phòng ngủ phong cách tân cổ điển ở nông thôn mang đến không gian sống đẳng cấp trong giới thượng lưu. Biệt thự kết hợp kinh doanh mang đến không gian sống đầy đủ vẫn đảm bảo được mức thu nhập hằng tháng và đảm bảo được nhu cầu kinh doanh của gia chủ

Tổng quan
Ưu điểm Mẫu biệt thự 2 tầng tân cổ điển ở nông thôn đẹp nhất 2023

Thiết kế kiến trúc biệt thự 2 tầng 1 tum tân cổ điển kết hợp kinh doanh

Mặt tiền sang trọng

Mẫu thiết kế biệt thự 2 tầng sang trọng đẳng cấp với mẫu mã đơn giản, sang trọng nhưng vẫn nâng tầng đẳng cấp. Mẫu thiết kê biệt thự tân cổ điển đơn giản với mặt tiền trang nhã giản lược hoa văn cầu kỳ phức tạp nhưng vẫn toát lên vẻ đẹp bề thế cuốn hút. Đây cũng là một trong những mẫu tân cổ điển được ưa chuộng nhất 2023 ở nông thôn.

Thiết kế ngoại thất biệt thự 2 tầng 1 tum
Kiến trúc biệt thự 2 tầng tân cổ điển đơn giản khỏe khoắn

Phối màu độc đáo tạo nên diện mạo mới trong phong cách tân cổ điển

Không gian tầng 1 thiết kế kinh doanh vì vậy không gian có phần thông thoáng hơn. Ngoại thất biệt thự tân cổ điển được phối thêm màu vàng nâu vân đá toát ra một nét quyến rũ trầm ấm, thơ mộng lại vô cùng khỏe khoắn và tinh tế ngoài ra nó còn thể hiện sự vững chắc và bề thế cho tổng thể kiến trúc nhà ở. Bên trên được sơn màu trắng đặc trưng phong cách tân cổ điển toát thêm vẻ đẹp tinh khôi, sang trọng. Tầng 1 thiết kế không gian kinh doanh và đảm bảo được sự an toàn về an ninh, thẩm mỹ và tận dụng được độ rộng rãi thoáng mát nhất có thể cho nên sử dụng cửa cuốn là sự lựa chọn tốt nhất.

Thiết kế biệt thự tân cổ điển
Phối màu tinh tế tạo lên sự khỏe khoắn và vứng chắc cho ngôi nhà

 Sử dụng bức phù điêu tinh tế và hợp lý

Thiết kế phong cách tân cổ điển không thể thiếu những bức phù điêu hoa văn, nhưng để làm sao ngôi nhà có sự hài hòa lãng mạn mà sang trọng. Huytrandesign lựa chọn những đường nét nhấn nhá khỏe mạnh đan xen nhau giữa các mảng kiến trúc từ cột, họa tiết hoa văn uyển chuyển uốn lượn mềm mại đến phào chỉ tường tạo nên một sự cuốn hút mang tính chiều sâu cho thiết kế mặt tiền nhà phố biệt thự 2 tầng 1 tum tân cổ điển này.

Thiết kế biệt thự tân cổ điển
Trang trí phù điêu hoa văn uốn lượn uyển chuyển

Sử dụng mái bằng cho biệt thự 2 tầng tân cổ điển ở nông thôn

Thiết kế mái bằng kết hợp mái kính cho biệt thự luôn là sự lựa chọn hoàn hảo. Ngoài cách thiết kế biệt thự mái ngói thái thì thì mái bằng kết hợp mái kính che tận dụng được tối đa ánh sáng tự nhiên tràn ngập căn phòng. Sân tầng 2 và tầng tum được thiết kế mái kính cường lực khung nhôm có thể phơi quần áo nhanh khô, mùa mưa có mái che cũng rất tiện lợi và giảm thiểu chi phí. Sân tầng 2 rộng khoảng 7m sân tầng tum khoảng 10m có thể thiết kế thêm một số bộ bàn ghế nhỏ gia đình có thể ngắm cảnh, hóng gió vào mỗi đêm hoặc cũng có thể tổ chức những bữa tiệc sinh nhật, tiệc nướng ngoài trời để thay đổi không khí cho gia đình.

Thiết kế biệt thự tân cổ điển
Thiết kế mái bằng kết hợp mái kính đơn giản độc đáo, tiết kiệm chi phí

Mặt bằng và công năng biệt thự 2 tầng tân cổ điển mặt tiền 5m

Mặt bằng công năng tầng 1 và tầng 2

Mặt bằng tầng 1 thiết kế không gian kinh doanh kích thước 5x21m diện tích khoảng 88m2 có 1 cầu thang bộ đảm bảo nhu cầu sinh hoạt thiế yếu cho gia đình

Mặt bằng tầng 2 bao gồm:

- Phòng khách diện tích 28m2

- Phòng ngủ 1 diện tích 16.5m2

- Phòng ngủ 2 diện tích 11.5m2

- Nhà vệ sinh diện tích 3m2

Thiết kế biệt thự 2 tầng 1 tum với mặt tiền 5m phù hợp với diện tích và nhu cầu sử dụng thiết yếu của gia đình. Vì vậy, tầng 1 thiết kế phục vụ nhu cầu kinh doanh của toàn gia đình. Tầng 2 thiết kế 1 phòng khách, 2 phòng ngủ, 1 vệ sinh chung và 1 khoảng sân ban công rộng 35m2 có thể phơi đồ, tổ chức những bữa tiệc nhỏ ngoài trời hay đơn giản nhâm nhi ly trà vào mỗi sớm mai hoặc là hóng gió về đêm để tăng thêm hơi ấm và tình cảm gắn bó cho các thành viên trong gia đình

Thiết kế mặt bằng công năng biệt thự
Mặt bừng công năng nội thất tầng 1 và tầng 2

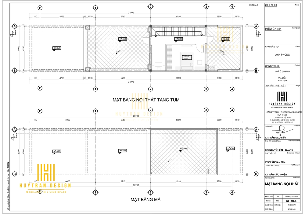
 Mặt bằng nội thất tầng tum và tầng mái

Thiết kế mặt bằng tầng tum đơn giản diện tích 80m2 gồm:

- Phòng ngủ con diện tích 11.5m2

- Phòng thờ nhỏ diện tích 3m2

- Sân nhỏ sau phơi đồ diện tích 18m2

- Sân trước diện tích 33m2

Mặt bằng tầng mái diện tích 80m2

Thiết kế tầng tum thông thóng với 1 phòng ngủ nhỏ cho con có chiếc giường đơn nhỏ, bàn học, tủ quần áo phù hợp với diện tích tầng tum. Ngoài ra thiết kế phòng thờ cạnh phòng ngủ con và hành lang với diện tích vừa đủ, bên cạnh phòng thờ có sân rộng rãi thoáng mát vừa có thể trồng cây hoa tiểu cảnh mang lại không gian xanh mát, cũng có thể hóng gió và đặc biệt sân thượng còn lưu thông không khí cho toàn không gian nhà. Theo phong thủy phòng thờ thiết kế trong không gian thông thoáng là rất tốt sẽ đem lại tài lộc và vượng khí cho toàn gia đình.

Mặt bằng công năng nội thất biệt thự 2 tầng
Mặt bằng công năng nội thất tầng tum và tầng mái

Bạn đang mong muốn xây nhà phố, biệt thự sân vườn, thi công và cải tạo Biệt thự Tân cổ điển Vinhomes, thiết kế nội thất Shophouse, thiết kế biệt thự Tân cổ điển cho thuê. Hãy liên hệ với chúng tôi để được tư vấn MIỄN PHÍ 24/7: thiết kế, thi công, sửa chữa nhà cửa, biệt thự, biệt thự Vinhomes nhà hàng, sân vườn tiểu cảnh Huytrandesign – thiết kế biệt thự tân cổ điển khu vực Long Biên, Gia Lâm (Hà Nội) và các tỉnh thành miền Bắc.

Để thiết kế riêng cho ngôi nhà của bạn hãy liên hệ với chúng tôi để được tư vấn MIỄN PHÍ 

Tel: 083.3333.183 (Hieu Mr) - 0813.383.183

Website: http://huytrandesign.vn/. 

VPGD: Sao Biển 01-134, Vinhomes Ocean Park, Gia Lâm, Hà Nội

 

Đánh giá - Bình luận
0 bình luận, đánh giá về Mẫu biệt thự 2 tầng tân cổ điển ở nông thôn đẹp nhất 2023
Nhấn vào đây để đánh giá
Thông tin người gửi
Video
Thiết Kế Nội Thất Biệt Thự Vinhomes Ocean Park Độc Đáo
Thiết Kế Nội Thất Biệt Thự Vinhomes Ocean Park Độc Đáo
Thiết Kế Nội Thất Biệt Thự Vinhomes Ocean Park Độc Đáo
Thiết Kế Nội Thất Biệt Thự Vinhomes Ocean Park Độc Đáo
04/09/19
Thiết kế nội thất nhà phố độc đáo lạ mắt
Thiết kế nội thất nhà phố độc đáo lạ mắt
11/09/19
VTV Vingroup tiết lộ về bất động sản VinCity
VTV Vingroup tiết lộ về bất động sản VinCity
21/03/19
Cuốn hút với Thiết kế Biệt thự Hoa Sữa Vinhomes Riverside
Cuốn hút với Thiết kế Biệt thự Hoa Sữa Vinhomes Riverside
03/09/19
Chúng tôi có thể hỗ trợ bạn!
0.21986 sec| 2617.258 kb