Mẫu thiết kế biệt thự 3 tầng tân cổ điển đẹp nhất 2022

Tổng quan
Chủ đầu tư
Anh Quân
Địa điểm
Nam Trực, Nam Định
Số tầng
3 tầng
Đơn vị thực hiện
Huytrandesign
Năm thi công
2022
Ưu điểm Mẫu thiết kế biệt thự 3 tầng tân cổ điển đẹp nhất 2022

Thiết kế ngoại thất biệt thự 3 tầng tân cổ điển đẹp năm 2023

Khi thiết chủ đầu tư đã tham khảo rất nhiều đơn vị uy tín nhưng đều không ưng ý và không phù hợp với phong cách và lối sống của gia đình anh. Anh tham khảo thêm những đơn vị uy tín trên website và vô tình tìm thấy được những phong cách thiết kế đẹp mắt thông qua những hạng mục, công trình thực tế Huytrandesign đã trực tiếp thực hiện và phù hợp với nhu cầu của anh. Anh đã liên hệ với Huytrandesign để nhờ tư vấn,sau đó chúng tôi mời anh đến văn phòng và tham khảo những mẫu thiết kế biệt thự 3 tầng tân cổ điển của Huytrandesign. Sau đó với mong muốn và nhu cầu của anh chúng tôi đã tư vấn mẫu thiết kế phù hợp nhất. 

Thiết kế ngoại thất biệt thự 3 tầng
Biệt thự tân cổ điển 3 tầng đơn giản tại nông thôn

Mẫu biệt thự tân cổ điển 3 tầng đẹp thiết kế ban công hình tròn và cạnh vuông kết hợp lan hoa nghệ thuật đơn giản sợi mảnh phong cách hoàng gia và cũng là mẫu mã mới nhất năm 2022. Thiết kế biệt thự Tân cổ điển 3 tầng mái thái kết hợp mái bằng với hoa văn giản lược nhưng lối thiết kế kiến trúc với họa tiết chỉ cột toát lên được nét đặc trưng trang trí nhẹ nhàng và tinh tế

Thiết kế ngoại thất biệt thự 3 tầng
Thiết kế kiến trúc đơn giản, tinh tế, chắt lọc những giá trị cốt lỗi loại bỏ đi chi tiết rườm rà

 Sử dụng màu sơn trắng sứ màu đặc trưng phong cách tân cổ điển càng làm nổi bật lên hệ thống cửa kính khung gỗ tự nhiên, lan can ban công tinh tế. Màu trắng thể hiện sự tinh khôi, trong sáng, sang trọng và thoáng đãng đậm chất Châu Âu. Sử dụng nhiều cửa kính khung gỗ nâu sang trọng giúp không gian sống thông thoáng hơn chiếm trọn ánh sáng tự nhiên thân thiện với môi trường. 

Thiết kế ngoại thất biệt thự 3 tầng
Thiết kế kiến trúc thông thoáng kết hợp những mẫu mã mới nhất 2023 tạo nên sự trẻ trung tươi mới

Mặt bằng công năng cho biệt thự 3 tầng tân cổ điển có 3 phòng ngủ tại Nam Trực, Nam Định

Một ngôi nhà hoàn hảo không chỉ dựa vào hình thức kiến trúc mà còn dựa vào cách bố trí công năng khoa học, hợp lý. Bằng những kinh nghiệm vốn có, KTS Huytrandesign luôn cố gắng đưa ra những phương án thiết kế công năng sử dụng sao cho hài hòa nhất và mong muốn mang tới cho gia chủ không gian sống lý tưởng. Nội thất không chỉ là sản phẩm của những KTS tài hoa mà nó còn là hồn, là cốt lõi của công trình. Mời các bạn tham khảo mặt bằng biệt thự 3 tầng tân cổ điển qua những đôi bàn tay khéo léo của KTS Huytrandesign.

Mặt bằng công năng tầng 1 và tầng 2

Thiết kế mặt bằng tầng 1 biệt thự 3 tầng tân cổ điển mặt tiền 5m gồm:

- Phòng khách diện tích 26m2

- Phòng bếp, phòng ăn diện tích 18m2

- Phòng ngủ 1 diện tích 15m2

  Thiết kế mặt bằng nội thất tầng 2 gồm:

- Phòng ngủ Master diện tích 27m2

- Phòng ngủ 2 diện tích 26m2

- Nhà vệ sinh chung diện tích 4m

Thiết kế biệt thự 3 tầng đẹp diện tích 5x15 với mặt bằng nội thất đơn giản tầng 1 chủ yếu thiết kế không gian sinh hoạt chung như phòng khách và phòng bếp. Ngoài ra thiết kế 1 căn phòng ngủ nhỏ bên trong cùng phù hợp vưới những người lớn tuổi. Để tiết kiệm diện tích hơn cho tầng 1 KTS Huytrandesign thiết kế thêm nhà vệ sinh dưới gầm thang vừa đảm bảo nhu cầu thiết yếu, diện tích sử dụng mà vẫn đảm bảo được công năng sử dụng khoa học. Tầng 2 thiết kế 2 phòng ngủ 1 phòng ngủ Master khép kín có giường ngủ, tủ quần áo, nhà vệ sinh và khoảng ban công nhỏ thông thoáng. Phòng ngủ 2 thiết kế có ban công nhỏ và khoảng thông tầng. Phòng ngủ này thiết kế nhà vệ sinh bên ngoài để đảm bảo phòng được rộng rãi hơn, thoáng mát hơn.

Thiết kế mặt bằng công năng biệt thự 3 tầng
Mặt bằng công năng tầng 1 và tầng 2

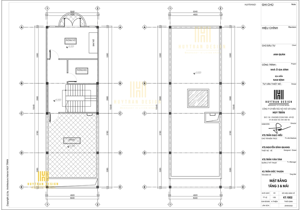
Thiết kế mặt bằng tầng 3 và mái

Mặt bằng tầng 3 gồm:

- Phòng thờ diện tích 14m2

- Phòng kho diện tích 6m2

 - Sân mái diện tích 30m2

Thiết kế mặt bằng nội thất tầng 3 với phòng thờ cps ban công tròn nhỏ thông thoáng giúp lưu thông vượng khí. Ngoài ra, thiết kế thêm phòng kho để đồ mùa đông hoặc những đồ chưa sử dụng đến giúp căn nhà trở nên gọn gàng và sạch sẽ hơn. Thiết kế sân sau rộng rãi có thể hóng gió, ngắm cảnh, phơi đồ hay có thể tổ chức những bữa tiệc ngoài trời của gia đình cũng là phương án hợp lý cho mọi gia đình để thay đổi không khí mới lạ hơn. Tầng mái thiết kế mái bằng diện tích lớn vừa tiết kiệm chi phí xây dựng mà vẫn đảm bảo được ngôi nhà trở nên hoàn hảo nhất.

Thiết kế mặt bằng công năng biệt thự 3 tầng
Mặt bằng tầng 3 và tầng mái

Để thiết kế riêng cho ngôi nhà của bạn hãy liên hệ với chúng tôi để được tư vấn MIỄN PHÍ 

Tel: 083.3333.183 (Hieu Mr) - 0813.383.183

Website: http://huytrandesign.vn/. 

VPGD: Sao Biển 01-134, Vinhomes Ocean Park, Gia Lâm, Hà Nội

Đánh giá - Bình luận
0 bình luận, đánh giá về Mẫu thiết kế biệt thự 3 tầng tân cổ điển đẹp nhất 2022
Nhấn vào đây để đánh giá
Thông tin người gửi
Video
Thiết Kế Nội Thất Biệt Thự Vinhomes Ocean Park Độc Đáo
Thiết Kế Nội Thất Biệt Thự Vinhomes Ocean Park Độc Đáo
Thiết Kế Nội Thất Biệt Thự Vinhomes Ocean Park Độc Đáo
Thiết Kế Nội Thất Biệt Thự Vinhomes Ocean Park Độc Đáo
04/09/19
Thiết kế nội thất nhà phố độc đáo lạ mắt
Thiết kế nội thất nhà phố độc đáo lạ mắt
11/09/19
VTV Vingroup tiết lộ về bất động sản VinCity
VTV Vingroup tiết lộ về bất động sản VinCity
21/03/19
Cuốn hút với Thiết kế Biệt thự Hoa Sữa Vinhomes Riverside
Cuốn hút với Thiết kế Biệt thự Hoa Sữa Vinhomes Riverside
03/09/19
Chúng tôi có thể hỗ trợ bạn!
0.16426 sec| 2605.781 kb