Mẫu nhà ống 4,5 tầng mặt tiền 4m đẹp Phong cách hiện đại tại Hà Nội

Tổng quan
Địa điểm
Hoàng Mai, Hà Nội
Ưu điểm Mẫu nhà ống 4,5 tầng mặt tiền 4m đẹp Phong cách hiện đại tại Hà Nội

Mẫu mặt tiền nhà ống 4 tầng hiện đại đơn giản

Thiết kế nhà ống 4 tầng 1 tum hiện đại đơn giản mặt tiền 4m mang đến không gian sang trọng cho người sử dụng. Thông thường khi thiết kế nhà phố hiện đại tầng 1 CĐT hướng về mảng kinh doanh là nhiều. Để phù hợp với thiết kế cửa kính cường lực khung nhôm và có thể trưng bày toàn bộ sản phẩm kinh doanh một cách hoàn hảo và đẹp nhất.

Mặt tiền nhà ống 4,5 tầng với diện tích 4x15m2 không gian tầng 1 thiết kế kinh doanh. Vì vậy, về tổng thể ngoại thất không sự khác biệt nhưng để nổi bật sản phẩm CĐT muốn kinh doanh KTS Huytrandesign đã thiết kế ngoại thất tầng 1 ốp đá Granite ( đá hoa cương) đen vân vàng chịu nhiệt cao, sang trọng và quan trọng nhất nổi bật được sản phẩm mà CĐT muốn kinh doanh.

Thiết kế nhà ống 4 tầng hiện đại
Phối cảnh kiến trúc nhà ống 4 tầng 1 tum vừa ở kết hợp kinh doanh

 Thiết kế ngoại thất nhà ống hiện đại 4 tầng đơn giản, tiết kiệm chi phí. Xu hướng thiết kế mẫu nhà ống 4 tầng đẹp 2022 thường thiết kế phong cách hiện đại, mang tính trẻ trung, phóng khoáng chỉ với hệ thống cửa kính, ban công kính khung inox sáng sủa, an toàn và một chút gạch kẻ phối giúp căn nhà có chiều sâu hơn.

Thiết kế nhà phố mặt tiền 4m - Huytrandesign
Mẫu nhà ống 4 tầng đẹp đơn giản giá cả phải chăng

Mặt tiền nhà ống đẹp 4m có vẻ hơi hẹp một chút nhưng vẫn đảm bảo được nhu cầu sử dụng và sự sắp xếp khoa học từng tầng một cách khoa học nhất và hợp lý nhất.

Công năng và mặt bằng nhà ống 4 tầng hiện đại với 4 phòng ngủ mặt tiền 4m

Mặt tiền mẫu nhà ống 4 tầng 4x15m2 đẹp với vỉa hè rộng rãi, thoáng mát phù hợp kinh doanh còn tầng 2,3,4, tum  thiết kế phòng khách, phòng ngủ và phòng thờ, sân phơi.

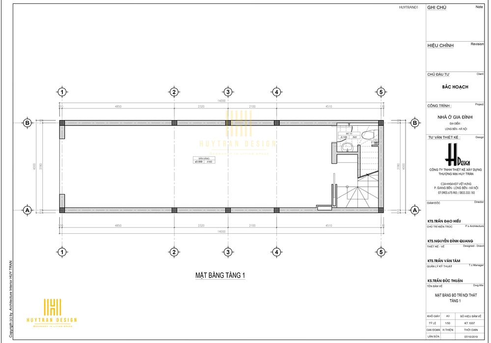
Mặt bằng tầng 1 

Mặt bằng tầng 1 được CĐT mong muốn thiết kế làm mặt bằng kinh doanh với diện tích 41m2 trong đó có 1 WC và thang bộ. Thang bộ được thiết kế góc trong cùng mang đến không gian thông thoáng hơn, tiết kiệm diện tích và phù hợp với mục đích kinh doanh.

Thiết kế nội thất tầng 1 nhà phố hiện đại kết hợp kinh doanh
Mặt bằng tầng 1 thiết kế kinh doanh

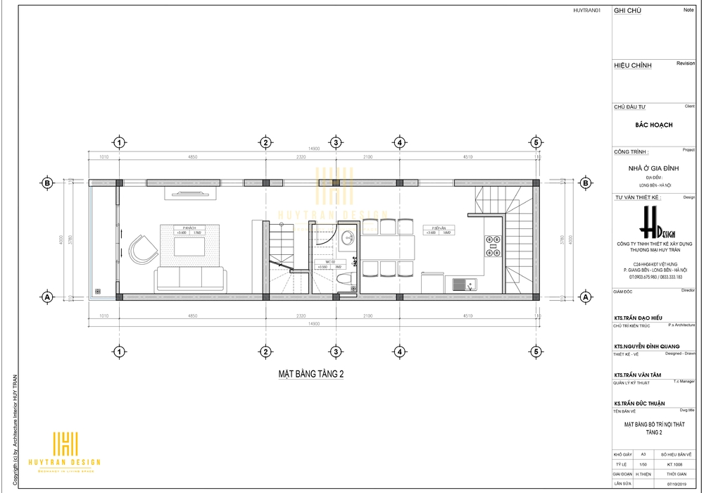
 Thiết kế mặt bằng tầng 2 

Mẫu phòng khách có cầu thang thiết kế cho không gian phòng khách hiện đại phù hợp với diện tích 15m2, 16m2 hoặc 17m2 và diện tích phòng bếp được thiết kế với diện tích tương đương phòng khách khoảng 16m2 trên cùng một mặt bằng.

 

Thiết kế nhà ống mặt bằng tầng 2 - Huytrandesign
Thiết kế mặt bằng tầng 2 với không gian phòng khách và bếp ăn

 

Nhà phố hiện đại được thiết kế nhiều cửa sổ vì vậy mặc dù chiều sâu 15m2 nhưng không gian bên trong vẫn luôn tràn ngập ánh sáng tự nhiên và tận hưởng được không khí trong lành mát mẻ.

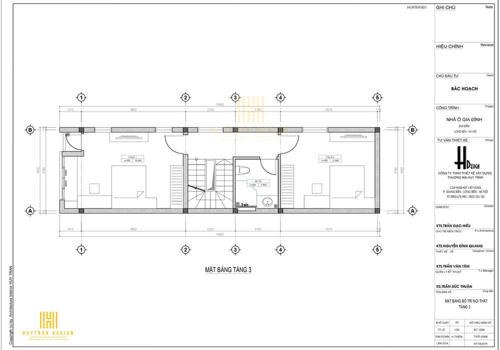
Mặt bằng tầng 3 

Mặt bằng tầng 3 của nhà phố 4 tầng được thiết kế 2 phòng ngủ với diện tích lần lượt là 18,5m2 và 15,5m2 với 1 vệ sinh chung gần cầu thang để tiết kiệm diện tích. Ngoài ra, trong phòng ngủ vẫn đảm bảo đầy đủ công năng và nhu cầu sử dụng của gia chủ.

Thiết kế nhà ống tầng 3
Mặt bằng tầng 3 thiết kế 2 phòng ngủ

Mặt bằng tầng 4 

 Mặt bằng tầng 4 được thiết kế giống mặt bằng tầng 3 với 2 phòng ngủ và 1 vệ sinh chung để đảm bảo không gian sử dụng thông thoáng phù hợp nhu cầu sử dụng và yêu cầu của CĐT bác Hoạch tại Hà Nội.

Mặt bằng tầng 4 nhà ống hiện đại - Huytrandesign
Mặt bằng tầng 4 thiết kế 2 phòng ngủ 1 WC giống mặt bằng và công năng tầng 3

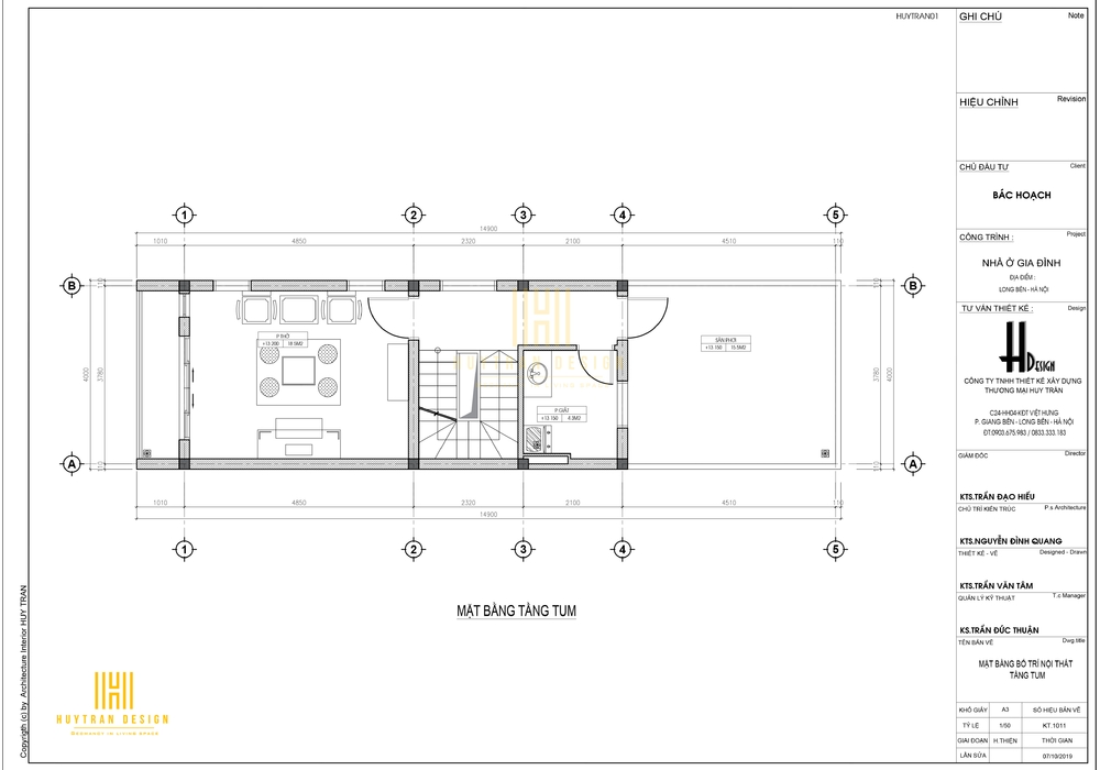
Mặt bằng công năng tầng tum 

Mặt bằng tầng tum được thiết kế sân phơi và phòng thờ để phụng sự vấn đề tâm linh đối với gia tiên tiền tổ.

Khi thiết kế phòng thờ nên lưu ý về phong thủy hướng, tuổi,... của gia chủ và một số vấn đề liên quan sẽ mang đến cho gia chủ lộc tài thăng tiến, sức khỏe dồi dào, gia đình hòa thuận. Quý khách mong muốn xem phong thủy nhà ở , tuổi tác hãy liên hệ với chúng tôi qua: 

Facebook: Công ty cổ phần kiến trúc nội thất xây dựng Huy Trần

Gmail:  huytrandesign.vn@gmail.com

Tel: 083.3333.183 (Hieu Mr) - 0813.383.183

Thiết kế nhà ống 4 tầng hiện đại
Thiết kế tầng tum cho nhà phố hiện đại

Để thiết kế riêng cho ngôi nhà của bạn hãy liên hệ với chúng tôi để được tư vấn MIỄN PHÍ 

Tel: 083.3333.183 (Hieu Mr) - 0813.383.183

Website: http://huytrandesign.vn/. 

VPGD: Sao Biển 01-134, Vinhomes Ocean Park, Gia Lâm, Hà Nội

 

Đánh giá - Bình luận
0 bình luận, đánh giá về Mẫu nhà ống 4,5 tầng mặt tiền 4m đẹp Phong cách hiện đại tại Hà Nội
Nhấn vào đây để đánh giá
Thông tin người gửi
Video
Thiết Kế Nội Thất Biệt Thự Vinhomes Ocean Park Độc Đáo
Thiết Kế Nội Thất Biệt Thự Vinhomes Ocean Park Độc Đáo
Thiết Kế Nội Thất Biệt Thự Vinhomes Ocean Park Độc Đáo
Thiết Kế Nội Thất Biệt Thự Vinhomes Ocean Park Độc Đáo
04/09/19
Thiết kế nội thất nhà phố độc đáo lạ mắt
Thiết kế nội thất nhà phố độc đáo lạ mắt
11/09/19
VTV Vingroup tiết lộ về bất động sản VinCity
VTV Vingroup tiết lộ về bất động sản VinCity
21/03/19
Cuốn hút với Thiết kế Biệt thự Hoa Sữa Vinhomes Riverside
Cuốn hút với Thiết kế Biệt thự Hoa Sữa Vinhomes Riverside
03/09/19
Chúng tôi có thể hỗ trợ bạn!
0.15367 sec| 2604.352 kb