Mẫu nội thất nhà phố hiện đại thiết kế theo xu hướng mới nhất năm 2022

Tổng quan
Ưu điểm Mẫu nội thất nhà phố hiện đại thiết kế theo xu hướng mới nhất năm 2022

Ngoại thất, mặt bằng và công năng nội thất nhà phố hiện đại 3 tầng.

Ngoại thất nhà phố mặt tiền 3m

Thiết kế nội thất nhà phố mặt tiền 3m  hiện đại, đơn giản nhưng để sắp xếp nội thất sao cho hợp lý nhất, thuận tiện nhất thì tất cả đều nhờ vào đôi bàn tay tài hoa, khéo léo của KTS Huytrandesign. Thiết kế nội thất nhà phố hiện đại 3 tầng với thiết kế đơn giản, bắt mắt, chi phí rẻ mang đến thiết kế theo xu hướng mới nhất 2022.

Thiết kế nội thất nhà phố hiện đại -Huytrandesign
Ngoại thất nhà phố 3 tầng hiện đại với mặt tiền 3m

Thiết kế nhà hiện đại 3 tầng ngoại thất ốp đá cẩm thạch kết hợp đá kẻ ngang nâu toát lên vẻ đẹp sang trọng, khỏe khoắn. Ban công tầng 2 và tầng mái được điểm thêm một chút hoa cảnh trang trí, điểm tô thêm một chút sắc màu giúp không gian nhà phố trở nên tươi mới hơn.

Thiết kế nhà phố 3 tầng hiện đại - Huytrandesign
Ngoại thất nhà phố mặt tiền 3m

Mặt bằng và công năng nội thất

Thiết kế nội thất phòng khách nhà ống phù hợp với diện tích 14m2. Khi thiết kế nhà phố để ở thì phần trước nhà thường thiết kế thêm chỗ để xe để phục vụ nhu cầu thiết yếu của gia đình. Tầng 1 nhà phố thiết kế không gian phòng khách và không gian bếp ăn hiện đại. Phòng bếp và phòng ăn thiết kế đơn giản nhỏ nhắn với 11m2, đủ dùng cho nhu cầu sinh hoạt trong gia đình.

Nội thất nhà phố 3 tầng hiện đại
Mặt bằng công năng tầng 1 và tầng 2 nhà phố 3 tầng hiện đại.

Tầng 2 được thiết kế 2 phòng ngủ lần lượt là 9,5m2 và 14m2. Với những thiết kế nhà phố cho không gian hẹp thì thiết kế giếng trời lấy sáng và hút gió là điều cần thiết đối với nhà có không gian hẹp.

Thiết kế nội thất nhà phố hiện đại 3 tầng
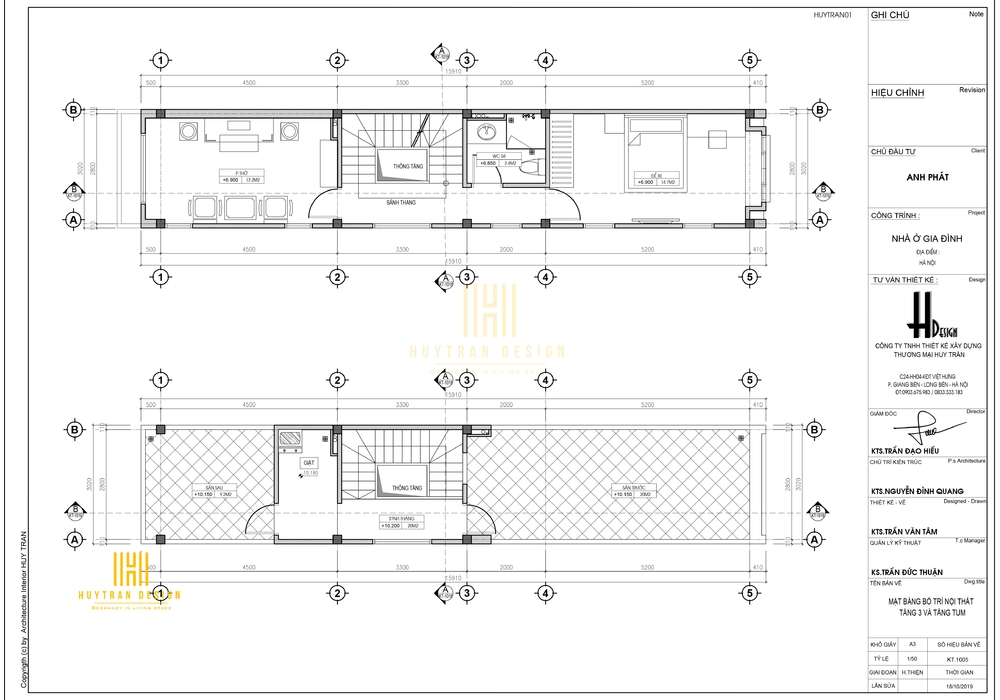
Mặt bằng tầng 3 và mặt bằng tầng thượng nhà phố hiện đại

 Không gian và mặt bằng tầng 3 được thiết kế 1 phòng ngủ và 1 phòng thờ. Tầng thượng được thiết kế khoảng sân rộng rãi thoáng mát có thể hóng gió và phơi đồ trong khoảng sân rộng rãi.

Trang trí không gian nội thất nhà phố hiện đại đơn giản, đẹp.

Thiết kế không gian phòng khách.

Không gian phòng khách 14m2 được thiết kế 1 bộ sofa êm ái màu trắng ngà, bàn trà được thiết kế đơn giản hình vuông khung sắt. Kèm theo đó sử dụng đèn thả trần xương cá chao thủy tinh mang đến vẻ đẹp lung linh cho phòng khách diện tích nhỏ. Thiết kế phòng khách hiện đại với kệ trang trí ngăn cách tinh tế giữa không gian phòng khách và cầu thang, kệ lửng sau ghế Sofa dài vừa trang trí vừa có thể trưng bày đồ. Bên cạnh phòng khách được thiết kế một khoảng sân nhỏ để xe phục vụ nhu cầu thiết yếu của cả gia đình.

Thiết kế phòng khách Hiện đại 3 tầng
Hình ảnh phối cảnh phòng khách tại tầng 1

Vách ốp tivi được thiết kế tấm nhựa PVC Giả vân đá cao cấp vừa có thể tiết kiệm vừa trang trí phù hợp với không gian căn phòng. Cạnh đó, sử dụng lam gỗ trang trí hỗ trợ không gian phòng khách thêm phần tinh tế.

Thiết kế không gian nội thất phòng khách hiện đại
Thiết kế nội thất không gian phòng khách 

 Thiết kế không gian phòng bếp

Không gian phòng bếp và phòng ăn được thiết kế thông thoáng với hệ cửa kính lớn. Màu sắc hài hòa nhẹ nhàng không quá chói chang của không gian bếp ăn, màu xanh tươi mát của rèm và tủ bếp giúp không gian trở nên hài hòa hơn, nhẹ nhàng hợp phong thủy hơn.

Thiết kế nội thất phòng bếp nhà phố hiện đại
Không gian bếp và không gian ăn của gia đình

Không gian phòng ăn thông thoáng sử dụng bộ bàn ghế ăn tinh tế bo viền mềm mại, bộ ghế gỗ thịt bọc nỉ đơn giản, hiện đại màu sắc sáng sủa. 

Thiết kế không gian phòng bếp ăn nhà phố
Phối cảnh không gian phòng ăn
Tủ giầy decor nhà cửa cho nhà phố diện tích nhỏ hiện đại
Tủ giầy tầng 1 decor nhà cửa thêm phần tinh tế

 Phối cảnh phòng ngủ nhà phố

Phòng ngủ Master

Nội thất sử dụng gỗ tự nhiên mộc mạc, nhìn vào người ta có thể thấy được sự đơn xơ, giản dị trên từng chi tiết mà vẫn đảm bảo được công năng sử dụng và thân thiện với môi trường. Màu sắc trắng kết hợp xanh da trời tạo nên không gian mát mẻ, nhẹ nhàng, bình yên.

Thiết kế nội thất phòng ngủ Master nhà phố
Phối cảnh phòng ngủ tầng 2 phòng ngủ Master

Nội thất được thiết kế hiện đại, đơn giản tuy mộc mạc nhưng rất chắc chắn, thân thiện với môi trường. Nội thất được sắp xếp gọn gàng hợp lý với phòng ngủ diện tích nhỏ 14m2. Chiều rộng có đôi chút hẹp vậy nên việc sắp xếp nội thất và lấy sáng  làm sao cho không gian thông thoáng, sạch sẽ cũng là vấn đề rất cần lưu ý và quan tâm.

Thiết kế phòng ngủ Master nhà phố hiện đại
Nội thất phòng ngủ Master

Phòng ngủ con tầng 2 

 Thiết kế phòng ngủ con nhỏ nhắn, xinh xắn chỉ với 9,5m2 mà vẫn đảm bảo được nội thất đầy đủ cho không gian riêng của bé để bé vẫn đảm bảo được không gian ngủ nghỉ, học tập và sáng tạo. thiết kế nội thất phòng bé, design phòng ngủ nhỏ cũng sử dụng màu trắng kết hợp màu xanh da trời mát mẻ, sáng sủa tạo nên không gian thông thoáng.

Nhãn

 Thiết kế phòng ngủ trẻ em thường thiết kế không gian thơ mộng hay những không gian giúp bé có khả năng sáng tạo. Vì vậy, diện tường trang trí ốp gỗ kết hợp giấy dán tường hình ngôi sao vừa tạo nên sự lung linh vừa mang đến sự tò mò, khám phá cho bé.

Nhà phố hiện đại- thiết kế phòng ngủ bé Huytrandesign
Thiết kế phòng ngủ bé với không gian thông thoáng

Thiết kế phòng thờ tầng 3 

Nội thất phòng thờ tầng 3 thiết kế nhỏ gọn theo phong cách Á Đông, bàn thờ thiết kế bằng gỗ thịt mộc mạc, tường treo tranh phật, kết hợp tranh hoa tứ quý treo tường mang đến không gian trang trọng.

Thiết kế nội thất nhà phố hiện đại - phòng thờ
Nội thất phòng thờ tầng 3 nhà phố hiện đại.

Để thiết kế riêng cho ngôi nhà của bạn hãy liên hệ với chúng tôi để được tư vấn MIỄN PHÍ 

Tel: 083.3333.183 (Hieu Mr) - 0813.383.183

Website: http://huytrandesign.vn/. 

VPGD: Sao Biển 01-134, Vinhomes Ocean Park, Gia Lâm, Hà Nội

 

Đánh giá - Bình luận
0 bình luận, đánh giá về Mẫu nội thất nhà phố hiện đại thiết kế theo xu hướng mới nhất năm 2022
Nhấn vào đây để đánh giá
Thông tin người gửi
Video
Thiết Kế Nội Thất Biệt Thự Vinhomes Ocean Park Độc Đáo
Thiết Kế Nội Thất Biệt Thự Vinhomes Ocean Park Độc Đáo
Thiết Kế Nội Thất Biệt Thự Vinhomes Ocean Park Độc Đáo
Thiết Kế Nội Thất Biệt Thự Vinhomes Ocean Park Độc Đáo
04/09/19
Thiết kế nội thất nhà phố độc đáo lạ mắt
Thiết kế nội thất nhà phố độc đáo lạ mắt
11/09/19
VTV Vingroup tiết lộ về bất động sản VinCity
VTV Vingroup tiết lộ về bất động sản VinCity
21/03/19
Cuốn hút với Thiết kế Biệt thự Hoa Sữa Vinhomes Riverside
Cuốn hút với Thiết kế Biệt thự Hoa Sữa Vinhomes Riverside
03/09/19
Chúng tôi có thể hỗ trợ bạn!
0.17560 sec| 2632.422 kb