Thiết kế biệt thự 2 tầng Tân cổ điển mới nhất năm 2022

Tổng quan
Chủ đầu tư
Anh Dũng
Địa điểm
Thạch Bàn, Long Biên
Số tầng
2 tầng 1 tum
Diện tích đất
192m2
Các phòng
Phòng khách, phòng ăn, 4 phòng ngủ, sân kho, phòng giặt
Đơn vị thực hiện
Huytrandesign
Năm thi công
2020
Ưu điểm Thiết kế biệt thự 2 tầng Tân cổ điển mới nhất năm 2022

Thiết kế ngoại thất biệt thự 2 tầng tân cổ điển mái ngói thái tại Hà Nội

Thiết kế thi công biệt thựnhà phốcải tạo biệt thự Vinhomes trọn gói là một trong những lĩnh vực chuyên môn của Huytrandesign. KTS Huytrandesign là những cá nhân có chuyên môn với nhiều năm kinh nghiệm Huytrandesign đã tạo niềm tin và sự hài lòng đến hàng ngàn khách hàng tại Hà Nội và các tỉnh lân cận. Dưới đây là mẫu thiết kế biệt thự 2 tầng tân cổ điển đẹp mời quý vị tham khảo.

Thiết kế biệt thự 2 tầng tân cổ điển
Phối cảnh ngoại thất biệt thự 2 tầng tân cổ điển

 Mẫu biệt thự 2 tầng mái thái phong cách tân cổ điển đẹp tại Thạch Bàn, Long Biên với diện tích mặt bằng đất 95m2 thiết kế biệt thự mặt phố có sử dụng hệ thống cổng và hàng rào sắt lan hoa nghệ thuật tinh tế phù hợp với cổng biệt thự Tân cổ điển. Hệ thống cửa kính luôn là sự lựa chọn tuyệt vời trong nhiều năm gần đây, đặc biệt là những nhà có diện tích nhỏ sẽ mang đến không gian thông thoáng và rộng rãi hơn.

Thiết kế biệt thự 2 tầng tân cổ điển
Biệt thự 2 tầng 1 tum mái thái kết hợp tiểu cảnh cây xanh

 

thiết kế nội that biệt thự tân cổ điển
công ty thiết kế xây dựng biệt thự

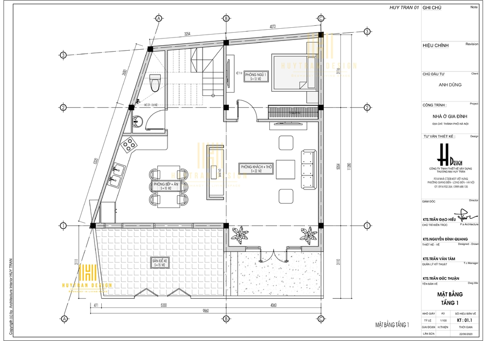
 Mặt bằng công năng biệt thự 2 tầng tân cổ điển 4 phòng ngủ.

Mặt bằng tầng 1

Mặt bằng tầng 1 bao gồm:

+ 01 phòng khách và phòng thờ diện tích 22m2

+ 01 bếp ăn diện tích 15m2

+ 01 vệ sinh diện tích 3.6m2

+ 01 phòng ngủ diện tích 13m2

Thiết kế nội thất biệt thự 2 tầng sang trọng với cách sắp xếp khoa học, hợp lý. Diện tích đất tầng 1 là 92m2 có thiết kế sân để xe và hiên nhà lớn có trang trí cây hoa tiểu cảnh. Vì diện tích đất chéo, không vuông là một điều bất lợi cho KTS khi thiết kế nhà. Nhưng với đôi bàn tay tài hoa và cách xử lý thông minh của KTS Huytrandesign các không gian phòng được sắp xếp gọn gàng thông thoáng với không gian mở tinh tế.

Thiết kế nội thất biệt thự công năng tầng 1
Mặt bằng tầng 1

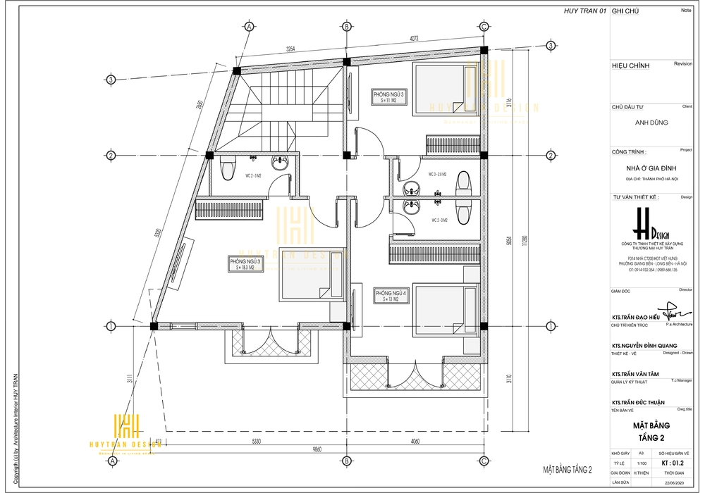
Thiết kế mặt bằng tầng 2

Tầng 2 bao gồm:

+ 03 phòng ngủ với diện tích lần lượt là 18,3m2, 13m2, 11m2

+ 03 vệ sinh diện tích mỗi phòng là 3m2

Để thuận tiện nhu cầu cá nhân của từng thành viên trong gia đình thì tầng 2 được thiết kế 3 phòng ngủ khép kín với 3 nhà vệ sinh riêng vẫn đảm bảo được không gian tiêu chuẩn khi sử dụng avf ngủ nghỉ.

Thiết kế mặt bằng biệt thự tầng 2
Mặt bằng tầng 2 với 3 phòng ngủ

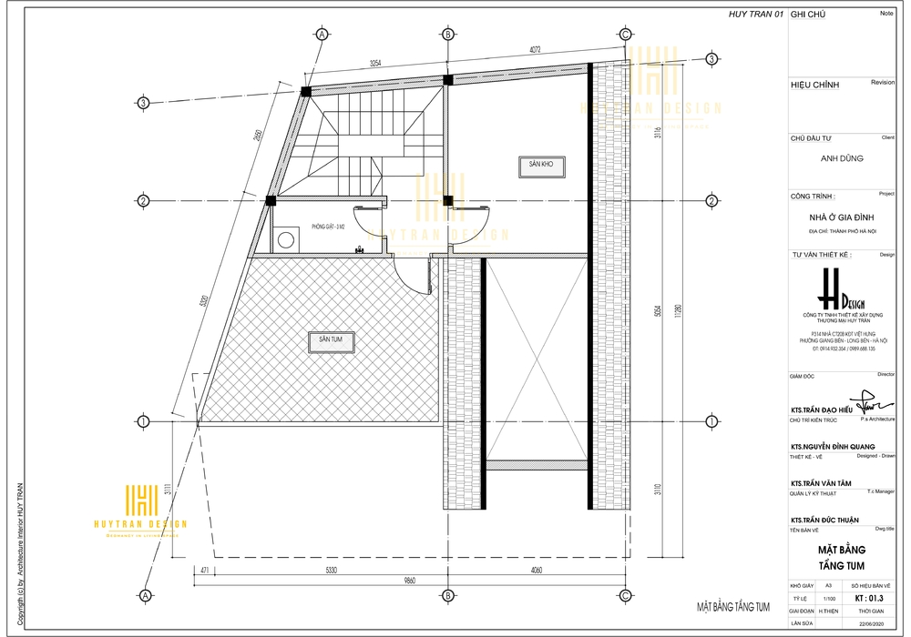
Mặt bằng tầng tum

Mặt bằng tầng tum bao gồm:

+ 01 phòng kho diện tích 9.2m2

+ 01 phòng giặt diện tích 3m2

+ 01 sân phơi diện tích 19m2

Thiết kế phòng kho tầng 3 để đồ diện tích 9.2m2 vừa gọn gàng cho ngôi nhà mà về thầm mỹ ngôi nhà cũng cao ráo thoáng mát hơn.

Thiết kế biệt thự 2 tầng tân cổ điển
Thiết kế tầng tum có sân phơi thông thoáng mái thái

Bạn đang mong muốn xây nhà phố, biệt thự sân vườn, thi công và cải tạo Biệt thự Tân cổ điển Vinhomes, thiết kế nội thất Shophouse, thiết kế biệt thự Tân cổ điển cho thuê. Hãy liên hệ với chúng tôi để được tư vấn MIỄN PHÍ 24/7: thiết kế, thi công, sửa chữa nhà cửa, biệt thự, biệt thự Vinhomes nhà hàng, sân vườn tiểu cảnh Huytrandesign – thiết kế biệt thự tân cổ điển khu vực Long Biên, Gia Lâm (Hà Nội) và các tỉnh thành miền Bắc.

Để thiết kế riêng cho ngôi nhà của bạn hãy liên hệ với chúng tôi để được tư vấn MIỄN PHÍ 

Tel: 083.3333.183 (Hieu Mr) - 0813.383.183

Website: http://huytrandesign.vn/. 

VPGD: Sao Biển 01-134, Vinhomes Ocean Park, Gia Lâm, Hà Nội

 

Đánh giá - Bình luận
0 bình luận, đánh giá về Thiết kế biệt thự 2 tầng Tân cổ điển mới nhất năm 2022
Nhấn vào đây để đánh giá
Thông tin người gửi
Video
Thiết Kế Nội Thất Biệt Thự Vinhomes Ocean Park Độc Đáo
Thiết Kế Nội Thất Biệt Thự Vinhomes Ocean Park Độc Đáo
Thiết Kế Nội Thất Biệt Thự Vinhomes Ocean Park Độc Đáo
Thiết Kế Nội Thất Biệt Thự Vinhomes Ocean Park Độc Đáo
04/09/19
Thiết kế nội thất nhà phố độc đáo lạ mắt
Thiết kế nội thất nhà phố độc đáo lạ mắt
11/09/19
VTV Vingroup tiết lộ về bất động sản VinCity
VTV Vingroup tiết lộ về bất động sản VinCity
21/03/19
Cuốn hút với Thiết kế Biệt thự Hoa Sữa Vinhomes Riverside
Cuốn hút với Thiết kế Biệt thự Hoa Sữa Vinhomes Riverside
03/09/19
Chúng tôi có thể hỗ trợ bạn!
3.19866 sec| 2608.984 kb