Mẫu thiết kế biệt thự 3 tầng mái thái tân cổ điển đẹp nhất năm 2022

Chủ đầu tư không yêu cầu quá cao về ngôi nhà nhưng điều anh  mong muốn ở chúng tôi đó là thiết kế toát lên được nét cổ điển , phóng khoáng, sang trọng và tỉ mỉ  từng chi tiết. Huytrandesign luôn luôn tôn trọng khách hàng, khi thiết kế công trình về mẫu biệt thự Tân cổ điển Kiến trúc sư và kỹ sư xây dựng của chúng tôi luôn có sự sáng tạo, có gu thẩm mĩ tinh tế, kỹ thuật phải chuyên nghiệp. Kèm theo đó Kiến trúc sư và Kỹ sư xây dựng đều là những người có kinh nghiệm về những dự án thiết kế biệt thự, thiết kế biệt thự Tân cổ điển, thiết kế biệt thự hiện đại, thiết kế nhà ống theo phong cách Tân cổ điển,... 

Tổng quan
Chủ đầu tư
Anh Duẩn
Địa điểm
Nam Định
Số tầng
3 tầng
Diện tích đất
220m2
Đơn vị thực hiện
Huytrandesign
Năm thi công
2020
Ưu điểm Mẫu thiết kế biệt thự 3 tầng mái thái tân cổ điển đẹp nhất năm 2022

Ngoại thất biệt thự 3 tầng mái thái phong cách tân cổ điển cao cấp tại nông thôn.

Thiết kế biệt thự 3 tầng mái thái cao cấp ở nông thôn đang là xu hường hiện nay. Mẫu biệt thự đẹp giản lược những hoa văn họa tiết cầu kỳ, tạo hình vững chắc, hình khối rõ ràng dựng nên hệ thống mảng miếng đặc sắc cho thiết kế nhà đẹp từ mọi góc nhìnSở hữu sức hút đỉnh cao của nghệ thuật xếp đặt, lối trang trí tỉ mỉ mà không nặng nề, kiến trúc tân cổ điển vĩnh viễn mang vẻ đẹp bền bỉ với thời gian, tạo nên nét quyến rũ, tráng lệ trong mỗi thiết kế nhà mà nó hiện hữu.

Thiết kế ngoại thất biệt thự 3 tầng
Nhà biệt thự 3 tầng kết hợp hệ thống cửa gỗ tự nhiên phối kính có họa tiết hoa văn cao cấp

Sử dụng màu sơn trắng sứ màu đặc trưng phong cách tân cổ điển càng làm nổi bật lên những họa tiết hoa văn, chỉ đắp nổi. Màu trắng thể hiện sự tinh khôi, trong sáng, sang trọng và thoáng đãng đậm chất Châu Âu 

Thiết kế ngoại thất biệt thự 3 tầng
Biệt thự 3 tầng tân cổ điển giản lược hoa văn phào chỉ vẫn giữ được nét đẹp khỏe khoắn, tinh tế và sang trọng.

Thiết kế biệt thự 3 tầng đẹp mái thái có sân vườn rộng rãi, ngoài cửa chính KTS Huytrandesign thiết kế thêm cửa bên hông nhà kết hợp nhiều cửa sổ kính khung gỗ sang trọng giúp không gian sống thông thoáng hơn chiếm trọn ánh sáng tự nhiên thân thiện với môi trường. Thiết kế sử dụng ban công lan hoa nghệ thuật góc vuông và bo tròn tinh tế đồng bộ với mái kính khung sắt hiện đại nổi bật trên nền màu trắng tổng thể.

Thiết kế ngoại thất biệt thự 3 tầng
Phối cảnh ngoại thất sử dụng nhiều cửa thông thoáng đặc trưng phong cách Tân cổ điển

Thiết kế biệt thự 3 tầng mái thái thường là sự lựa chọn của các chủ đầu tư về mặt thẩm mỹ cũng như phù hợp với khí hậu Việt Nam. Mái thái là sự kết hợp giữa hai nền văn hóa Á - Âu nó mang đến những vẻ đẹp phóng khoáng, mạnh mẽ khi thiết kế nhà với phong cách tân cổ điển lại mang đến sự sang trọng, thanh lịch và vô cùng tinh tế. 

Thiết kế ngoại thất biệt thự 3 tầng
Sử dụng mái thái cho biệt thự là xu hướng được nhiều người ưa chuộng

Thiết kế mặt bằng và công năng khoa học cho biệt thự 3 tầng mái thái

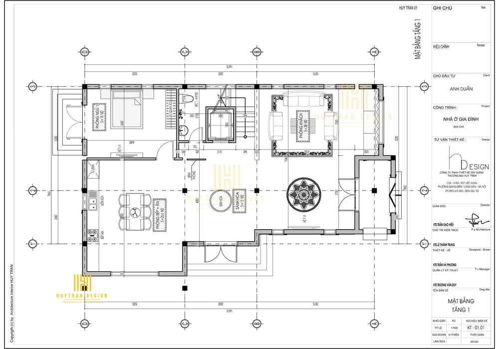
Thiết kế mặt bằng tầng 1

Thiết kế biệt thự 3 tầng mái thái có công năng tầng 1 phù hợp với diện tích 6x14m, 6x15m, 7x14m, 7x15m, 8x14m, 8x15m,... :

+ Phòng khách diện tích 38m2

+ Sảnh hoa diện tích 13m2

+ Thang máy kết hợp thang bộ

+ Nhà vệ sinh chung diện tích 4.4m2

+ Phòng bếp, phòng ăn diện tích 26.6m2

+ Phòng ngủ diện tích 15m2

Sàn tầng 1 diện tích 120m2 bước từ cửa chính vào là sảnh, bên phải sảnh là phòng khách  rộng rãi, thoáng mát. Thông với sảnh chính là sảnh hoa cạnh sảnh hoa thiết kế hệ thống thang máy và thang bộ và có 1 nhà vệ sinh chung dưới gầm thang vừa tiết kiệm không gian mà vẫn đảm bảo đày đủ công năng sử dụng khi đang sinh hoạt tại tầng 1. Từ sảnh hoa tiến sâu vào trong là phòng bếp và không gian ăn, Thiết kế bếp hình chữ I gồm bếp từ, bồn rửa đôi, tủ lạnh, bộ bàn ghế ăn 6 ghế ngồi. Bên phải phòng bếp là phòng ngủ 1 nhỏ thường thiết kế cho người lớn tuổi.

Thiết kế mặt bằng biệt thự
Mặt bằng nội thất khoa học cho biệt thự

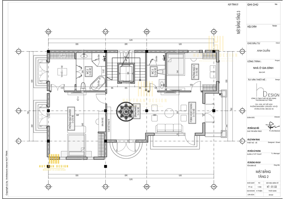
Mặt bằng tầng 2

Thiết kế không gian tầng 2 gồm không gian sinh hoạt chung và không gian ngủ:

+ Sảnh thang diện tích 16.6m2

+ Phòng sinh hoạt chung diện tích 17.4m2

+ Phòng ngủ 3 diện tích 14.5m2

+ Vệ sinh chung diện tích 5.4m2

+ Phòng ngủ Master diện tích 47m2.

Thông thường khi thiết kế những nhà biệt thự 3 tầng mái thái đẹp thì tầng 2 thường là không gian sinh hoạt riêng và phòng ngủ. Không gian sinh hoạt chung có 2 ban công thông thoáng, không gian sinh hoạt chung có thể tổ chức sự kiện gia đình nhỏ, có thể nói chuyện tâm sự, giải trí sau ngày làm việc mệt mỏi. Thiết kế phòng ngủ Master lớn bao gồm không gian ngủ lớn có giường, bàn làm việc trong phòng ngủ sẽ yên tĩnh và tập trung hơn khi làm việc. Thiết kế phòng thay đồ trong phòng ngủ có tủ quần áo và nhà vệ sinh khép kín phù hợp với đôi vợ chồng trẻ yêu thích sự tiện nghi. Phòng ngủ nhỏ gồm giường, bộ ghế nghỉ ngơi, 2 tủ quần áo nhỏ và 1 bộ bàn trang điểm.

Thiết kế mặt bằng biệt thự
Thiết kế mặt bằng tầng 2 biệt thự 3 tầng mái thái

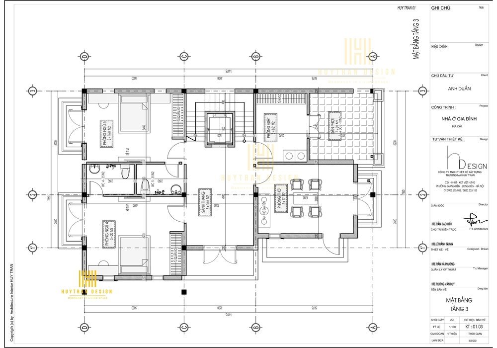
Thiết kế nội thất tầng 3

Tầng 3 thiết kế bao gồm:

+ Sảnh thang tầng 3 diện tích 16.6m2

+ Phòng ngủ 4 diện tích 20m2

+ Phòng ngủ 5 diện tích 16.8m2

+ Phòng thờ diện tích 17m2

+ Phòng giặt diện tích 8.2m2

+ Sân phơi diện tích 10m2

Thiết kế mang đến sự khoa học, tiện nghi đảm bảo được đầy đủ không gian sinh hoạt riêng, không gian sinh hoạt chung của từng thành viên đồng thời thiết kế sân phơi mái kính phù hợp nhu cầu nội trợ.

Thiết kế mặt bằng biệt thự
Mặt bằng công năng tầng 3 gồm phòng thờ, 2 phòng ngủ khép kín, phòng giặt và sân phơi

Để thiết kế riêng cho ngôi nhà của bạn hãy liên hệ với chúng tôi để được tư vấn MIỄN PHÍ 

Tel: 083.3333.183 (Hieu Mr) - 0813.383.183

Website: http://huytrandesign.vn/. 

VPGD: Sao Biển 01-134, Vinhomes Ocean Park, Gia Lâm, Hà Nội

Đánh giá - Bình luận
0 bình luận, đánh giá về Mẫu thiết kế biệt thự 3 tầng mái thái tân cổ điển đẹp nhất năm 2022
Nhấn vào đây để đánh giá
Thông tin người gửi
Video
Thiết Kế Nội Thất Biệt Thự Vinhomes Ocean Park Độc Đáo
Thiết Kế Nội Thất Biệt Thự Vinhomes Ocean Park Độc Đáo
Thiết Kế Nội Thất Biệt Thự Vinhomes Ocean Park Độc Đáo
Thiết Kế Nội Thất Biệt Thự Vinhomes Ocean Park Độc Đáo
04/09/19
Thiết kế nội thất nhà phố độc đáo lạ mắt
Thiết kế nội thất nhà phố độc đáo lạ mắt
11/09/19
VTV Vingroup tiết lộ về bất động sản VinCity
VTV Vingroup tiết lộ về bất động sản VinCity
21/03/19
Cuốn hút với Thiết kế Biệt thự Hoa Sữa Vinhomes Riverside
Cuốn hút với Thiết kế Biệt thự Hoa Sữa Vinhomes Riverside
03/09/19
Chúng tôi có thể hỗ trợ bạn!
0.24546 sec| 2618.008 kb