Mẫu nhà phố hiện đại đẹp đơn giản với 2 mặt tiền- Đức Giang, Long Biên

Tổng quan
Địa điểm
Đức Giang, Long biên
Ưu điểm Mẫu nhà phố hiện đại đẹp đơn giản với 2 mặt tiền- Đức Giang, Long Biên

Ngoại thất nhà phố hiện đại 4 tầng 1 tum nhà anh Hiệp tại Đức Giang, Long Biên

 Mẫu nhà phố hiện đại mặt tiền 8m thiết kế kiến trúc bên ngoài của nhà 4 tầng 1 tum hay được gọi là thiết kế mẫu nhà 1 trệt 3 lầu hiện đại, kết hợp giữa hai màu chủ đạo, tường trắng và gạch ốp màu nâu cùng với hệ cửa nhôm kính xingfa màu nâu đen. Ý tưởng thiết kế được đặc tả bằng những ô cửa đa dạng hình khối khiến cho tổng thể thiết kế nhà phố hiện đại toát lên vẻ đẹp vô cùng nghệ thuật, lịch lãm và sang trọng.

Thiết kế ngoại thất nhà phố hiện đại
Ngoại thất nhà phố hiện đại tại Đức Giang, Long Biên

 Dựa theo tính cách và yêu cầu của chủ nhà, đồng thời kết hợp chắt lọc các yếu tố phong thủy phù hợp nhất với anh, đội ngũ kiến trúc sư chuyên nghiệp cũng là những chuyên gia phong thủy của Huytrandesign đã dựng lên mẫu thiết kế nhà phố gồm 4 tầng mang những đặc trưng khác nhau có thể dễ dàng nhìn thấy nhưng vẫn đảm bảo một tổng thể hài hòa, hút ánh nhìn dưới mọi góc độ.

Thiết kế ngoại thất nhà phố hiện đại
Ngoaị thất nhà phố 4 tầng hiện đại khỏe khoắn nhưng vẫn mang đến vẻ đẹp lịch lãm và sang trọng.

Mặt bằng và công năng nhà phố hiện đại với nhà mặt tiền 8m

Những mẫu nhà phố đẹp hiện đại mang đến sự đơn giản và phóng khoáng nhưng khi thiết kế diện tích vuông vắn là điều dễ dàng cho KTS. Nhưng với mảnh đất không được vuông vắn kết hợp bị cắt dọc sẻ ngang thì việc phân tích kỹ lưỡng sắp xếp công năng và mặt bằng là điều rất quan trọng.

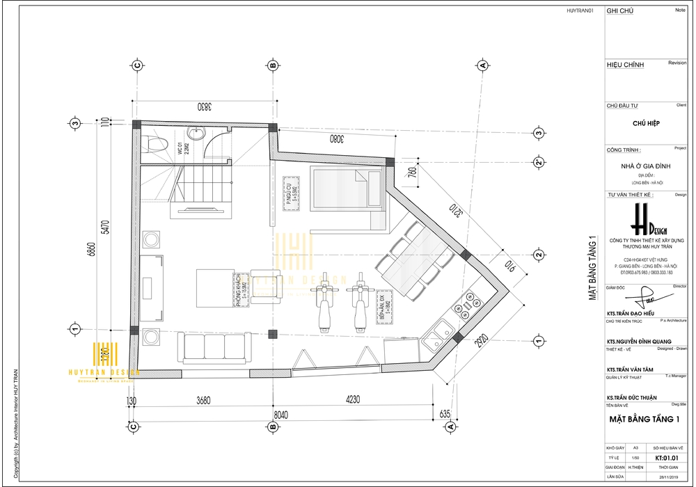
Mặt bằng tầng 1

 Thiết kế nhà phố đẹp hiện đại 7 phòng ngủ phù hợp với gia đình sống đa thế hệ hoặc có thể thiết kế cho thuê trọ. Nhưng khi thiết kế nhà phố 4 tầng hiện đại tại Đức Giang thì gia chủ muốn thiết kế ngôi nhà phù hợp với gia đình đa thế hệ, tầng 1 có phòng ngủ nhỏ giành cho cụ.

Mặt bằng tầng 1 bao gồm 1 phòng khách 15.5m2, phòng bếp 18m2, phòng ngủ nhỏ dành cho cụ 5.5m2.

Thiết kế công năng mặt bằng tầng 1 nhà phố
Mặt bằng công năng nhà phố tầng 1 

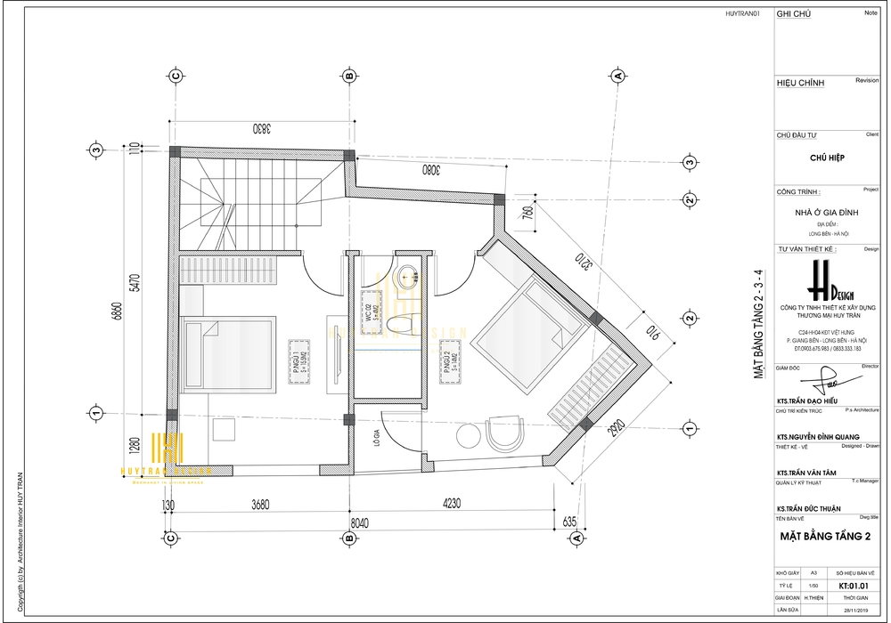
Mặt bằng tầng 2 nhà phố hiện đại.

Mặt bằng tầng 2 với diện tích và mặt bằng không mấy thuận lợi thì thiết kế 2 phòng ngủ có một khoảng ban công nhỏ lấy sáng tự nhiên và không khí trong lành cho toàn bộ căn phòng. Các tầng 2,3,4 đều có thiết kế giống nhau là 2 phòng ngủ có ban công, 1 phòng vệ sinh chung cho từng tầng và 2 phòng ngủ có diện tích lần lượt là 14m2 và 15.5m2.

Thiết kế mặt bằng tầng 2 nhà phố hiện đại
Mặt bằng tầng 2 nhà phố

 Thiết kế mặt bằng tầng 3

Mặt bằng tầng 3 nhà phố hiện đại 4 tầng
Thiết kế mặt bằng tầng 3 nhà phố 4 tầng hiện đại đẹp

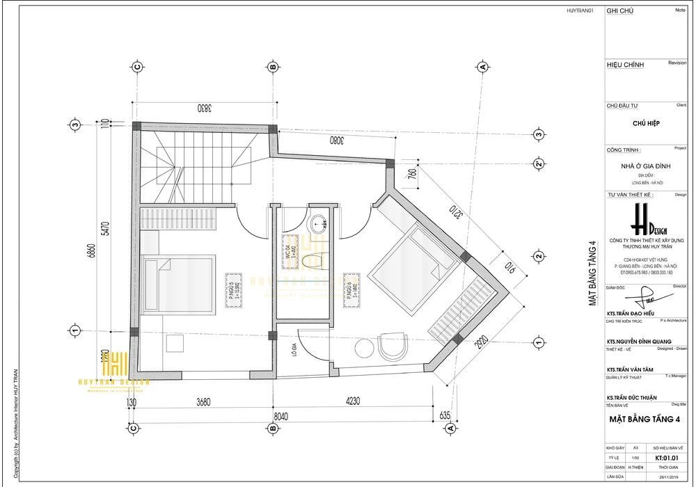
Mặt bằng tầng 4 

Mặt bằng tầng 4 nhà phố hiện đại đẹp
Mặt bằng tầng 4 có thiết kế giống tầng 2,3

 Mặt bằng tầng tum

 Tầng tum được thiết kế khoảng sân thượng rộng 40.5m2 là khoảng sân rộng có thể sử dụng phơi đồ thoải mái, không chỉ thế buổi tối còn có thể ngắm cảnh, hóng gió và tổ chức một số sự kiện nhỏ của gia đình

Thiết kế tầng tum nhà phố
Tầng tum nhà phố hiện đại

Hạng mục đầu tư, thi công và phương thức thực hiện thiết kế trọn gói của Huy Trần Design:

- Khi tính được chi phí thiết kế văn phòng phải phụ thuộc vào tùy từng chất liệu thiết bị và vật liệu CĐT chọn.

- Xây thô: 1,9~2,1tr/m2

- Điện nước âm tường trọn gói: 500~1tr/m2

- Sơn bả: 80~120k/m2

- Thạch cao: 250~290k/m2

- Điều hòa: 600-1tr/m2

Tiến độ thiết kế thực hiện chia làm 3 giai đoạn:

Giai đoạn 1: Thiết kế ý tưởng sơ bộ

Giai đoạn 2: Phát triển ý tưởng + chỉnh sửa theo ý kiến nhà đầu tư.

Giai đoạn 3: Nghiệm thu + Bàn giao hồ sơ

Phương thức thực hiện:

- Lên phương án mặt bằng công năng sử dụng.

- Mặt bằng công năng các tầng, ghi chú chi tiết đồ nội thất liên quan.

- Sau khi thống nhất phương án mặt bằng, công năng. Bên thiết kế phải triển khai phối cảnh 3D concept theo phương án đã được duyệt.

- Phối cảnh 3D tất cả các phòng liên quan.

- Phối cảnh 3D tổng quan công trình.

- Thống nhất các màu sắc chất liệu, kết xuất thành file ảnh để rõ về màu sắc ánh sáng.

- Triển khai HS bản vẽ kỹ thuật.

- Trong quá trình thi công bên Huy Trần Design phải cử 1 kiến trúc sư chuyên trách giám sát thi công với thời gian ít nhất 2 lần/1 tháng từ lúc bắt đầu đến khi kết thúc công trình phải giải quyết ngay các vấn đề phát sinh trong quá trình thi công.

Giá thiết kế nhà trọn gói

HUY TRẦN XIN GỬI TỚI QUÝ KHÁCH BẢNG BÁO GIÁ THIẾT KẾ ( Nếu kết hợp thi công trọn gói thì giá thiết kế được (Giảm 50%- 100%))

CÔNG TRÌNH DIỆN TÍCH CƠ BẢN ĐẶC BIỆT

NHÀ PHỐ

<300 m2 200.000đ/m2 250.000đ/m2
300-500 m2 180.000đ/m2 230.000đ/m2
>500 m2 150.000đ/m2 210.000đ/m2

BIỆT THỰ HIỆN ĐẠI

<300 m2 250.000đ/m2 300.000đ/m2
300-500 m2 230.000đ/m2 280.000đ/m2
>500 m2 210.000đ/m2 260.000đ/m2

BIỆT THỰ CỔ ĐIỂN - TÂN CỔ ĐIỂN

<300 m2 280.000đ/m2 350.000đ/m2
300 500 m2 260.000đ/m2 320.000đ/m2
>500 m2 240.000đ/m2 300.000đ/m2

Quy định chung của Huytrandesign

Đồng nhất vật liệu sử dụng cho các vị trí tương đồng về thiết kế.

- Đảm bảo quy trình làm và tiến độ – không ảnh hưởng đến các việc chung.

- Các đội thợ thi công trên công trình phải xác nhận về công việc làm trong ngày cho bộ phận giám sát và tổ chức.

- Khi tạm ứng đội thợ yêu cầu báo cáo khối lượng công việc hoàn thành có xác nhận của giám sát hoặc kỹ thuật làm căn cứ tạm ứng ( yêu cầu không ứng 70% công việc tực hiện được).

- Sau khi công trình hoàn thành giữ lại …% bảo hành của các đội thầu tùy thuộc hạng mục tham gia.

- Chất lượng dịch vụ bảo hành bảo trì.

- Tiến độ giao hàng, tiến độ lắp đặt, tiến độ bảo hành bảo trì.

- Các công việc xong khi tất cả các vật tư thừa và các phế liệu phát sinh trong quá trình thi công được chuyển ra khỏi công trình.

- Các phần thi công, vật liệu ra vào công trình phải có xác nhận của giám sát công trình.

Để thiết kế riêng cho ngôi nhà của bạn hãy liên hệ với chúng tôi để được tư vấn MIỄN PHÍ 

Tel: 083.3333.183 (Hieu Mr) - 0813.383.183

Website: http://huytrandesign.vn/. 

VPGD: Sao Biển 01-134, Vinhomes Ocean Park, Gia Lâm, Hà Nội

Đánh giá - Bình luận
0 bình luận, đánh giá về Mẫu nhà phố hiện đại đẹp đơn giản với 2 mặt tiền- Đức Giang, Long Biên
Nhấn vào đây để đánh giá
Thông tin người gửi
Video
Thiết Kế Nội Thất Biệt Thự Vinhomes Ocean Park Độc Đáo
Thiết Kế Nội Thất Biệt Thự Vinhomes Ocean Park Độc Đáo
Thiết Kế Nội Thất Biệt Thự Vinhomes Ocean Park Độc Đáo
Thiết Kế Nội Thất Biệt Thự Vinhomes Ocean Park Độc Đáo
04/09/19
Thiết kế nội thất nhà phố độc đáo lạ mắt
Thiết kế nội thất nhà phố độc đáo lạ mắt
11/09/19
VTV Vingroup tiết lộ về bất động sản VinCity
VTV Vingroup tiết lộ về bất động sản VinCity
21/03/19
Cuốn hút với Thiết kế Biệt thự Hoa Sữa Vinhomes Riverside
Cuốn hút với Thiết kế Biệt thự Hoa Sữa Vinhomes Riverside
03/09/19
Chúng tôi có thể hỗ trợ bạn!
0.17568 sec| 2628.867 kb