Mẫu nhà phố 2 tầng đẹp phong cách hiện đại

Nhà phố 2 tầng hiện đại ở nông thôn thiết kế 3 phòng ngủ đơn giản phù hợp với gia đình đa thế hệ. Thiết kế sử dụng mái Nhật tăng tính thẩm mỹ phù hợp với khí hậu Việt Nam và đặc biệt phù hợp với thiết kế nhà ở nông thôn tại một huyện ở Nam Định

Tổng quan
Địa điểm
Nam Trực, Nam Định
Ưu điểm Mẫu nhà phố 2 tầng đẹp phong cách hiện đại

Mẫu nhà phố 2 tầng đẹp hiện đại ở nông thôn với thiết kế ngoại thất sang trọng thu hút mọi ánh nhìn ở Nam Định

Mẫu nhà ống 2 tầng đơn giản đẹp hiện đại ở nông thôn có gara ô tô. Thiết kế mái Nhật phù hợp với khí hậu ở nông thôn giúp điều hòa không khí, mùa hè hút gió, thoáng mát mùa mưa dóc nước nhanh chóng, độ bền cao đặc biệt mang giá trị thẩm mỹ lớn.

Nhà phố 2 tầng đẹp hiện đại
Phối cảnh ngoại thất nhà phố 2 tầng ở nông thôn

 Nhà đẹp 2 tầng 100m2 hiện đại sử dụng hệ thống cửa kính khung nhôm lớn lấy ánh sáng tự nhiên tràn ngập căn phòng. Các không gian khác nhau thiết kế hình khối và màu sắc cũng rất khác nhau, không gian Gara để ô tô thiết kế không gian mở có mái che, sử dụng gạch ốp nâu kẻ chịu nhiệt tốt, bền bỉ. Sự kết hợp ngoại thất giữa màu trắng chủ đạo với màu nâu nhạt giúp các hình khối có sự chuyển tiếp và có chiều sâu hơn.

Thiết kế nhà phố 2 tầng đẹp hiện đại
Thiết kế ngoại thất nhà phố 2 tầng hiện đại

 Ngoài ra mái ngói Nhật sử dụng màu ghi xám cùng tone màu với khung nhôm cửa kính tạo nên sự đồng bộ với tổng thể. Ngoài ra mái màu ghi xám có giá trị sử dụng lâu bền, về mặt thẩm mỹ tốt và rêu, nấm mốc cũng được hạn chế bởi kỹ thuật sản xuất cao cấp.

Thiết kế nhà mái Nhật hiện đại 2 tầng đẹp ở huyện Nam Trực, tỉnh Nam Định

Mặt bằng và công năng nhà phố 2 tầng đẹp hiện đại

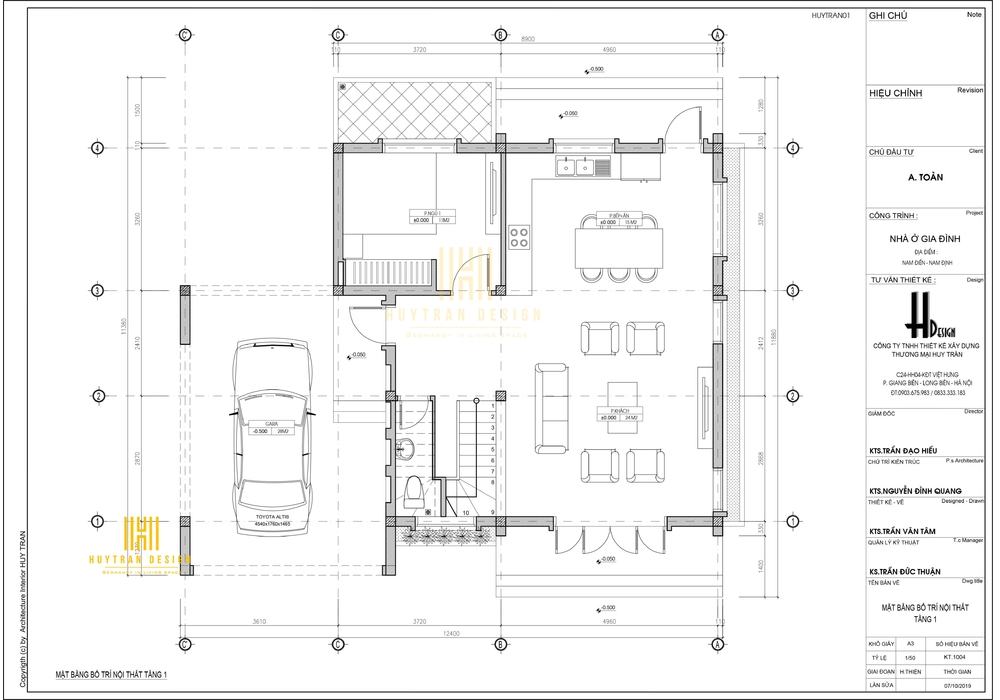
Thiết kế công năng mặt bằng tầng 1

 Tầng 1 được thiết kế với diện tích 100m2 với phòng khách 24m2, phòng bếp và phòng ăn 15m2, phòng ngủ 1 là 11m2. Phòng khách và phòng ăn được thiết kế với diện tích lớn gần 40m2 tạo sự thông thoáng. Khi thiết kế nhà phố ở nông thôn, theo tâm lý những người sống ở quê thường muốn có sự thông thoáng giữa các không gian với nhau và KTS Huytrandesign đã thiết kế không gian mở cho không gian phòng khách và phòng bếp ăn.

Thiết kế nội thất tầng 1 nhà phố đẹp
Mặt bằng thiết kế tầng 1

 Thiết kế nội thất tầng 1 có gara để xe ngoài trời phù hợp với nhu cầu và yêu cầu của gia chủ. 

Mặt bằng công năng tầng 2

Thiết kế nhà phố 1 trệt 1 lầu phù hợp với yêu cầu nhiều phòng, có 3 thế hệ sống chung. Vì vậy, KTS Huytrandesign thiết kế tầng lầu với diện tích hơn 100m2 gồm 2 phòng ngủ, 2 nhà vệ sinh và 1 phòng thờ. Khi thiết kế phòng ngủ ở quê thì diện tích phòng ngủ 2 18,4m2 và phòng ngủ 3 với diện tích 21m2 cho phòng ngủ Master là phù hợp với nhu cầu sử dụng. Thiết kế không quá chật hẹp mà vẫn đảm bảo công năng khoa học cho các thành viên trong gia đình sử dụng.

Thiết kế nội thất mặt bằng tầng 2 nhà phố hiện đại
Công năng và mặt bằng tầng 2

Khi thiết kế các phòng điều quan trọng nhất là thiết kế phòng thờ. Bởi, phòng thờ là nơi linh thiêng, là nơi thể hiện sự tôn kính uống nước nhớ nguồn của con cháu đối với ông bà tổ tiên. Chính vì vậy khi thiết kế phòng thờ cần phải có sự nghiên cứu kỹ lưỡng về hướng, tuổi đặc biệt là phong thủy phòng thờ sao cho thiết kế đem lại vượng khí cũng như tài lộc về cho gia chủ.

 Mặt bằng tầng mái.

Thiết kế mặt bằng tầng mái ngói Nhật cho nhà phố 2 tầng tân cổ điển với độ dốc vừa phải, chia các diện mái dốc theo tỉ lệ chuẩn và có sự nghiên cứu về hướng sao cho có thẩm mỹ và có tính ứng dụng cao khi đưa mái Nhật vào công trình 2 tầng ở nông thôn.

Thiết kế mặt bằng tầng mái cho không gian nhà phố 2 tầng
Mặt bằng tầng mái ngói Nhật

Để thiết kế riêng cho ngôi nhà của bạn hãy liên hệ với chúng tôi để được tư vấn MIỄN PHÍ 

Tel: 083.3333.183 (Hieu Mr) - 0813.383.183

Website: http://huytrandesign.vn/. 

VPGD: Sao Biển 01-134, Vinhomes Ocean Park, Gia Lâm, Hà Nội

 

Đánh giá - Bình luận
0 bình luận, đánh giá về Mẫu nhà phố 2 tầng đẹp phong cách hiện đại
Nhấn vào đây để đánh giá
Thông tin người gửi
Video
Thiết Kế Nội Thất Biệt Thự Vinhomes Ocean Park Độc Đáo
Thiết Kế Nội Thất Biệt Thự Vinhomes Ocean Park Độc Đáo
Thiết Kế Nội Thất Biệt Thự Vinhomes Ocean Park Độc Đáo
Thiết Kế Nội Thất Biệt Thự Vinhomes Ocean Park Độc Đáo
04/09/19
Thiết kế nội thất nhà phố độc đáo lạ mắt
Thiết kế nội thất nhà phố độc đáo lạ mắt
11/09/19
VTV Vingroup tiết lộ về bất động sản VinCity
VTV Vingroup tiết lộ về bất động sản VinCity
21/03/19
Cuốn hút với Thiết kế Biệt thự Hoa Sữa Vinhomes Riverside
Cuốn hút với Thiết kế Biệt thự Hoa Sữa Vinhomes Riverside
03/09/19
Chúng tôi có thể hỗ trợ bạn!
1.04541 sec| 2605.289 kb