Mẫu thiết kế nhà biệt thự 3 tầng đẹp mái thái phong cách Tân cổ điển

Tổng quan
Địa điểm
Ninh Hiệp
Ưu điểm Mẫu thiết kế nhà biệt thự 3 tầng đẹp mái thái phong cách Tân cổ điển

Thiết kế biệt thự đẹp luôn là mơ ước của rất nhiều người. Nhưng khi thiết kế biệt thự sân vườn đẹp CĐT luôn hướng về tiêu chí đơn giản, tinh tế mà vẫn đảm bảo được sự sang trọng và đẳng cấp.

Thiết kế ngoại thất biệt thự đẹp 3 tầng mái thái Tân cổ điển.

Màu sắc

Mẫu biệt thự tân cổ điển 3 tầng đẹp được KTS Huytrandesign thiết kế với những đường nét hoa văn tinh tế đơn giản nhưng vẫn mang phong thái của giới thượng lưu. 

Nhà biệt thự 3 tầng mái thái sử dụng tone màu trắng chủ đạo và thiết kế nhiều hệ cửa thông thoáng đặc trưng phong cách tân cổ điển.

Thiết kế biệt thự đẹp 3 tầng tân cổ điển mái thái - huytrandesign
Mặt bằng ngoại thất tân cổ điển 3 tầng

Thiết kế ban công hoàng gia kết hợp lan hoa tinh tế 

Thiết kế nhà biệt thự 3 tầng đẹp mái thái phong cách tân cổ điển - Huytrandesign
Thiết kế nhà mái thái tân cổ điển sang trọng

Mẫu biệt thự tân cổ điển 3 tầng đẹp thiết kế ban công tròn kết hợp lan hoa nghệ thuật đơn giản sợi mảnh phong cách hoàng gia. Thiết kế biệt thự Tân cổ điển 3 tầng mái thái với hoa văn giản lược nhưng lối thiết kế kiến trúc và hoa văn vẫn toát lên được nét đặc trưng như cột trụ trang trí, hoa văn và phù điêu trên cột và cổng,...

Mái ngói thái đỏ

Thiết kế biệt thự đẹp độc đáo, sang trọng tinh tế - Huytrandesign
Thiết kế biệt thự đẹp độc đáo, sang trọng tinh tế

 Mái ngói thái đỏ mang một chút đét đẹp cổ ở nông thôn, màu đỏ mang đến sự hoài cổ và sâu lắng độ bền cao chất lượng tốt và sử dụng lâu dài với thời gian. Ngoài ra, thiết kế mái ngói thái cho biệt thự 3 tầng cũng rất phù hợp với khí hậu Việt Nam. Mùa hè giúp điều hòa không khí, mùa mưa giúp mái nhà dóc nước nhanh, không bị ứ đọng vừa đảm bảo tính thẩm mỹ vừa là sự lựa chọn của rất nhiều chủ đầu tư đối với thiết kế biệt thự

Thiết kế biệt thự đẹp độc đáo, sang trọng tinh tế - Huytrandesign
Thiết kế biệt thự đẹp đơn giản, đẳng cấp 

Thiết kế thi công nội thất biệt thự trọn gói đơn vị Huytrandesign luôn mang đến sự hài lòng đến cho Quý khách hàng công ty Huy Trần. Khi chúng tôi có sự thỏa thuận hợp lý đôi bên và ký hợp đồng sau đó bộ phận Kỹ sư khảo sát công trình, lên phương án mặt bằng và triển khai thi công. Khi chúng tôi thực hiện thi công chúng tôi luôn đảm bảo và cam kết không phát sinh thêm chi phí, hoàn thành hồ sơ nhanh chóng, thi công đúng tiến độ.

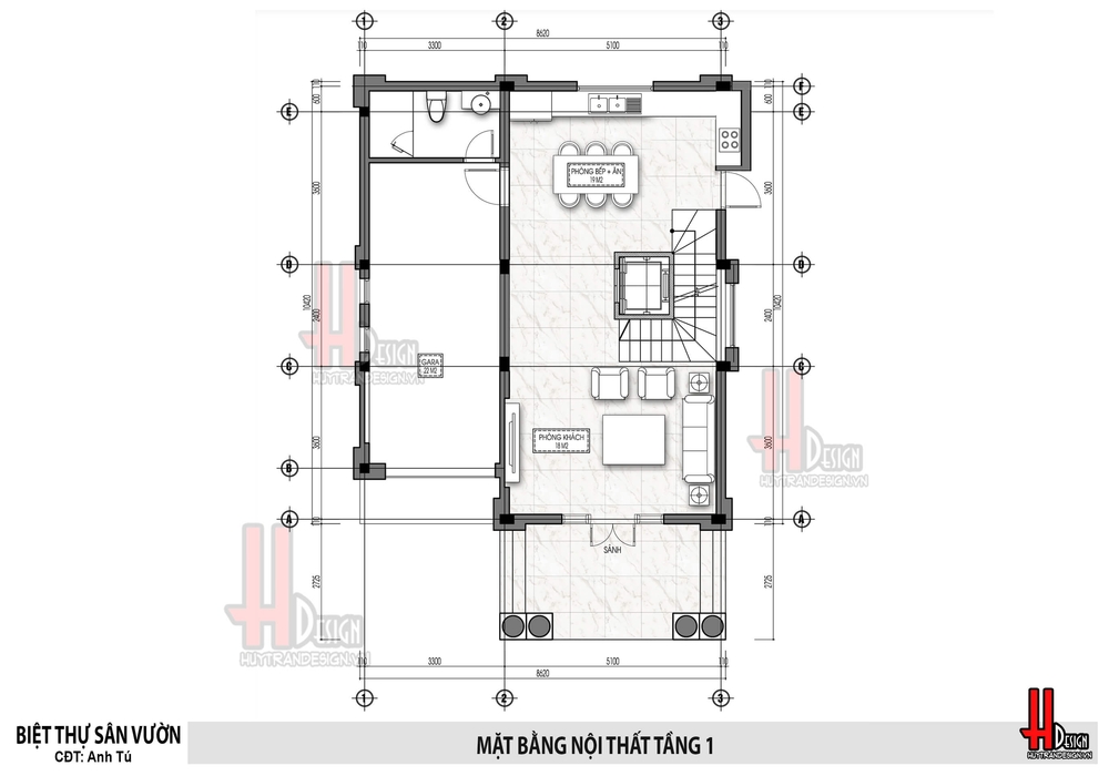
Mặt bằng, công năng thiết kế biệt thự 3 tầng đẹp, mái thái phù hợp nhu cầu người sử dụng

Mặt bằng nội thất tầng 1.

Để thuận với nhu cầu sử dụng của chủ đầu tư gia chủ muốn không gian tiếp khách và bếp ăn phải có sự rộng rãi thoáng mát, có đủ tầm nhìn và không gian đa chiều. Vì vậy, khi thiết kế mặt bằng tầng 1 nội thất biệt thự 3 tầng mái thái KTS thiết kế có thang bộ, thang máy, phòng khách và bếp ăn.

Mặt bằng biệt thự tầng 1 - Huytrandesign
Mặt bằng nội thất tầng 1 gồm phòng khách và bếp ăn

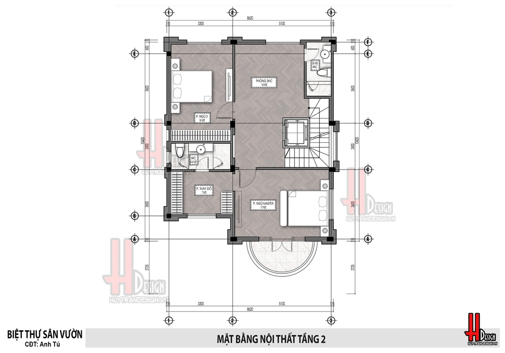
Mặt bằng nội thất tầng 2 

Tầng 2 được thiết kế 2 phòng ngủ và 1 phòng sinh hoạt chung. Phòng ngủ Master được thiết kế giường ngủ Kingsize và phòng thay đồ để tuận tiện cho nhu cầu sinh hoạt riêng của gia chủ, ngoài ra thiết kế thêm phòng ngủ nhỏ vẫn đảm bảo đầy đủ chức năng cho không gian riêng. Phòng sinh hoạt chung thường sẽ gắn kết mọi người gần nhau hơn. Vì vậy, không gian sinh hoạt chung thường sắp xếp không gian hợp lý nhất, thuận tiện nhất.

Mặt bằng biệt thự tầng 2 gồm 2 phòng ngủ và 1 phòng sinh hoạt chung
Mặt bằng tầng 2 thiết kế 2 phòng ngủ và 1 phòng sinh hoạt chung

Mặt bằng nội thất tầng 3

Ngoài phòng ngủ, phòng khách, bếp thì phòng thờ là phòng cũng rất quan trọng và đặc biệt được sự quan tâm của gia chủ. Thiết kế phong thủy phòng thờ cũng rất quan trong bởi phòng thờ thiên về hệ tâm linh và gia chủ muốn làm ăn thịnh vượng, cuộc sống sung túc thì hướng và thiết kế phòng thờ cũng là vấn đề đáng quan tâm.

Mặt bằng tầng 3 được thiết kế thêm 2 phòng ngủ và phòng làm việc + thư viện. Không gian này cũng là không gian chung thiên về nghiên cứu, tìm kiếm, thư giãn và thỏa mãn đam mê đọc sách của thành viên trong gia đình.

Thiết kế nội thất mặt bằng tầng 3 biệt thự tân cổ điển dẹp
Thiết kế nội thất tầng 3 biệt thự Tân cổ điển đẹp mái thái

 

Để thiết kế riêng cho ngôi nhà của bạn hãy liên hệ với chúng tôi để được tư vấn MIỄN PHÍ 

Tel: 083.3333.183 (Hieu Mr) - 0813.383.183

Website: http://huytrandesign.vn/. 

VPGD: Sao Biển 01-134, Vinhomes Ocean Park, Gia Lâm, Hà Nội

Đánh giá - Bình luận
0 bình luận, đánh giá về Mẫu thiết kế nhà biệt thự 3 tầng đẹp mái thái phong cách Tân cổ điển
Nhấn vào đây để đánh giá
Thông tin người gửi
Video
Thiết Kế Nội Thất Biệt Thự Vinhomes Ocean Park Độc Đáo
Thiết Kế Nội Thất Biệt Thự Vinhomes Ocean Park Độc Đáo
Thiết Kế Nội Thất Biệt Thự Vinhomes Ocean Park Độc Đáo
Thiết Kế Nội Thất Biệt Thự Vinhomes Ocean Park Độc Đáo
04/09/19
Thiết kế nội thất nhà phố độc đáo lạ mắt
Thiết kế nội thất nhà phố độc đáo lạ mắt
11/09/19
VTV Vingroup tiết lộ về bất động sản VinCity
VTV Vingroup tiết lộ về bất động sản VinCity
21/03/19
Cuốn hút với Thiết kế Biệt thự Hoa Sữa Vinhomes Riverside
Cuốn hút với Thiết kế Biệt thự Hoa Sữa Vinhomes Riverside
03/09/19
Chúng tôi có thể hỗ trợ bạn!
0.16136 sec| 2616.406 kb