Thiết kế biệt thự 3 tầng mái thái đẹp có sân vườn năm 2022

Chủ đầu tư không yêu cầu quá cao về ngôi nhà nhưng điều anh  mong muốn ở chúng tôi đó là thiết kế toát lên được nét cổ điển , phóng khoáng, sang trọng và tỉ mỉ  từng chi tiết. Huytrandesign luôn luôn tôn trọng khách hàng, khi thiết kế công trình về mẫu biệt thự Tân cổ điển Kiến trúc sư và kỹ sư xây dựng của chúng tôi luôn có sự sáng tạo, có gu thẩm mĩ tinh tế, kỹ thuật phải chuyên nghiệp. Kèm theo đó Kiến trúc sư và Kỹ sư xây dựng đều là những người có kinh nghiệm về những dự án thiết kế biệt thự, thiết kế biệt thự Tân cổ điển, thiết kế biệt thự hiện đại, thiết kế nhà ống theo phong cách Tân cổ điển,... 

Tổng quan
Chủ đầu tư
Anh Tuấn Kiệt
Địa điểm
Đông Anh, Hà Nội
Số tầng
3 tầng
Diện tích đất
320m2
Đơn vị thực hiện
Huytrandesign
Năm thi công
2020
Ưu điểm Thiết kế biệt thự 3 tầng mái thái đẹp có sân vườn năm 2022

Phối cảnh ngoại thất biệt thự 3 tầng mái thái có sân vườn

Hiện nay, cũng có rất nhiều người ưa chuộng kiến trúc biệt thự tân cổ điển nên anh Tuấn Kiệt mong muốn sở hữu một mẫu biệt thự 3 tầng mái thái tân cổ điển đẹp khác biệt hơn với những ngôi nhà thiết kế theo kiểu tân cổ điển xung quanh. 

Thiết kế ngoại thất biệt thự 3 tầng
Biệt thự 3 tầng mái thái thiết kế sang trọng, tinh tế với không gian xanh.

Kiến trúc sư chúng tôi đã chú trọng từng chi tiết trên cột, phào, chỉ không những thế KTS Huytrandesign chọn ban công tròn cách điệu, cửa vòm cổ điển vừa thể hiện sự sang trọng, quý phái mà lại tôn lên được nét đẹp tinh tế, đồng nhất 

Thiết kế ngoại thất biệt thự 3 tầng
Thiết kế màu trắng chủ đạo đặc trưng phong cách tân cổ điển và đã được giản lược hoa văn

Mẫu nhà biệt thự 3 tầng mái thái mang đến sự hoài cổ và sâu lắng độ bền cao chất lượng tốt và sử dụng lâu dài với thời gian. Ngoài ra, thiết kế mái ngói thái cho biệt thự 3 tầng cũng rất phù hợp với khí hậu Việt Nam. Mùa hè giúp điều hòa không khí, mùa mưa giúp mái nhà dóc nước nhanh, không bị ứ đọng vừa đảm bảo tính thẩm mỹ vừa là sự lựa chọn của rất nhiều chủ đầu tư đối với thiết kế biệt thự 

Thiết kế ngoại thất biệt thự 3 tầng
Sử dụng mái thái luôn là sự lựa chọn hoàn hảo và cũng là xu hướng hiện nay

Thiết kế biệt thự có sân vườn tiểu cảnh mang đến không gian tươi mát, thân thiện với môi trường. Khi thiết kế ban công chúng tôi cũng thiết kế thêm tiểu cảnh cây hoa nhỏ vừa mang đến vẻ đẹp thẩm mỹ vừa có thể giúp gia chủ thư dãn trong những ngày cuối tuần

Thiết kế ngoại thất biệt thự 3 tầng
Sử dụng cổng sắt hoa văn nghệ thuật kết hợp tường rào ốp đá mộc 

Thiết kế cổng và tường bao cho biệt thự với những mẫu mã mới nhất. Tường bao được thiết kế tường đá mộc nhiều màu độc đáo, nổi bật trên tông màu trắng chủ đạo của ngoại thất mẫu nhà biệt thự 3 tầng mái thái đẹp.

Thiết kế ngoại thất biệt thự 3 tầng
Thiết kế nhiều cửa sổ thông thoáng

Mặt bằng và công năng biệt thự 3 tầng mái thái 4 phòng ngủ

Mặt bằng và công năng tầng 1

Mặt bằng tầng 1 với diện tích 132m2 bao gồm:

+ Sân vườn diện tích 32m2

+ Phòng khách diện tích 34m2

+ Phòng thờ diện tích 12.8m2

+ Phòng bếp kết hợp phòng ăn diện tích 17m2

+ Phòng ngủ diện tích 14.3m2

Thiết kế nội thất biệt thự cao cấp, biệt thự đẹp có sân vườn rộng khoảng 32m2 và được thiết kế 1 chút không gian xanh cây hoa tiểu cảnh và sân để ô tô. Bước vào sảnh chính là phòng khách rộng rãi, khi thiết kế bộ sofa rộng rãi như thế cũng vẫn phù hợp và hợp lý với phòng khách 40m2. Thẳng phòng khách là phòng ngủ 1 diện tích 14.3m2 có 1 chiếc giường, 1 tủ quần áo, 1 tab đầu giường và 1 kệ tivi. Tay trái phòng khách là phòng thờ thiết kế không gian mở giúp không gian phòng khách và phòng ngủ được thông thoáng hơn. Thẳng phòng thờ vào là phòng ăn kết hợp phòng bếp, không gian được ngăn cách bởi vách kính cường lực ngăn mùi khi nấu ăn, ngoài ra thiết kế vách kính sẽ giúp hạn chế tiếng ồn khi nấu ăn cũng như nói chuyện ra không gian bên ngoài. Giữa phòng bếp và phòng ngủ là sảnh thang, dưới gầm thang thiết kế thêm 1 nhà vệ sinh nhỏ 3m2 tuận tiện khi cả gia đình sinh hoạt dưới tầng 1.

Thiết kế mặt bằng công năng biệt thự
Thiết kế khoa học và ưu tiên sử dụng không gian mở tại tầng 1

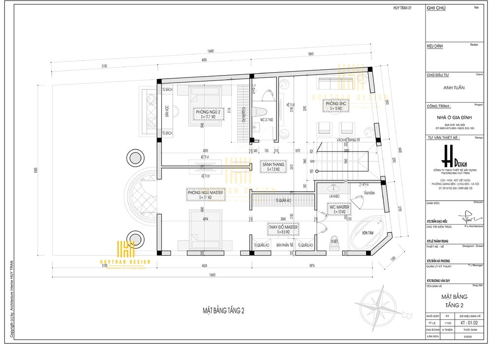
 Thiết kế nội thất tầng 2

Tầng 2 được thiết kế 95m2 bao gồm:

+ Sảnh thang diện tích 7.3m2

+ Phòng sinh hoạt chung diện tích 15m2

+ Vệ sinh chung diện tích 3.7m2

+ Phòng ngủ 2 diện tích 17.7m2

+ Phòng ngủ Master diện tích 35.5m2

Không gian tầng 2 thiết kế đủ dùng và thiết kế công năng rất phù hợp với phòng sinh hoạt chung có thể giúp cả nhà chia sẻ, trò truyện hay tổ chức tiệc gia đình tại không gian nhỏ. Phòng ngủ 2 được thiết kế cho bé gồm giường ngủ, tủ quần áo, bàn học gần cửa sổ, kệ tivi. Phòng ngủ Master rộng lớn kết hợp phòng thay đồ, phòng thay đồ master diện tích 8.5m2 gồm tủ quần áo âm tường kết hợp bàn trang điểm nhỏ. Nhà vệ sinh khép kín trong phòng ngủ master rộng rãi với diện tích 10m2 được thiết kế lavabo đơn, bệ xí, cabin tắm đứng và bồn tắm nằm.

Thiết kế mặt bằng công năng biệt thự
Thiết kế mặt bằng tầng 2 thông thoáng với phòng sinh hoạt chung và 2 phòng ngủ

 Mặt bằng tầng 3 biệt thự 3 tầng mái thái

Tầng 3 biệt thự ba tầng mái thái diện tích 95m2 bao gồm:

+ Phòng ngủ khách diện tích 14.6m2

+ Nhà kho diện tích 5.5m2

+ Sân phơi mái kính diện tích 8.1m2

+ Phòng tập GYM diện tích 39m2

+ Phòng thay đồ 10m2

Tầng 3 được thiết kế thiên về rèn luyện sức khỏe thể dục thể thao là chính. Bước lên sảnh thang tầng 3 ngay bên trái là 1 phòng ngủ khách có nhà vệ sinh khép kín đơn giản, 1 nhà kho nhỏ để chứa đồ, 1 sân phơi mái kính có thể phơi đồ cũng có thể ngắm cảnh hay thư giãn tại đây. Đặc biệt gia chủ muốn thiết kế phòng tập GYM diện tích lớn để rèn luyện sức khỏe cho cả gia đình bao gồm máy tập, chỗ nghỉ ngơi và phòng thay đồ. Phòng thay đồ kết hợp nhà tắm có phòng xông hơi sau khi tập để cơ thể được thư giãn hơn.

Thiết kế mặt bằng công năng biệt thự
Mặt bằng tầng 3 thiết kế có phòng tập Gym

Bạn đang mong muốn Thiết kế nội thất chung cư Vinhomes Ocean Park, nhà phố, biệt thự sân vườn, thi công và cải tạo biệt thự tân cổ điển Vinhomes, thiết kế nội thất dhophouse, thiết kế biệt thự tân cổ điển cho thuê. Hãy liên hệ với chúng tôi để được tư vấn MIỄN PHÍ 

Tel: 083.3333.183 (Hieu Mr) - 0813.383.183

Website: http://huytrandesign.vn/. 

VPGD: Sao Biển 01-134, Vinhomes Ocean Park, Gia Lâm, Hà Nội

 

Đánh giá - Bình luận
0 bình luận, đánh giá về Thiết kế biệt thự 3 tầng mái thái đẹp có sân vườn năm 2022
Nhấn vào đây để đánh giá
Thông tin người gửi
Video
Thiết Kế Nội Thất Biệt Thự Vinhomes Ocean Park Độc Đáo
Thiết Kế Nội Thất Biệt Thự Vinhomes Ocean Park Độc Đáo
Thiết Kế Nội Thất Biệt Thự Vinhomes Ocean Park Độc Đáo
Thiết Kế Nội Thất Biệt Thự Vinhomes Ocean Park Độc Đáo
04/09/19
Thiết kế nội thất nhà phố độc đáo lạ mắt
Thiết kế nội thất nhà phố độc đáo lạ mắt
11/09/19
VTV Vingroup tiết lộ về bất động sản VinCity
VTV Vingroup tiết lộ về bất động sản VinCity
21/03/19
Cuốn hút với Thiết kế Biệt thự Hoa Sữa Vinhomes Riverside
Cuốn hút với Thiết kế Biệt thự Hoa Sữa Vinhomes Riverside
03/09/19
Chúng tôi có thể hỗ trợ bạn!
0.72967 sec| 2626.039 kb